In einer der schönen Wald-Wohnstraßen von Holm-Seppensen liegt dieses absolut exklusive Architektenhaus aus dem Baujahr 2003, welches auf einem Grundstück von ca. 2.395 m² erstellt wurde. Zwei einander zugewandte Baukörper sind durch eine zweigeschossige Glasfassade verbunden. Beide Hausteile verfügen über Treppenanlagen, die sich über alle drei Ebenen erstrecken. Drei verschiedene Fassadenmaterialien Holz, Putz und Klinker verleihen diesem imposanten Architektenhaus eine spannungsvolle Optik, die sich im Innenbereich harmonisch wiederholt. Die Wohnfläche von ca. 371 m² erstreckt sich über drei Ebenen und verteilt sich auf acht Zimmer, zwei Küchen, zwei Bäder, drei Gäste-WCs und einen großen Fitnessraum im Untergeschoss. Die vollunterkellerte Immobilie wird mit einer Gaszentral- und einer Luftheizung erwärmt. Die Warmwasseraufbereitung erfolgt über eine Solaranlage. Einen hohen Erholungswert bietet Ihnen der neu gestaltete Garten mit einer gemütlichen Lounge-Ecke, einem erhöhten Meditationsbereich, einem in sanfte Hügel eingebetteten runden Feuerplatz. Vor dem Gebäude stehen Ihnen bis zu sechs Parkflächen sowie eine neu installierte Wallbox zur Verfügung.
PROVISIONSFREI! Modernes Architektenhaus - ideal als Mehrgenerationenhaus oder für Familie und Büro
21244 Buchholz in der Nordheide
Die vollständige Adresse der Immobilie erhalten Sie vom Anbieter.
Auf Karte anzeigen
Die vollständige Adresse der Immobilie erhalten Sie vom Anbieter.
Finanzierungszertifikat
In nur zwei Minuten zu Ihrem persönlichen Finanzierungszertifkat.
Infos
| Haustyp | Einfamilienhaus |
|---|---|
| Wohnfläche ca. | 371 m2 |
| Nutzfläche | 138 m2 |
| Grundstücksfläche | 2.395 m2 |
| Bezugsfrei ab | nach Vereinbarung |
| Zimmer | 8 |
| Badezimmer | 3 |
| Garage/Stellplatz | Außenstellplatz |
| Anzahl Garage/Stellplatz | 6 |
Kosten
| Kaufpreis |
1.890.000 € |
|---|---|
| Provision | Nein |
Finanzierungsrechner:
Kaufpreis:
600.000 €
Eigenkapital:
600.000 €
Monatliche Rate
0 €
Effektiver Jahreszins
0 %
Sollzinsbindung
10 Jahre
Bausubstanz & Energieausweis
| Baujahr | 2003 |
|---|---|
| Objektzustand | Neuwertig |
| Qualität der Austattung | Gehoben |
| Heizungsart | Zentralheizung |
| Wesentliche Energieträger | Gas |
| Energieausweis | liegt vor |
| Energieausweistyp | Bedarfsausweis |
| Energieverbrauchskennwert | 57,1 kWh/(m²*a) |
| Energieeffizienzklasse | B |
57,1
kWh/(m²*a)
Energieeffizienzklasse B
- A+
- A
- B
- C
- D
- E
- F
- G
- H
- 0
- 25
- 50
- 75
- 100
- 125
- 150
- 175
- 200
- 225
- >250
Beschreibung des Objekts
Ausstattung
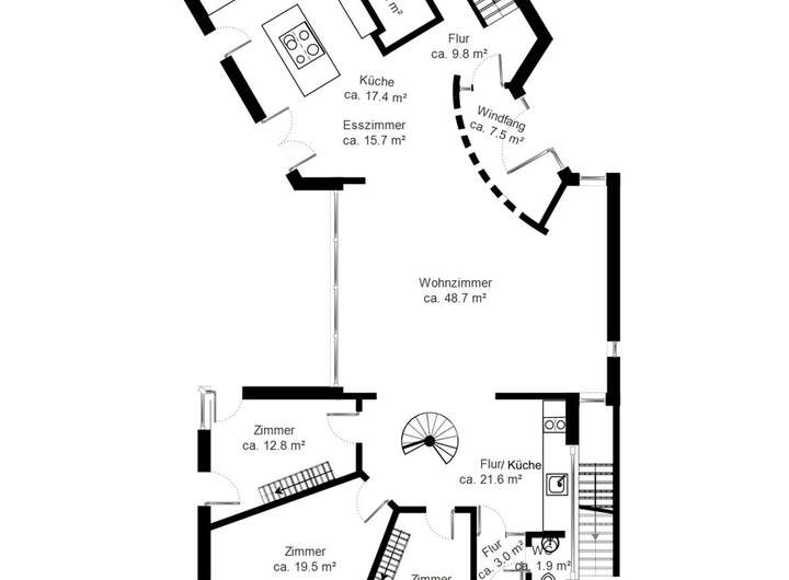
Über einen Windfang gelangen Sie in den rechten Hausteil mit Zugang zum Essbereich und der offen gestalteten Küche. Das Familienleben pulsiert im ca. 50 m² großen Wohnbereich mit der zweigeschossigen Fensterfront. Über den Hauseingang im Osten begehen Sie den linken Hausteil mit einer modernen Küche und einem Tresen, drei weiteren Zimmern und einem Gäste-WC. Zwei Räume sind als Maisonette-Zimmer angelegt und das dritte Zimmer bietet mit einem Panoramafenster einen Blick ins Grüne. Die skulptural wirkende Stahltreppe führt Sie über drei Ebenen. Ein Vollbad und ein Gäste-WC ergänzen die Räumlichkeiten im Obergeschoss. Die schwebende Brücke über dem Luftraum verbindet den rechten und den linken Hausteil miteinander. Angekommen auf der Galerie im rechten Hausteil des Obergeschosses finden Sie das Schlafzimmer mit Zugang zu einem Balkon sowie einem Ankleidebereich und einem angrenzenden Duschbad vor. Die Stahltreppe führt Sie über das Erd- in das Kellergeschoss, wo Sie neben den üblichen Technik- und Vorratsräumen noch einen ca. 38 m² großen Fitnessraum, einen Kreativraum und ein Gästezimmer vorfinden.
Lage
Buchholz in der Nordheide ist mit seinen rund 40.000 Einwohnern die größte Stadt des Landkreises Harburg. Sie befindet sich etwa 20 km südlich von Hamburg, etwa 120 km nördlich von Hannover und etwa 80 km nordöstlich von Bremen. Buchholz ist über die Anschlussstelle Dibbersen an die A1 Hamburg - Bremen angeschlossen. Über die Eckverbindung ab dem Buchholzer Dreieck erreicht man schnell die A7 Richtung Hamburg - Flensburg. Zudem liegt Buchholz an den Bundesstraßen 75 und 3 sowie an der Bahn-Hauptstrecke Hamburg - Bremen. Der Ortsteil Holm-Seppensen liegt ca. sechs Kilometer südlich der Buchholzer Innenstadt direkt am Rande der Nordheide in einem großen Waldgebiet. Mit mittlerweile ca. 7000 Einwohnern hat sich Holm-Seppensen zu einer gehobenen Wohnlage in Buchholz entwickelt. Eine Grundschule, mehrere Kindergärten sind ebenso direkt im Ort wie mehrere Supermärkte und alle wesentlichen Einrichtungen zur Nahversorgung. Sportvereine, Tennis- und der nahe Golf-Club, Minigolf- und Bowlingbahn sowie die direkt angrenzende Natur bieten viele Optionen für Hobby und Erholung.
Grundriss
Grundriss KG
>
>
Grundriss EG
>
>
Grundriss OG
>
>
Grundriss KG
>
>
Grundriss EG
>
>
Grundriss OG
>
>
Adresse
21244 Buchholz in der Nordheide
Interessante Orte
Preis- und Lageinformationen
Preistrend für Bestandsimmobilien in Buchholz in der Nordheide