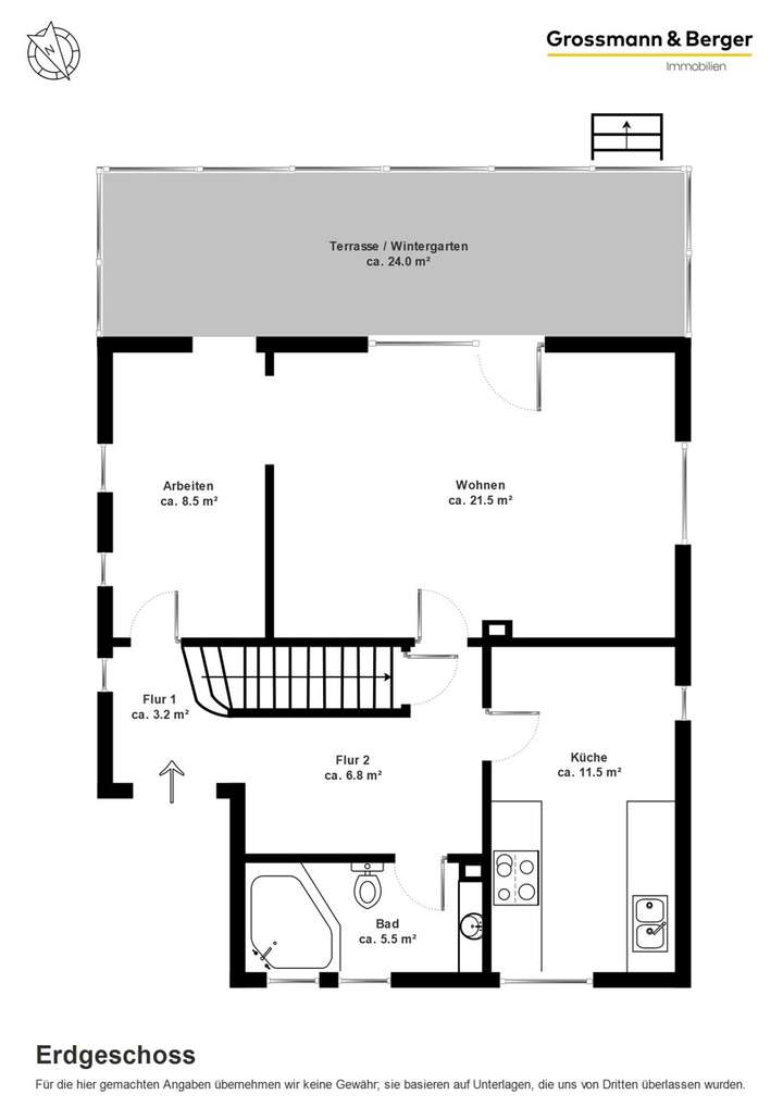
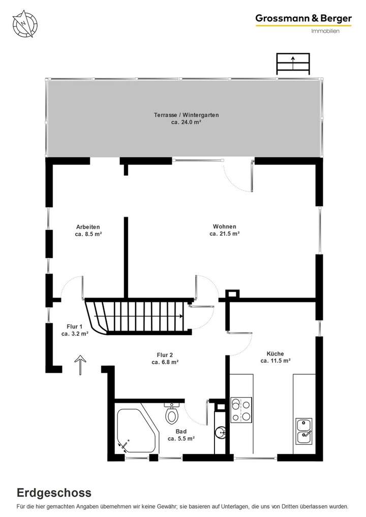
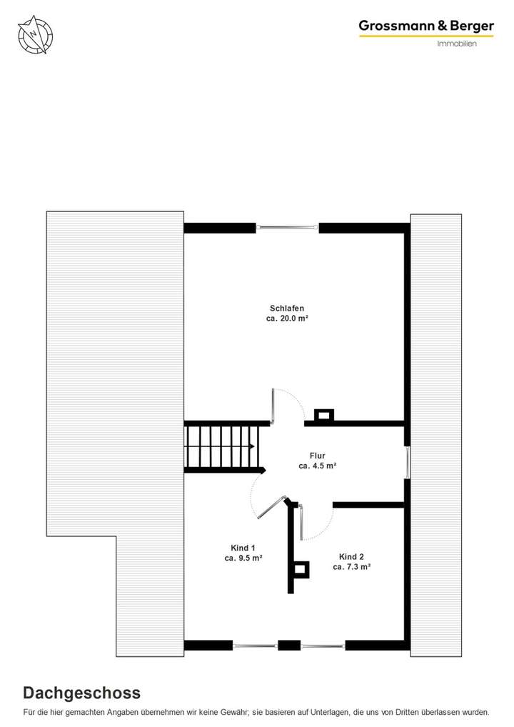
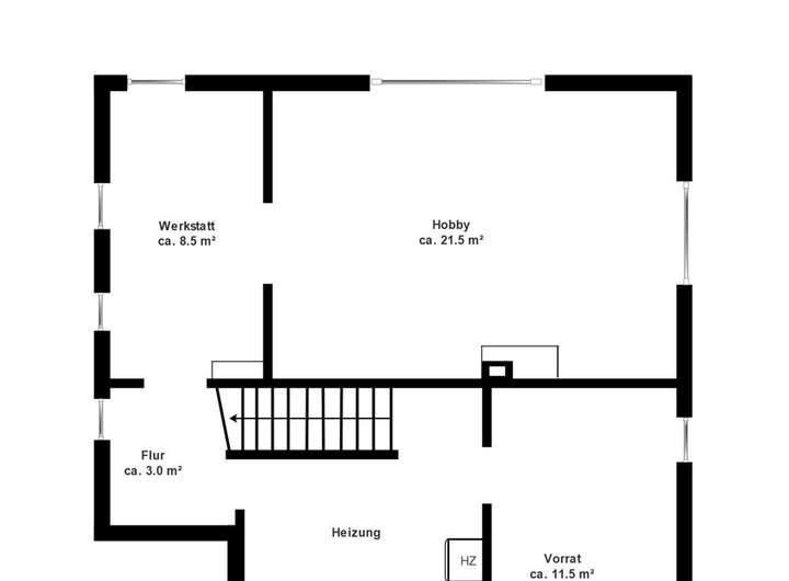
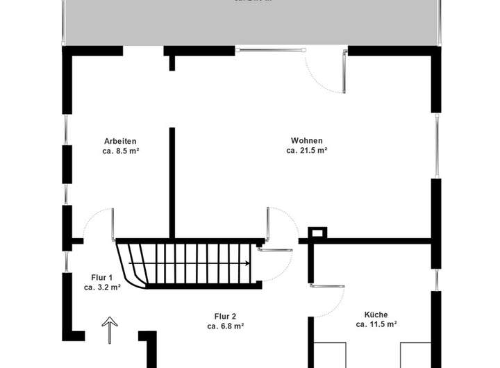
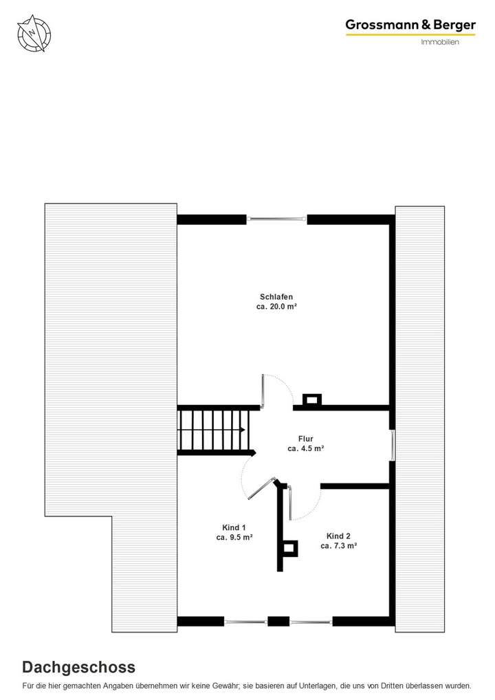
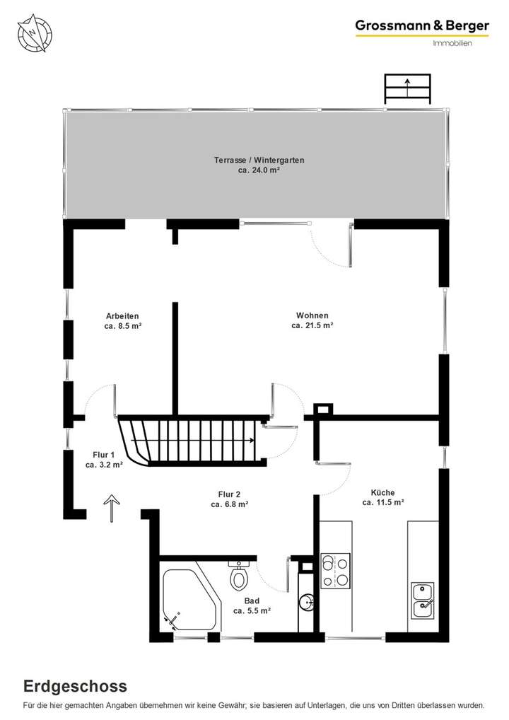
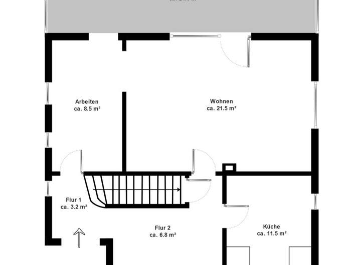
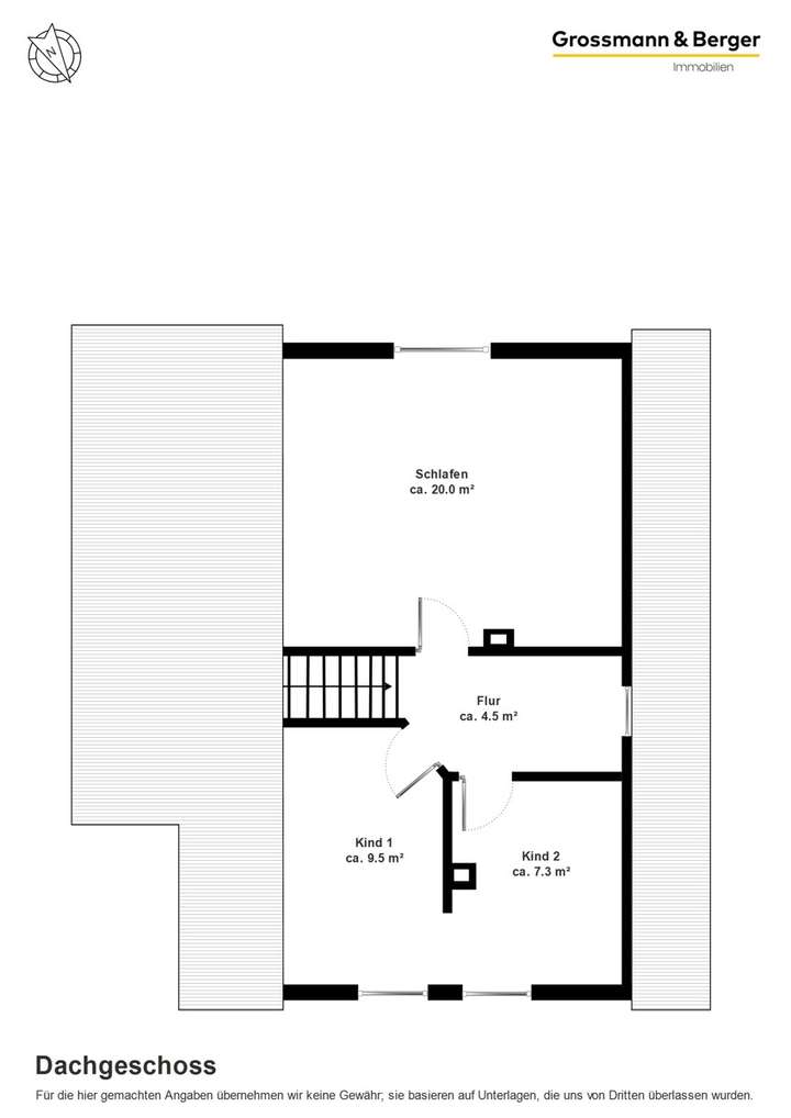
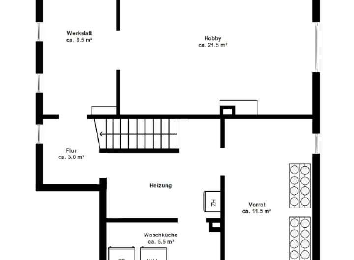
Dieses Einfamilienhaus wurde 1962 in massiver Bauweise mit Keller im beliebten Alt-Nettelnburg errichtet. Über den Flur gelangen Sie in alle Räume des Erdgeschosses. Das große, lichtdurchflutete Wohnzimmer bietet Zugang zum Arbeitszimmer und zum 2014 angebauten Wintergarten mit Blick in den Garten. Die Küche ist mit moderner Einbauzeile und zweiter Arbeitsfläche ausgestattet. Ein helles Wannenbad mit zwei Fenstern ergänzt das Raumangebot. Über eine geschlossene Treppe erreichen Sie das Dachgeschoss mit Elternschlafzimmer sowie zwei Kinderzimmern, die derzeit durch einen Durchbruch verbunden sind, aber leicht wieder getrennt werden können. Im Keller stehen ein Hauswirtschaftsraum, eine Werkstatt, ein Hobbyraum und ein Vorratsraum zur Verfügung. Die Heizungsanlage von 1988 muss erneuert werden, Warmwasser erfolgt über Durchlauferhitzer. Das nach Südwesten ausgerichtete Grundstück ist pflegeleicht angelegt und bietet eine Terrasse sowie zwei PKW-Stellplätze. Das Grundstück ist ideell geteilt, Gesamtgröße ca. 1.774 m², wovon ca. 608 m² auf dieses Haus entfallen. Jedes der drei Häuser ist eigenständig, Wohngeld fällt nicht an.
Einfamilienhaus im beliebten Alt-Nettelnburg
21035 Hamburg
Die vollständige Adresse der Immobilie erhalten Sie vom Anbieter.
Auf Karte anzeigen
Die vollständige Adresse der Immobilie erhalten Sie vom Anbieter.
Finanzierungszertifikat
In nur zwei Minuten zu Ihrem persönlichen Finanzierungszertifkat.
Infos
| Haustyp | Einfamilienhaus |
|---|---|
| Wohnfläche ca. | 100 m2 |
| Grundstücksfläche | 537,5 m2 |
| Bezugsfrei ab | nach Absprache |
| Zimmer | 3,5 |
| Garage/Stellplatz | Außenstellplatz |
| Anzahl Garage/Stellplatz | 1 |
Kosten
| Kaufpreis |
445.000 € |
|---|---|
| Provision |
3,57 % inkl. MwSt. |
Finanzierungsrechner:
Kaufpreis:
600.000 €
Eigenkapital:
600.000 €
Monatliche Rate
0 €
Effektiver Jahreszins
0 %
Sollzinsbindung
10 Jahre
Bausubstanz & Energieausweis
| Baujahr | 1962 |
|---|---|
| Objektzustand | Gepflegt |
| Heizungsart | Zentralheizung |
| Wesentliche Energieträger | Gas |
| Energieausweis | liegt vor |
| Energieausweistyp | Bedarfsausweis |
| Energieverbrauchskennwert | 234,1 kWh/(m²*a) |
| Energieeffizienzklasse | G |
234,1
kWh/(m²*a)
Energieeffizienzklasse G
- A+
- A
- B
- C
- D
- E
- F
- G
- H
- 0
- 25
- 50
- 75
- 100
- 125
- 150
- 175
- 200
- 225
- >250
Beschreibung des Objekts
Ausstattung
Die Fußböden im Erdgeschoss sind mit Fliesen belegt, das Dachgeschoss wurde mit Laminatboden versehen. Sowohl die Küche als auch das Badezimmer wurden im Jahr 2014 erneuert und modern und geschmackvoll gestaltet. Die Küche wurde mit einer großen Einbauzeile mit hellen Fronten versehen und mit allen erforderlichen Elektrogeräten ausgestattet. Im Badezimmer wurde im Zuge der Renovierung eine große Eckbadewanne eingebaut, ein Handtuchheizkörper sorgt für zusätzlichen Komfort. Der im Jahr 2018 angebaute, großzügige Wintergarten ist komplett verglast und wirkt dadurch besonders hell und freundlich. Die Glaselemente zur Gartenseite lassen sich vollständig öffnen, sodass der Wintergarten bei jedem Wetter optimal genutzt werden kann. Eine weitere Besonderheit ist die große und innenliegende Markise, die auch an heißen Tage für ausreichend Schatten sorgt. Sämtliche Fenster sind isolierverglast und in Holz gefasst und stammen aus dem Jahr 2017.
Lassen Sie sich vor Ort von dieser charmanten Immobilie begeistern.
Lage
Nettelnburg im Bezirk Bergedorf überzeugt durch seine gewachsene Struktur mit ruhigen Straßen, Einfamilien- und Doppelhäusern. Einkaufsmöglichkeiten, Wochenmarkt, Kitas und Schulen befinden sich in direkter Nähe und unterstreichen die gute Infrastruktur. Der S-Bahnhof Nettelnburg ermöglicht eine schnelle Verbindung in die Hamburger Innenstadt – in weniger als 20 Minuten erreichen Sie den Hauptbahnhof. Auch die nahe A25 und B5 sorgen für eine sehr gute PKW-Anbindung; Bergedorf mit vielfältigen Einkaufsmöglichkeiten und Restaurants liegt nur rund fünf Minuten entfernt.
Bushaltestellen sowie Geschäfte des täglichen Bedarfs sind fußläufig erreichbar. Mit dem Fahrrad, Bus oder PKW gelangen Sie schnell zum S-Bahnhof Nettelnburg oder zum Bergedorfer Bahnhof mit weiteren Bahnverbindungen. Der Allermöher Badesee und der See Hinterm Horn sind mit dem Rad in weniger als zehn Minuten erreichbar und bieten attraktive Freizeitmöglichkeiten. Ergänzt wird das Angebot durch zahlreiche Wanderwege im Grünen und den nahegelegenen Elbdeich, der zu erholsamen Spaziergängen einlädt.
Grundriss
Erdgeschoss
>
>
Dachgeschoss
>
>
Kellergeschoss
>
>
Grundriss KG
>
>
Grundriss EG
>
>
Grundriss DG
>
>
Adresse
21035 Hamburg
Interessante Orte
Preis- und Lageinformationen
Preistrend für Bestandsimmobilien in Bergedorf