Die Gemeinde Teutschenthal liegt im Saalekreis 12 Kilometer westlich von Halle/Saale. Das Gemeindegebiet umfasst eine Fläche von circa 90 Quadratkilometer und die Gemeinde zählt rund 13.000 Einwohner. Langenbogen ist ein Ortsteil der Gemeinde Teutschenthal im Saalekreis.
Im Norden der Gemeinde biegt die Salza, vom Süßen See kommend und zuvor die Seen Bindersee und Kerner See durchquerend, gen Saale ab. An diesem Fluss, der auch Salzke genannt wird, befanden sich einst Mühlen, später die Zuckerfabrik. Da sich das Dorf bis zum 15. Jahrhundert auf dem Sporn an der Biegung gen Norden befand, bietet sich die Herleitung des Ortsnamens aus dieser Lage an. Das Ortszentrum zieht sich an der alten Chaussee-Straße nach Eisleben hinauf und wurde später um weitere Siedlungsteile wie die Arbeitersiedlung Welle entlang der Salza (für die Zuckerfabrik) oder die Bauernsiedlung südwestlich des Ortes erweitert. Touristisch attraktiv wird die Gemeinde durch die Weinberge entlang des Salzatales und verschiedene Naturpfade unter anderem in die Nachbargemeinde Salzatal. Der Ort liegt an der „Weinstraße Mansfelder Seen“ und am „Radfernwanderweg Saale-Harz“.
Finanzierungszertifikat
In nur zwei Minuten zu Ihrem persönlichen Finanzierungszertifkat.
Infos
| Vermarktungsart | Kaufen |
|---|---|
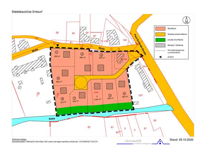
| Grundstücksfläche | 9.400 m2 |
| Bebaubar nach | Bebauungsplan |
| Verfügbar ab | sofort |
Kosten
| Miete pro Jahr |
800.000 € |
|---|---|
| Provision | Nein |
Finanzierungsrechner:
Kaufpreis:
600.000 €
Eigenkapital:
600.000 €
Monatliche Rate
0 €
Effektiver Jahreszins
0 %
Sollzinsbindung
10 Jahre