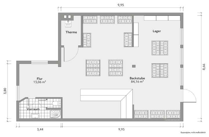
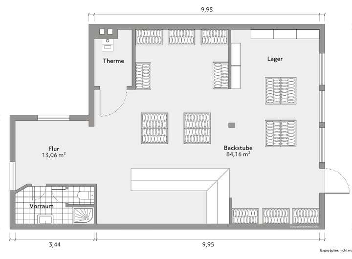
Zum Verkauf steht ein Wohn-Geschäftshaus mit Garten und einer kleinen Dachterrasse. Das Haus verfügt im Erdgeschoss über eine Gewerbefläche vom rund 30m², die zuletzt als Imbiss genutzt wurde. Davor befand sich dort eine alteingesessene Bäckerei. Angrenzend an die Gewerbefläche gibt es einen weiteren Raum mit rund 12m² der als Lager oder Vorbereitungsküche genutzt werden kann. Ebenso ist ein Kunden-WC vorhanden. Nach hintenraus befindet sich die große Backstube der ehemaligen Bäckerei mit über 100m², die wieder in Betrieb genommen werden könnte oder als individuelle Gewerbefläche genutzt werden kann. Von der Backstube aus haben Sie direkten Zugang zum Garten.
Der Durchgang zur Wohnung über das Treppenhaus liegt neben dem Ladenlokal. Im ersten Obergeschoss befindet sich ein offener Ess- und Wohnbereich, eine geräumige Küche und ein Badezimmer mit Badewanne. Vom Flurbereich gelangen Sie auf die kleine Dachterrasse.
Im Dachgeschoss befinden sich drei potentielle Schlafzimmer sowie ein Badezimmer mit Dusche. Das Haus besitzt einen Heizkeller mit Öltank, der restliche Keller bietet ausreichend Stauraumfläche.
Das Haus bietet viele Möglichkeiten. Neben der Nutzung als Wohn-und Geschäftshaus mit den vorhandenen Räumlichkeiten gibt es zudem Erweiterungs- und Aufstockungsmöglichkeiten. Den zugehörigen rechtskräftigen Bebauungsplan der Stadt Bonn können Sie gerne dem Exposé entnehmen.
PROVISIONSFREI - Wohn-/Geschäftshaus in Ippendorf
53127 Bonn
Die vollständige Adresse der Immobilie erhalten Sie vom Anbieter.
Auf Karte anzeigen
Die vollständige Adresse der Immobilie erhalten Sie vom Anbieter.
Finanzierungszertifikat
In nur zwei Minuten zu Ihrem persönlichen Finanzierungszertifkat.
Infos
| Haustyp | Einfamilienhaus |
|---|---|
| Etagenzahl | 3 |
| Wohnfläche ca. | 120 m2 |
| Nutzfläche | 120 m2 |
| Grundstücksfläche | 413 m2 |
| Bezugsfrei ab | sofort |
| Zimmer | 4 |
Kosten
| Kaufpreis |
688.000 € |
|---|---|
| Provision | Nein |
Finanzierungsrechner:
Kaufpreis:
600.000 €
Eigenkapital:
600.000 €
Monatliche Rate
0 €
Effektiver Jahreszins
0 %
Sollzinsbindung
10 Jahre
Bausubstanz & Energieausweis
| Baujahr | 1950 |
|---|---|
| Objektzustand | Renovierungsbedürftig |
| Heizungsart | Öl-Heizung |
| Wesentliche Energieträger | Öl |
| Energieausweis | liegt vor |
| Energieausweistyp | Bedarfsausweis |
| Energieverbrauchskennwert | 221,8 kWh/(m²*a) |
Beschreibung des Objekts
Ausstattung
Ippendorf ist ein südwestlich von der Innenstadt gelegener Ortsteil in Bonn und liegt etwa fünf Kilometer vom Bonner Zentrum entfernt. Der Ortsteil bietet höchstes Wohlgefühl inmitten der umgebenen Natur trotz Zentrumsnähe.
Die Nähe zur Waldau bietet einen großen Erholungs- und Freizeitwert.
In Ippendorf finden Sie alle Geschäfte des täglichen Bedarfs, Ärzte, Apotheken, Bäckereien, Drogerien, Restaurants und vieles mehr. Ebenso befinden sich dort eine Grundschule und Kindergärten und weiterführende Schulen sowie Berufskollegs sind nur wenige Minuten entfernt.
Durch die Nähe zum Bonner Zentrum, Poppelsdorf, die Bonner Südstadt und zu den Universitätskliniken auf dem Venusberg ist Ippendorf eine hervorragende Wohnlage und sehr stark nachgefragt.
Die Anbindung an das Verkehrsnetz und den ÖPNV ist als sehr gut zu bewerten. Auffahrten zur A565, A562, A555 und zur A59 sind somit schnell erreichbar.
Den Flughafen Köln/Bonn erreicht man in rund 25 Fahrminuten.
Grundriss
Grundriss Keller
>
>
Grundriss Gewerbe
>
>
Grundriss Backstube
>
>
Grundriss Obergeschoss
>
>
Grundriss Dachgeschoss
>
>
Adresse
53127 Bonn
Interessante Orte
Preis- und Lageinformationen
Preistrend für Bestandsimmobilien in Ippendorf