Eine attraktive Lage mit kurzen Wegen - die Entfernung zum Yacht- und Fischereihafen beträgt nur ca. 1,5 Kilometer, zum Strand und der Strandpromenade sind es ca. 200 Meter. Der Ortskern ist bei einem Spaziergang gut zu Fuß, mit dem Fahrrad oder dem Bus zu erreichen.
Das Gebäude mit insgesamt 8 Eigentumswohnungen lehnt sich architektonisch an die benachbarten Gebäude, die in den nachfolgenden Jahren errichtet wurden, an. Durch die Südwestausrichtung des Gebäudes ergibt sich eine sehr sonnige Wohnanlage. Das Haus ist von viel Grün umgeben.
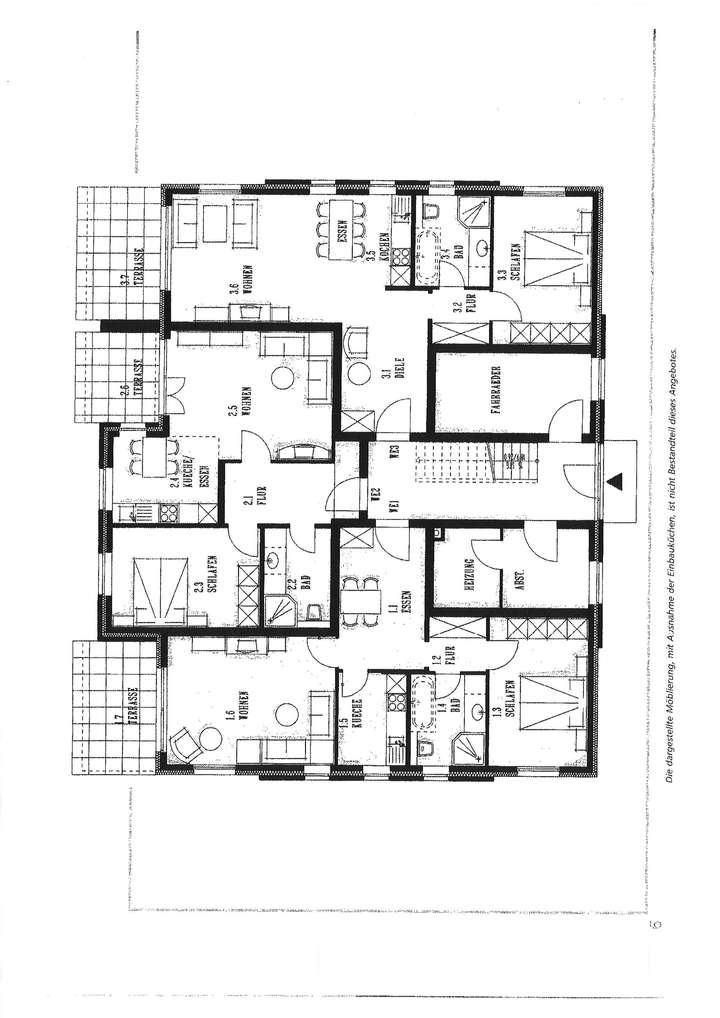
Die sehr geräumige und vollständig eingerichtete 2- Zimmer- Eigentumswohnung mit Terrasse liegt zur Südseite mit einem Blick auf die umliegende Landschaft und den nur für die Bewohner/ Besucher des Hauses zur Verfügung stehenden hauseigenen, umzäunten Kinderspielplatz.
Eine attraktive Lage mit kurzen Wegen - die Entfernung zum Yacht- und Fischereihafen beträgt nur ca. 1,5 Kilometer, zum Strand und der Strandpromenade sind es ca. 200 Meter. Der Ortskern ist bei einem Spaziergang gut zu Fuß, mit dem Fahrrad oder dem Bus zu erreichen.
Das Gebäude mit insgesamt 8 Eigentumswohnungen lehnt sich architektonisch an die benachbarten Gebäude, die in den nachfolgenden Jahren errichtet wurden, an. Durch die Südwestausrichtung des Gebäudes ergibt sich eine sehr sonnige Wohnanlage. Das Haus ist von viel Grün umgeben.
Die sehr geräumige und vollständig eingerichtete 2- Zimmer- Eigentumswohnung mit Terrasse liegt zur Südseite mit einem Blick auf die umliegende Landschaft und den nur für die Bewohner/ Besucher des Hauses zur Verfügung stehenden hauseigenen, umzäunten Kinderspielplatz.
Die Grundrissaufteilung ist gut durchdacht und für die Nutzung mit bis zu 4 Personen sehr praktikabel. Das Wohnzimmer bietet mit seiner Sitzecke die besten Voraussetzungen für einen gemütlichen Aufenthalt. Zur weiteren technischen Ausstattung gehören ein Fernseher, ein Videorecorder, ein DVD- Player und eine Hifi- Anlage. Die Wohnung ist kinder- und familienfreundlich eingerichtet. Im Schlafzimmer befinden sich ein Doppelbett und ein geräumiger Kleiderschrank für Ihre Garderobe sowie ein zweiter Fernseher. Die separat angeordnete Küche ist mit einer Einbauküche (Kühlschrank, separater Gefrierschrank, Herd, Backofen, Geschirrspüler, Mikrowelle) ausgestattet. Im Tageslichtduschbad befinden sich auch eine Waschmaschine und ein Trockner.
Der zur Wohnung zugehörige PKW- Außenstellplatz befindet sich direkt vor dem Haus. Ein zur Wohnung zugehöriger Abstellraum befindet sich im Dachgeschoss.
schöne 2-Zimmer-Eigentumswohnung in einer ruhigen Wohnungseigentümergemeinschaft, ca. 200m zum Meer!
23946 Boltenhagen
Die vollständige Adresse der Immobilie erhalten Sie vom Anbieter.
Auf Karte anzeigen
Die vollständige Adresse der Immobilie erhalten Sie vom Anbieter.
Finanzierungszertifikat
In nur zwei Minuten zu Ihrem persönlichen Finanzierungszertifkat.
Infos
| Wohnungskategorie | Erdgeschosswohnung |
|---|---|
| Etage | 0 von 2 |
| Wohnfläche ca. | 62 m2 |
| Nutzfläche | 67 m2 |
| Zimmer | 2 |
| Schlafzimmer | 1 |
| Badezimmer | 1 |
| Garage/Stellplatz | Außenstellplatz |
| Anzahl Garage/Stellplatz | 1 |
Kosten
| Kaufpreis |
306.000 € |
|---|---|
| Hausgeld |
200 € |
| Provision |
3,57% inklusive gesetzliche Mehrwertsteuer |
Finanzierungsrechner:
Kaufpreis:
600.000 €
Eigenkapital:
600.000 €
Monatliche Rate
0 €
Effektiver Jahreszins
0 %
Sollzinsbindung
10 Jahre
Bausubstanz & Energieausweis
| Baujahr | 2001 |
|---|---|
| Objektzustand | Gepflegt |
| Qualität der Austattung | Normal |
| Heizungsart | Zentralheizung |
| Wesentliche Energieträger | Gas |
| Energieausweis | liegt vor |
| Energieausweistyp | Verbrauchsausweis |
| Energieverbrauchskennwert | 76,9 kWh/(m²*a) |
| Energieeffizienzklasse | C |
76,9
kWh/(m²*a)
Energieeffizienzklasse C
- A+
- A
- B
- C
- D
- E
- F
- G
- H
- 0
- 25
- 50
- 75
- 100
- 125
- 150
- 175
- 200
- 225
- >250
Beschreibung des Objekts
Ausstattung
- Flur/ Eingangsbereich
- Wohnzimmer mit Zugang zur
Terrasse
- separate Küche mit Einbauküche
- Schlafzimmer
- Tageslichtduschbad (Waschmaschine/ Wäschetrockner)
- zugehöriger, separater Abstellraum im Dachgeschoss
Lage
Das Ostseebad Boltenhagen ist das zweitälteste Seebad in Mecklenburg. Über die alten, ausgebauten Alleen und die Autobahn (A20) besteht eine gute Anbindung z.B. nach Wismar, Rostock, Lübeck oder Hamburg. Die besondere Lage in Strandnähe mit ihrem anspruchsvollen Umfeld hat an der Ostseeküste Seltenheitswert.
Schon seit 1803 vertraut man hier auf die heilende Kraft des Meeres. Heute zählt Boltenhagen zu den attraktivsten Adressen an der mecklenburgischen Küste. Der attraktiv gestaltete Ortskern mit seinen kleinen Cafés, Restaurants und Geschäften machen das traditionsreiche Seeheilbad zu einem beliebten Urlaubs- und Ausflugsziel. Am Kurpark strahlen die erhaltenen und sanierten Gebäude in alter Bäderarchitektur den wieder gewonnenen Charme vergangener Tage aus. An einem der schönsten Küstenstreifen der Ostsee lässt sich traumhaft Urlaub machen - es lässt sich hier aber auch auf Dauer gut leben. Dafür sorgen das gesunde Meeresklima und die unverwechselbare Landschaft, in die Boltenhagen eingebettet ist sowie ein abwechslungsreiches Kulturangebot. Die weitläufigen, sanft hügeligen Grünflächen um Boltenhagen sowie der autofreie Waldstreifen zwischen Ort und Strand laden zu ausgiebigen Spaziergängen und Radwanderungen ein. Hauptanziehungspunkt ist der kilometerlange feinsandige, weiße Sandstrand, der im Westen in eine beeindruckende Steilküste übergeht. Entlang des gepflegten ca. 4,5 Kilometer langen Badestrandes, erstreckt sich die Strandpromenade mit der 290 Meter langen Seebrücke. Das neue Highlight zwischen den Strandaufgängen bietet die neue Dünenpromenade mit ihren witterungsbeständigen Hartholz-Planken. Sie bietet Ihnen einem freien Blick auf die Ostsee und die Steilküste Boltenhagen.
Sonstige Angaben
- 1 Pkw-Außenstellplatz
- separater Abstellraum im
Dachgeschoss
- sonnige Lage
- nah am Yacht-/ Fischereihafen
"Weisse Wiek" gelegen
- Einkaufsmöglichkeiten im näheren
Umfeld (Discounter "Netto"
inklusive Bäcker, Bioladen mit Bio-
Bistro)
- gemäß B-Planausweisung kann die
Eigentumswohnung als Erst- oder
Zweitwohnsitz genutzt werden
Weitere Dokumente
EnergieausweisGrundriss
Grundriss Erdgeschoss
>
>
Adresse
23946 Boltenhagen
Interessante Orte
Preis- und Lageinformationen
Preistrend für Bestandsimmobilien in Boltenhagen