Traumgrundstück für die ganze Familie, ruhig gelegen mit unverbaubarem Blick in die Natur.
Hier auf dem voll erschlossenen Grundstück kann man gleich durchstarten. Aufgrund des bereits genehmigten Bauplans sind Behördengänge nicht mehr nötig.
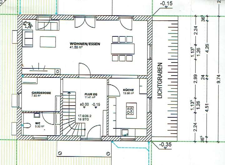
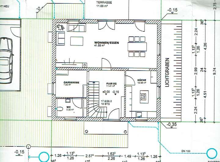
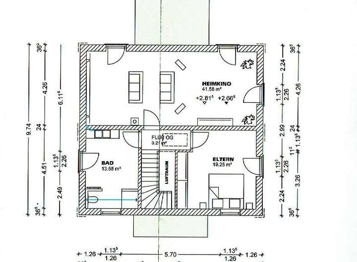
Genehmigt wurde ein schön gestaltetes EFH mit Doppelgarage. Ca. 204 qm Wohnfläche verteilen sich auf 2 Geschosse und das geplante Haus ist komplett unterkellert. Die Raumgestaltung und Aufteilung kann selbstverständlich - ebenso wie die Positionierung der Fenster - nach den eigenen Vorstellungen angepasst werden. Auf dem 819 qm grossen Grundstück ist ebenfalls eine Doppelgarage geplant und genehmigt.
Also warum warten? Hier ist der Platz um einfach und unkompliziert seine Wohnträume mit viel Raum für die ganze Familie zu verwirklichen.
HIER KLICKEN: Baugrundstück mit bereits genehmigtem Bauantrag in ruhiger Traumlage!
86558 Hohenwart
Die vollständige Adresse der Immobilie erhalten Sie vom Anbieter.
Auf Karte anzeigen
Die vollständige Adresse der Immobilie erhalten Sie vom Anbieter.
Finanzierungszertifikat
In nur zwei Minuten zu Ihrem persönlichen Finanzierungszertifkat.
Infos
| Vermarktungsart | Kaufen |
|---|---|
| Grundstücksfläche | 819 m2 |
| Erschließung | Erschlossen |
| Empfohlene Nutzung | Einfamilienhaus |
| Grundflächenzahl (GRZ) | 0.19 |
| Geschossflächenzahl (GFZ) | 0.25 |
| Bebaubar nach | wie Nachbarbebauung |
| Verfügbar ab | sofort |
Kosten
| Miete pro Jahr |
475.000 € |
|---|---|
| Provision |
3,57% inkl. 19% MwSt vom Kaufpreis |
Finanzierungsrechner:
Kaufpreis:
600.000 €
Eigenkapital:
600.000 €
Monatliche Rate
0 €
Effektiver Jahreszins
0 %
Sollzinsbindung
10 Jahre
Beschreibung des Objekts
Lage
Freinhausen ist ein Ortsteil des oberbayerischen Marktes Hohenwart, Landkreis Pfaffenhofen an der Ilm mit ca. 4.800 Einwohnern und somit ein ruhiger Ort mit einer netten Nachbarschaft.
Es liegt ca. 17 km von Ingolstadt und ca. 15 km von Pfaffenhofen entfernt. Somit ist man schnell zum Arbeiten oder Shoppen an beiden Hot-Spots.
Einkaufsmöglichkeiten, Ärzte und Restaurants, etc. befinden sich in Hohenwart, Schrobenhausen, Ingolstadt und Pfaffenhofen. Schnell auf die BAB München-Nürnberg
3 Kindergärten, 1 Grund- und Mittelschule, in Hohenwart.
Sonstige Angaben
Wir freuen uns sehr über Ihr Interesse an unserem Angebot und würden uns freuen von Ihnen zu hören.
Gerne können wir dann persönlich einen Besichtigungstermin vereinbaren. Hierzu erreichen Sie uns unter Tel.: (mit AB) 0841 / 33341 oder Mobil: 0179 / 3986544. Alternativ senden Sie uns bitte eine Email mit Ihren Kontaktdaten.
Rückfragen gerne jederzeit an uns.
Mit freundlichen Grüßen
Hermann Wölfl
Wölfl Immobilien
-Seit 1989 Ihr Immobilienprofi in Ingolstadt, München und Oberbayern-
www.woelfl-immobilien.de
>
>
>