Mit ca. 146 m² Wohnfläche und einem Grundstück von rund 149 m² bietet dieses Reihenmittelhaus ein durchdachtes Wohnkonzept. Die Ausstattung überzeugt mit Eichenholzparkett, Fußbodenheizung, dreifach verglasten Fenstern, elektrischen Rollläden sowie Sanitärelementen von Villeroy & Boch und Hansgrohe. Für zusätzlichen Komfort sorgen eine bodengleiche Dusche, hochwertige Fliesen von VITRA und eine Gegensprechanlage mit Kamera.
Grundriss im Detail
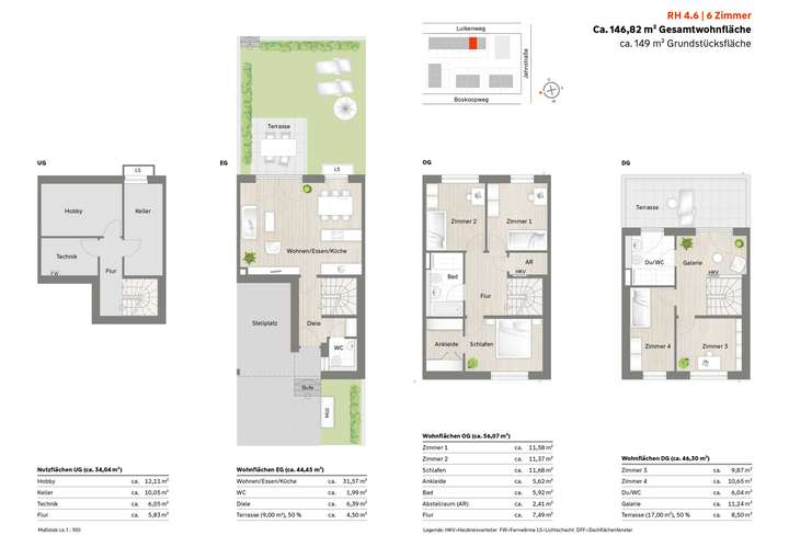
•Erdgeschoss: Wohn-/Essbereich mit offener Küche, Gästetoilette und Zugang zu Terrasse und Garten – ideal für geselliges Wohnen und Familienleben.
•Obergeschoss: Zwei Zimmer, Schlafzimmer mit Ankleide, innenliegendes Bad mit Badewanne und Dusche sowie ein Abstellraum – praktisch für zusätzlichen Stauraum.
•Dachgeschoss: Zwei Zimmer, Galerie, Tageslichtbad mit Dusche und Dachterrasse – für zusätzlichen Freiraum und private Rückzugsmomente.
•Untergeschoss: Technikraum, Waschküche und Hobbyraum mit Parkettboden – vielseitig nutzbar für Fitness, Hobby oder Stauraum.
Jetzt besichtigen! Die Häuser sind bereits fertiggestellt und können nach Terminvereinbarung besichtigt werden. Überzeugen Sie sich selbst.
Kontaktieren Sie uns noch heute und sichern Sie sich Ihr neues Zuhause.
Familienparadies: Reihenmittelhaus mit Garten und Dachterrasse
Luikenweg 3/2,
73760 Ostfildern
Auf Karte anzeigen
Finanzierungszertifikat
In nur zwei Minuten zu Ihrem persönlichen Finanzierungszertifkat.
Infos
| Haustyp | Reihenmittelhaus |
|---|---|
| Etagenzahl | 3 |
| Wohnfläche ca. | 146 m2 |
| Nutzfläche | 34,04 m2 |
| Grundstücksfläche | 149 m2 |
| Bezugsfrei ab | sofort |
| Zimmer | 6 |
| Schlafzimmer | 5 |
| Badezimmer | 2 |
| Garage/Stellplatz | Außenstellplatz |
Kosten
| Kaufpreis |
849.000 € |
|---|---|
| Provision | Nein |
Finanzierungsrechner:
Kaufpreis:
600.000 €
Eigenkapital:
600.000 €
Monatliche Rate
0 €
Effektiver Jahreszins
0 %
Sollzinsbindung
10 Jahre
Bausubstanz & Energieausweis
| Baujahr | 2024 |
|---|---|
| Objektzustand | Erstbezug |
| Qualität der Austattung | Normal |
| Heizungsart | Fernwärme |
| Wesentliche Energieträger | Fernwärme |
| Energieausweis | liegt vor |
| Energieausweistyp | Bedarfsausweis |
| Energieverbrauchskennwert | 55,5 kWh/(m²*a) |
| Energieeffizienzklasse | B |
55,5
kWh/(m²*a)
Energieeffizienzklasse B
- A+
- A
- B
- C
- D
- E
- F
- G
- H
- 0
- 25
- 50
- 75
- 100
- 125
- 150
- 175
- 200
- 225
- >250
Beschreibung des Objekts
Ausstattung
Unsere Häuser vereinen modernes Design mit hochwertigen Materialien und durchdachten Details. Freuen Sie sich auf folgende Wohn-Highlights:
Wohnkomfort & Design
•Abgetrennte Privatgärten mit Terrasse sowie großzügige Dachterrassen
•Fußbodenheizung in allen Wohngeschossen für behagliche Wärme
•Edles Eichenholzparkett und hochwertige Fliesen von VITRA
•Hochwertige Wandgestaltung mit Malervlies
•Bodengleiche Dusche für zeitgemäßen Komfort
Technik & Sicherheit
•Dreifach verglaste Fenster für optimale Wärmedämmung
•Elektrische Rollläden in allen Wohngeschossen
•Gegensprechanlage mit integrierter Kamera für mehr Sicherheit
•Eingangstür mit Fenster für einen einladenden Empfang
Sanitärausstattung
•Markenqualität von Villeroy & Boch und Hansgrohe
Zusätzliche Highlights
•Keller mit Hobbyraum, ausgestattet mit Parkett
•Fahrradständer für Ihr Bike
•Möglichkeit zur Installation einer E-Ladestation
•Kinderspielplatz im Quartier
Nachhaltigkeit & Energie
•Effizienzhaus-Standard EH 55 (GEG 2020)
•Energieausweis liegt vor
Lage
Inmitten von grünen Feldern und Waldflächen zwischen der Metropole Stuttgart und dem Flughafen Stuttgart liegt die Kleinstadt Ostfildern. Die Lage im weitgehend naturbelassenen Körschtal spricht für idyllisches Flair und Harmonie, dennoch müssen die rund 40.000 Einwohnerinnen und Einwohner auf nichts verzichten. Zu den vielen Annehmlichkeiten vor Ort kommt der Vorteil einer idealen Ausgangslage: Von Ostfildern aus ist man schnell und bequem in alle Richtungen unterwegs, sowohl mit dem Auto wie auch durch die praktische ÖPNV-Anbindung. Und selbst Reisen zu fernen Zielen lassen sich dank der Nähe zum Stuttgarter Flughafen, der in nur 16 Autominuten zu erreichen ist, entspannt und unkompliziert gestalten.
Dank der ausgezeichneten Infrastruktur und vielfältiger Angebote bietet die Stadt ein hohes Maß an Lebensqualität. Hier hat man alles in Reichweite, was man für Alltag und Freizeit braucht: zahlreiche Läden und Fachgeschäfte, großzügige Parks, Sportanlagen und Spielplätze, Kliniken und Arztpraxen, Kinderbetreuungs- und Bildungseinrichtungen. Stille Seen, Naturfreibäder oder der nahe gelegene Zoologisch-Botanische Garten Stuttgart, die Wilhelma, zählen besonders für Familien zu den beliebten Ausflugszielen.
Weitere Dokumente
Ostfildern_Grundriss_RHM_4.6Energieausweis_Hausgruppe 4
Grundriss
Ostfildern_Grundriss_RHM_4.6
>
>
Adresse
Luikenweg 3/2, 73760 Ostfildern
Interessante Orte
Preis- und Lageinformationen
Preistrend für Bestandsimmobilien in Ostfildern