Bei dieser Immobilie handelt es sich um ein großes Baugrundstück in idyllischer Lage
für welches eine positive Baugenehmigung für die Errichtung eines Einfamilienhauses
mit zwei Vollgeschossen vorliegt.
Das geplante Teilgrundstück liegt direkt an der Straße und kann hierüber erschlossen
werden. Die Teilungskosten gehen zu Lasten vom Käufer.
Das Einfamilienhaus kann mit den Außenmaßen von 13,0 m x 10,0 m errichtet werden.
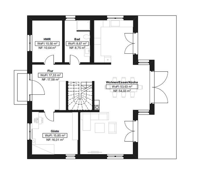
Im Erdgeschoss des Hauses befinden sich insgesamt zwei Räume. Beim Eintreten
kommen Sie in einen großen, lichtdurchfluteten Flur mit Zugang zu jedem weiteren
Raum u.a. dem Wohn- und Essbereich des Erdgeschosses. Im Dachgeschoss
befinden sich weitere drei Räume, ein großes Bad, ein großzügiger Flur mit
Arbeitsbereich und ein Ankleidezimmer.
Entsprechende Bauzeichnungen können bei Bedarf gesichtet werden.
Auf dem großzügigen Gartengrundstück, welches direkt an ein Waldgrundstück
angrenzt, befinden sich neben einem Abrisswohnhaus diverse massive
Geräteschuppen und Werkstattbereiche. Die Kosten für den Abriss des Wohnhauses
sind vom Käufer zu tragen.
Schönes Baugrundstück mit Baugenehmigung für ein großzügiges EFH - Teilgrundstück 02
16515 Oranienburg
Die vollständige Adresse der Immobilie erhalten Sie vom Anbieter.
Auf Karte anzeigen
Die vollständige Adresse der Immobilie erhalten Sie vom Anbieter.
Finanzierungszertifikat
In nur zwei Minuten zu Ihrem persönlichen Finanzierungszertifkat.
Infos
| Vermarktungsart | Kaufen |
|---|---|
| Grundstücksfläche | 648,53 m2 |
| Erschließung | Teilerschlossen |
| Empfohlene Nutzung | Einfamilienhaus |
| Bebaubar nach | wie Nachbarbebauung |
| Verfügbar ab | sofort |
Kosten
| Miete pro Jahr |
149.000 € |
|---|---|
| Provision |
7,14 % inkl. MwSt. |
Finanzierungsrechner:
Kaufpreis:
600.000 €
Eigenkapital:
600.000 €
Monatliche Rate
0 €
Effektiver Jahreszins
0 %
Sollzinsbindung
10 Jahre
Beschreibung des Objekts
Lage
Der Ortsteil Schmachtenhagen-Ost der Stadt Oranienburg zählt zu den beliebtesten
Wohnlagen im direkten Umkreis der Landeshauptstadt Berlin.
Es wird eine gute Infrastruktur, ein gutes Schulnetz sowie sehr gute
Einkaufsmöglichkeiten geboten.
Die Innenstadt von Oranienburg ist in nur 15 Minuten mit dem Auto entfernt. Der
Schlosspark ist ein beliebter Ort für heiße Sommertage. Discounter, Supermärkte,
Baumärkte, Elektrofachgeschäfte - hier finden Sie alles!
Ebenfalls erreichen Sie in unmittelbarer Nähe viele Wanderwege durch Felder und
Wiesen sowie Wälder und Seen. Das Schwimmbad, der Havelradweg, die Briese,
Liepnitzer- und Mühlenbeckersee, Schloss Dammsmühle und der Havelkanal sind
beliebte Ausflugsziele für Jung und Alt.
Das Sport- und Freizeitangebot ist ebenfalls sehr gut und bietet vielfältige
Möglichkeiten für die Freizeitgestaltung.
Der Stadtteil Schmachtenhagen-Ost hat sich die Ruhe und die Freundlichkeit eines
Dorfes bewahrt, bietet aber alle Annehmlichkeiten einer Kleinstadt durch die Nähe zum
Oranienburger Stadtzentrum. Hier werden Sie sich wohl fühlen!
Sonstige Angaben
Das Objekt wird ab März 2025 ans Abwassernetz angeschlossen
Grundriss
Grundriss EG-01
>
>
Grundriss OG-01
>
>