Wenn Sie eine gepflegte, voll vermietete Kapitalanlage, im Speckgürtel der Hansestadt Rostock, mit gleichzeitiger Nähe zu Ribnitz-Damgarten und Sanitz, suchen, und Sie dabei die Vorzüge einer ruhigen, ländliche geprägten, Grünland umgebenden Lage schätzen, dann schauen Sie sich dieses Immobilienangebot unbedingt näher an.
Dieses Mehrfamilienhaus verfügt derzeit über 3 Wohneinheiten, die voll vermietet sind. Die 3 Wohneinheiten verteilen sich auf 2 Etagen. Wohnung 1 im Erdgeschoß ist eine 3-Raum-Wohnung und hat eine Wohnfläche von ca. 90 m². Im Obergeschoß sind die Wohnung 2, eine 3-Raum-Wohnung, mit einer Wohnfläche von ca. 52 m², sowie Wohnung 3, eine 4-Raum-Wohnung, mit einer Wohnfläche von ca. 101 m². Die derzeit als Nebenräume genutzten Flächen stehen den Mietern zur Verfügung. Hier befinden sind für jede Wohneinheit ein eigener Abstellraum. Als besonderes Highlight für die Mieter ist im Erdgeschoß ein Wellnessbereich eingerichtet. Mit der dort eingebrachten finnischen Sauna, dem dazugehörigen Sanitärbereich und einem vorgelagerten Raum, der weiter ausgebaut werden kann, steht den Mietern hier eine außergewöhnliche Ergänzung für ein besonderes Wohlfühlen zur Verfügung. Die Außenanlagen bieten zusätzlich sehr angenehme Möglichkeiten. Mit dem ins Grüne ausgerichteten Grundstück, welches den Mietern zur freien Nutzung steht, ist auch hier ein langjähriges Wohl- & Zuhause fühlen optimal gegeben. Für jede Wohneinheit steht zudem ein Carport-Stellplatz zur Verfügung, 2 weitere Freiplätze können optional genutzt werden.
Dieses Immobilienangebot hat Ihr Interesse geweckt und Sie möchten gerne mehr erfahren? Sehr gerne. Diskretion für alle Beteiligten ist ein wesentliches Merkmal unserer Philosophie. Sie sind eingeladen, diese Immobilie vorab virtuell zu besichtigen. Hierfür ist ein 360°-Rundgang für Sie eingerichtet: https://app.immoviewer.com/portal/tour/2802192. Die Freischaltung des Rundgangs erfolgt mit der Übersendung des Exposés. Klicken Sie hierfür bitte einfach auf den Button "Anbieter kontaktieren / Nachricht schreiben" auf Ihrem Portal.
Wir danken Ihnen für Ihr Verständnis, dass Sie darüber hinausgehende Informationen in einem persönlichen Gespräch mit uns erhalten, und freuen uns auf Ihre Kontaktaufnahme.
Stabilität & Sicherheit mit Immobilien-Invest
18184 Broderstorf
Die vollständige Adresse der Immobilie erhalten Sie vom Anbieter.
Auf Karte anzeigen
Die vollständige Adresse der Immobilie erhalten Sie vom Anbieter.
Finanzierungszertifikat
In nur zwei Minuten zu Ihrem persönlichen Finanzierungszertifkat.
Infos
| Haustyp | Mehrfamilienhaus |
|---|---|
| Etagenzahl | 2 |
| Wohnfläche ca. | 242 m2 |
| Nutzfläche | 270 m2 |
| Grundstücksfläche | 971 m2 |
| Zimmer | 10 |
| Schlafzimmer | 10 |
| Badezimmer | 3 |
| Anzahl Garage/Stellplatz | 3 |
Kosten
| Kaufpreis |
350.000 € |
|---|---|
| Preis für Garage/Stellplatz | 0 € |
| Provision |
7,14 % inkl. 19 % MwSt. |
Finanzierungsrechner:
Kaufpreis:
600.000 €
Eigenkapital:
600.000 €
Monatliche Rate
0 €
Effektiver Jahreszins
0 %
Sollzinsbindung
10 Jahre
Bausubstanz & Energieausweis
| Baujahr | 1950 |
|---|---|
| Objektzustand | Modernisiert |
| Heizungsart | Zentralheizung |
| Wesentliche Energieträger | Öl |
| Energieausweis | laut Gesetz nicht erforderlich |
Beschreibung des Objekts
Ausstattung
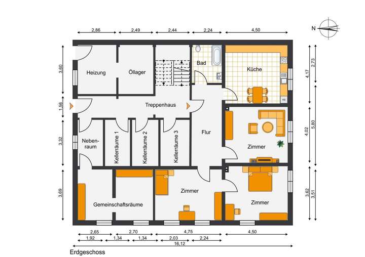
Dieses Mehrfamilienhaus wurde 1950 in massiver Bauweise erbaut. Die derzeitige Aufteilung umfasst 3 Wohneinheiten, mit einer gesamten Wohnfläche von ca. 242 m², und einer Nutzfläche von ca. 170 m². Das Grundstück hat eine Größe von ca. 971 m².
Im Erdgeschoß befindet sich eine 3-Raum-Wohnung mit einer Wohnfläche von ca. 90 m², die sich auf ein Wohnzimmer, ein Schlafzimmer, ein Arbeits-, Kinder- oder Gästezimmer, ein Bad mit einer Duschwanne, WC, Waschtisch und Waschmaschinenanschluß, eine Küche und einen Flur verteilen.
Weiterhin sind auf dieser Etage 3 Abstellräume, sodass jede Wohneinheit über einen zusätzlichen Raum verfügt. Sehr besonders ist, dass für die Hausgemeinschaft hier ein Wellnessbereich geschaffen wurde, der mit einer finnischen Sauna, einem dazugehörigen Sanitärbereich und einem Vorraum eingerichtet ist.
Im Obergeschoß befinden sich zwei Wohneinheiten. Eine 3-Raum-Wohnung mit einer Wohnfläche von ca. 52 m², die sich auf ein Wohnzimmer, ein Schlafzimmer, ein Arbeits-, Kinder- oder Gästezimmer, ein Bad mit einer Duschwanne, WC, Waschtisch und Waschmaschinenanschluß, eine Küche und einen Flur verteilen. Und eine 4-Raum-Wohnung mit einer Wohnfläche von ca. 101 m², die sich auf ein Wohnzimmer, ein Schlafzimmer, zwei Räume die als Arbeits-, Kinder- oder Gästezimmer genutzt werden können, ein Bad mit einer Duschwanne, WC, Waschtisch und Waschmaschinenanschluß, eine Küche und einen Flur verteilen.
Die Warmwasser- & Wärmeversorgung erfolgt über eine Ölheizung Baujahr 1996. Im Haus sind 2-fach-verglaste Kunststoff-Fenster Baujahr 1996 verbaut. 2021 wurde auf das Dach eine Fotovoltaikanlage aufgebracht, die eine Leistung von ca. 8 kWp hat und über einen 5 kW Speicher verfügt. Im Zuge dieser Modernisierung wurde auch die Dacheindeckung erneuert. Glasfaser ist bereits im Haus verlegt.
Für jede Wohneinheit steht ein Carport-Stellplatz zur Verfügung. Darüber hinaus sind zwei Freiplätze vorhanden. Die Außenanlagen sind überwiegend zur Rückseite des Hauses ausgerichtet, als Grünflächen angelegt und stehen ebenfalls den Mietern zur Nutzung zur Verfügung.
Weitere Informationen erhalten Sie gerne auf Anfrage. Der Energieausweis liegt zur Besichtigung vor.
Lage
Rothbeck gehört zur Gemeinde Steinfeld im Landkreis Bad Doberan, in Mecklenburg Vorpommern. Sie liegt jeweils ca. 15 km von Rostock und von der Ostseeküste entfernt. Das leicht hügelige Gebiet wird vom Peezer Bach in Richtung Breitling entwässert. Östlich von Poppendorf erstreckt sich ein ausgedehnter Wald, der als Landschaftsschutzgebiet ausgewiesen ist. Umgeben wird Poppendorf von den Nachbargemeinden Rövershagen im Norden, Blankenhagen im Osten, Broderstorf im Süden, sowie Bentwisch im Westen.
Entfernungen: Bushaltestelle im Ort ca. 20m, Bentwisch ca. 11 km, Markgrafenheide ca. 19 km, Graal-Müritz ca. 25 km, Innenstadt Rostock ca. 15 km, Sanitz ca. 11 km, Ribnitz-Damgarten ca. 20 km, Bad Doberan ca. 36 km, Grimmen ca. 55 km, Stralsund ca. 65 km, Greifswald ca. 80 km, Wismar ca. 80 km, Schwerin ca. 105 km, Hamburg ca. 200 km, Berlin ca. 235 km. Flughafen Rostock Laage ca. 44 km. Anbindung an die B105 und die Bahnstation in Rövershagen ca. 14 km.
Sonstige Angaben
Ihr persönlicher Ansprechpartner für dieses Immobilienangebot:
Till Krüger
Tel. 017620336019
Die Objektbeschreibung beruht ganz oder zum Teil auf Angaben des Eigentümers. Für die Richtigkeit oder Vollständigkeit übernehmen wir keine Gewähr.
Unser besonderer Service für Sie:
Unsere Erreichbarkeit, Zuverlässigkeit und Professionalität.
Sie erreichen unsere kostenlose Hotline unter 0800. 646 0 646
Täglich - Montag bis Sonntag - von 06 - 22 Uhr - Wir sind gern für Sie da.
Bitte geben Sie Ihre vollständigen Kontaktdaten mit Name, Anschrift und Rufnummer an.
Wir unterstützen Sie auch, falls Sie Ihre derzeitige Immobilie professionell vermarkten wollen. Über 40.000 aktive Interessenten warten bereits auf Sie.
Besuchen Sie auch gern unser Büro in der Hansestadt Rostock:
Krämerstraße 6
18055 Hansestadt Rostock
Weitere Dokumente
Ihre FinanzierungslösungIhre Finanzierungslösung
Grundriss
r5SGtUsRtDJFFDV5bmHc7t9T-big 5
>
>
ncpba93UBuTvWy9mKDxqfBSW-big 4
>
>
Adresse
18184 Broderstorf
Interessante Orte
Preis- und Lageinformationen
Preistrend für Bestandsimmobilien in Steinfeld