Wir offerieren Ihnen eine sehr atmosphärische, hervorragend ausgestattete und neuwertige Villa in bester Bauausführung:
*** 42er Ziegelwand mit Natursteinfassade, das ergibt eine Außenwandstärke von 76 cm.
***Wasserautarkie: eigener Trinkwasserbrunnen, der bei regelmäßiger Wasserknappheit in den Sommermonaten in die hauseigenen Wasserleitungen gespeist wird. So bleiben Sie unabhängig von der allgemeinen Versorgungsqualität und das bei bester Trinkwasserqualität!
*** Die Villa wurde bislang nur als Feriendomizil über eine Agentur vermietet und generierte eine sehr rentable Auslastung. Sie ist in unserer Einschätzung somit auch ein sehr gutes Renditeobjekt!
*** neue Küche im Landhausstil 2024
*** teilweise neue Böden in 2024
Das schöne Anwesen liegt in einem romantischen, mittelalterlichen Dorf der Toskana, in der Region Massa Carrara, Fivizzano.
Gönnen Sie sich hier eine traumhafte Aussichtslage - von allen Räumlichkeiten der Villa genießen Sie einen grandiosen Weitblick!
Der wunderschön terrassiert angelegte und eingewachsene Garten verfügt über einen großzügigen Swimmingpool (10 x 5m), auch von dort aus haben Sie eine atemberaubende Aussicht!
Unsere Einschätzung:
Es handelt sich hier um einen ganz besonderen Kraftort und ein außergewöhnlich schönes Refugium der Ruhe zum Abschalten und Seele Baumeln lassen!
Verkauf im Auftrag der deutschen Eigentümer.
Ihr persönliches Hide-Away in der Toskana - neuer, sehr fairer Angebotspreis!
Via Borgo 2,
54013 Fivizzano
Auf Karte anzeigen
Finanzierungszertifikat
In nur zwei Minuten zu Ihrem persönlichen Finanzierungszertifkat.
Infos
| Haustyp | Villa |
|---|---|
| Etagenzahl | 2 |
| Wohnfläche ca. | 198 m2 |
| Nutzfläche | 16 m2 |
| Grundstücksfläche | 1.760 m2 |
| Bezugsfrei ab | nach Absprache |
| Zimmer | 4 |
| Schlafzimmer | 3 |
| Badezimmer | 4 |
| Anzahl Garage/Stellplatz | 4 |
Kosten
| Kaufpreis |
720.000 € |
|---|---|
| Preis für Garage/Stellplatz | 0 € |
| Provision |
4,88 % vom Kaufpreis (incl. 22 % ital. MwSt.) Die vom Käufer zu zahlende Nachweis- und Vermittlungscourtage beträgt 4,88 % inkl. gesetzl. MwSt. (in Italien 22%). Sie ist verdient und wird fällig mit Abschluss des notariellen Kaufvertrags. |
| Mieteinnahmen | 3.300 € |
Finanzierungsrechner:
Kaufpreis:
600.000 €
Eigenkapital:
600.000 €
Monatliche Rate
0 €
Effektiver Jahreszins
0 %
Sollzinsbindung
10 Jahre
Bausubstanz & Energieausweis
| Baujahr | 2008 |
|---|---|
| Bauphase | Haus fertig gestellt |
| Objektzustand | Neuwertig |
| Qualität der Austattung | Gehoben |
| Heizungsart | Gas-Heizung |
| Wesentliche Energieträger | Erdgas schwer |
Beschreibung des Objekts
Ausstattung
Das Anwesen wurde 2008 in höchster Bauqualität errichtet:
Es präsentiert sich in absolutem Topzustand mit hochwertigster Ausstattung in jedem Detail::
* sehr hochwertige Bodenbeläge
* geschmackvolle Bäder : "ensuite" an
jedes Schlafzimmer ist ein eigenes Bad
angegliedert - ein zusätzliches Bad
befindet sich im Erdgeschoss.
Die Villa ist für bis zu 8 Personen voll ausgestattet:
Offene Kamine in der großen, vollausgestatteten Landhausküche und im Wohnzimmer machen ein besonderes Wohnambiente aus.
Eine sehr angenehme Großzügigkeit entsteht durch ein gutes Grundrisskonzept mit offenen Blickachsen.
Die Villa wird komplett möbliert und bestens ausgestattet übergeben.
Der Baukörper ist in einem kleinen Bereich teilunterkellert. Dort befindet sich ein Technikraum (Schwimmbadtechnik) mit Hauswirtschaftsbereich und Stellplatz für Waschmaschine und Trockner.
Das Haus ist sehr stilvoll, hochwertig und authentisch-modern eingerichtet.
Der liebevoll gepflegte Garten und die schönen Terrassen laden zum Verweilen im Freien ein.
Von den Terrassen und Balkonen aus hat man einen atemberaubenden Ausblick in die saftig-grünen Hügel der Nordtoskana.
Lage
Das Anwesen ist infrastrukturiell gut eingebunden, alle Geschäfte des täglichen Bedarf und auch Restaurants liegen nur wenige Auto-Minuten von der nächsten Stadt, mit bezauberndem mittelalterlichen Stadtkern, entfernt.
Das Meer erreichen Sie in 15 Minuten Autofahrt.
Das Anwesen liegt in der Region Massa Carrara und gehört zu Fivizzano, Toskana, Italien.
Sonstige Angaben
Auch für Ihre Autos ist gesorgt:
Das Anwesen verfügt über eine großzügige Einzelgarage mit Überlänge und 4 PKW-Außenstellplätzen.
Besichtigungstermine sind jederzeit individuell vereinbar - Bitte kontaktieren Sie uns mit Ihren vollständigen Kontaktdaten und einer Telefonnummer, unter der Sie tagsüber erreichbar sind.
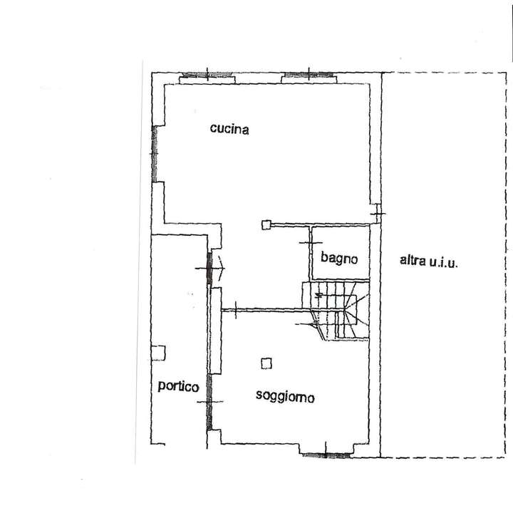
Grundriss
Erdgeschoss
>
>
Obergeschoss
>
>
Technik/Hauswirtschaftsraum
>
>