Zwischen Himmel und Heimat – ein Versprechen aus Ziegeln, Licht und Weitblick
Kein gewöhnliches Grundstück. Kein gewöhnlicher Ort. Sondern ein Ort der Vision – Ihre Vision.
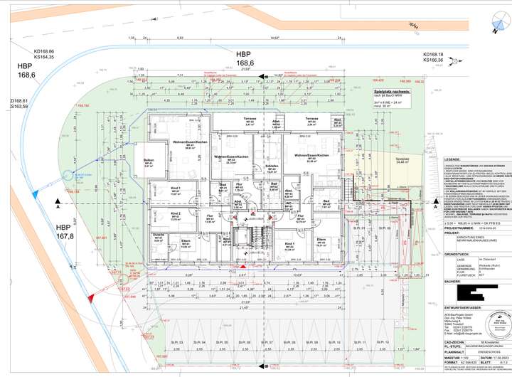
Stellen Sie sich einen Platz vor, an dem nicht nur Quadratmeter zählen, sondern Möglichkeiten. Wo jeder Zentimeter der 1.184 m² großen Fläche mehr ist als nur Grund und Boden – sondern Fundament für Zukunft, Zuhause und Zufriedenheit.
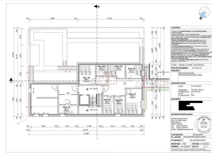
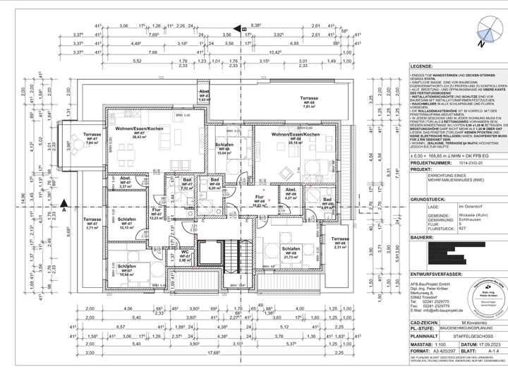
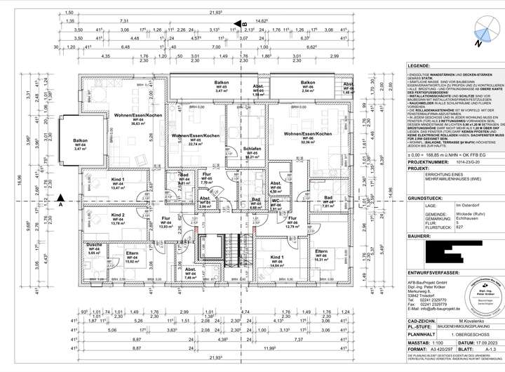
In Wickede-Echthausen, eingebettet in eine der reizvollsten Regionen des Sauerlands, liegt dieses außergewöhnliche Grundstück – bereits genehmigt für den Bau eines stilvollen Mehrfamilienhauses mit acht Wohneinheiten und zwölf Stellplätzen. Der Schlüssel? Die Baugenehmigung ist nicht Zukunftsmusik – sie ist bereits erteilt. Alles steht bereit. Sie brauchen nur noch zu bauen.
Die Planung? Ein echtes Meisterwerk moderner Wohnkultur:
+ Vier Etagen (Keller, EG, OG, DG) mit durchdachten Grundrissen
+ Massive Bauweise, energetisch optimiert nach GEG
+ Photovoltaik, Wärmepumpe, Fußbodenheizung – nachhaltig & effizient
+ Großzügige Fenster, hochwertige Ausstattung, Smart-Home-Vorbereitung
+ Private Kellerräume, Fahrradabstellraum, bodentiefe Duschen & Parkett
Ein echtes Wohn-Ensemble – wie gemacht für Kapitalanleger mit Weitblick, Projektentwickler mit Anspruch oder Familien mit dem Traum vom eigenen Mehrgenerationenhaus.
Und das Beste?
Das Grundstück kommt nicht allein – es bringt Träume mit.
Mit den bereits genehmigten Bauplänen, der Wohnflächenberechnung und einer umfassenden Bauleistungsbeschreibung liegt ein vollständiges Konzept vor. Sie investieren nicht ins Ungewisse, sondern in eine klar umrissene Zukunft.
Standortvorteil?
Absolut. Ruhige Lage, charmante Nachbarschaft, Nähe zu Natur, Schulen und Infrastruktur – Wickede-Echthausen verbindet Lebensqualität mit Potenzial.
💡 Denn manchmal reicht nicht ein Haus – es braucht eine Idee. Und Raum, diese Idee zu verwirklichen.
Greifen Sie zu, bevor es ein anderer tut. Schreiben Sie mit an dieser Geschichte aus Raum, Licht und Leben.
Kontaktieren Sie uns noch heute – und lassen Sie aus Grundstück Wirklichkeit werden.
🏗️ Top-Investment in gefragter Lage: Baugrundstück 1.184 m² mit genehmigtem Mehrfamilienhaus
Am Ufer ,
58739 Wickede (Ruhr)
Auf Karte anzeigen
Finanzierungszertifikat
In nur zwei Minuten zu Ihrem persönlichen Finanzierungszertifkat.
Infos
| Vermarktungsart | Kaufen |
|---|---|
| Grundstücksfläche | 1.184 m2 |
| Erschließung | Erschlossen |
| Empfohlene Nutzung | Mehrfamilienhaus |
| Bebaubar nach | Bebauungsplan |
| Verfügbar ab | sofort |
Kosten
| Miete pro Jahr |
399.000 € |
|---|---|
| Provision |
3,57% inkl. 19% MwSt. Für den Käufer 3,57 % inkl. MwSt. Sämtliche Informationen sind Angaben des Eigentümers. Hierfür können wir keine Gewähr übernehmen. |
Finanzierungsrechner:
Kaufpreis:
600.000 €
Eigenkapital:
600.000 €
Monatliche Rate
0 €
Effektiver Jahreszins
0 %
Sollzinsbindung
10 Jahre
Beschreibung des Objekts
Lage
Wo die Ruhr Geschichten flüstert und der Haarstrang Horizonte schenkt!
51.498014, 7.903751
Nicht bloß Koordinaten. Sondern der stille Pulsschlag eines Ortes, an dem die Zeit nicht stehen bleibt, sondern bewusst fließt – wie die Ruhr selbst, die diesen Landstrich mit sanfter Hand gezeichnet hat.
Hier – im Baugebiet „Osterdorf“ in Wickede-Echthausen – formt sich eine Lage, die mehr ist als nur ein Punkt auf der Karte. Zwischen den Straßen „Ruhrstraße“, „Am Ufer“ und „Höhenweg“ erstreckt sich ein Lebensraum, in dem Natur, Ruhe, Nähe und Zukunft nicht im Widerspruch stehen – sondern in Harmonie leben.
Am südlichen Hang des Haarstrangs schmiegt sich Echthausen wie ein gut gehütetes Geheimnis an die Flanke des Sauerlands. Der Blick verliert sich in sanften Höhen, während die Ruhr im Tal eine beruhigende Melodie aus Wasser, Grün und Heimat summt.
Diese Lage hat Seele. Und Struktur.
Denn Wickede (Ruhr) ist keine abgelegene Idylle – es ist eine Gemeinde mit Rückgrat:
+ Ärzte, Zahnärzte, Apotheken – vor Ort
+ Schulen aller wichtigen Stufen – gut erreichbar
+ Mehrere Kindergärten, auch im Ortsteil Echthausen selbst
+ Einkaufsmöglichkeiten, Gastronomie vom Imbiss bis zur gehobenen Küche – alles nah
+ Berufsschulen in Soest, Lippstadt, Menden – gut angebunden
Die Wege sind kurz. Die Natur ist nah. Und das Gefühl? Ein Mix aus Entschleunigung und Möglichkeit.
Egal ob Kapitalanleger, Bauherr oder Visionär – wer hier investiert, entscheidet sich nicht nur für einen Ort, sondern für eine Geschichte, die bereits begonnen hat:
Die Geschichte eines Ortes, der bereit ist für neue Kapitel – geschrieben von Menschen mit Ideen und Herzen für das Wesentliche.
Und irgendwo zwischen Höhenweg und Ufer, zwischen Morgensonne und Abendrot, wartet genau dieses Grundstück auf jemanden, der sieht, was es wirklich ist:
Ein seltener Ort mit leiser Größe. Und ein Versprechen, das sich erfüllen will.
Setzen Sie den nächsten Punkt auf Ihre Karte – und schreiben Sie uns.
Sonstige Angaben
Erleben Sie Exklusivität bei einer persönlichen Besichtigung!
Wir laden Sie herzlich ein, die Faszination dieser Immobilie selbst zu erleben. Vereinbaren Sie mit uns einen individuellen Besichtigungstermin, um sich von den einzigartigen Vorzügen zu überzeugen. Nutzen Sie dazu bitte unser Kontaktformular.
Die Angaben zum Objekt wurden sorgfältig vom Eigentümer bereitgestellt. Trotz höchster Genauigkeit können wir für die Richtigkeit und Vollständigkeit dieser Angaben keine Gewähr übernehmen.
✅ Kompetente Unterstützung für Ihren Immobilienerfolg!
Für einen erfolgreichen Immobilienverkauf, Vermietung, Bewertung, Finanzierung und umfassende Beratung sowie Begleitung beim Kauf oder Verkauf stehen wir Ihnen jederzeit nach Terminvereinbarung zur Verfügung. Profitieren Sie von unserer über 22-jährigen Erfahrung im Immobilienbereich.
Ihr Erfolg ist unser vorrangiges Ziel!
Wir freuen uns auf Ihre Kontaktaufnahme.
❤️ Ihr Expertenteam von Eck-Immomanagement
www.roberteck.de