Zum Verkauf kommt ein Baugrundstück in herrlicher Süd-West-Hanglage in einem vorgelagerten Stadtteil von Schlüchtern.
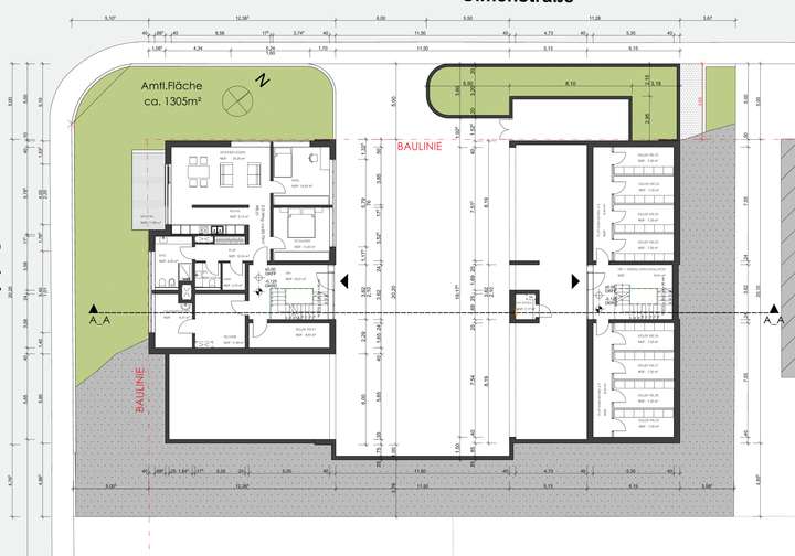
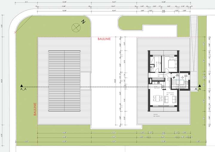
Das ca. 1.305 qm große Grundstück besticht durch seine sonnige Hanglage mit schönem Fernblick ins Kinzigtal.
Dem Eigentümer liegt für das Grundstück bereits eine rechtsgültige Baugenehmigung zum Bau eines 4- und eines 5-Familien-Wohnhauses vor. Die Häuser sind im KfW-55-Standard geplant. Eine ansprechende Förderung dafür ist bereits genehmigt, die bei Kauf an den neuen Eigentümer übertragen werden kann.
Die Genehmigungsplanung kann bei uns im Büro komplett eingesehen werden.
Es wurden insgesamt 9 Wohnungen, jeweils zwischen 88 und 94 qm groß, 3- Zimmer-Küche-Bad, Gäste-WC, Abstellraum und großen Wohn-und Esszimmer mit Terrasse bzw. Balkon geplant und genehmigt.
Eine attraktive Grundrissgestaltung bildet sowohl für einen möglichen Verkauf als auch für eine Vermietung eine solide Grundlage.
Haben wir Ihr Interesse geweckt? Rufen Sie uns an oder senden Sie uns Ihre Kontaktdaten gerne per Mail.
Wir können Ihnen bei ernsthaftem Interesse umfassende Unterlagen zur erteilten Baugenehmigung zur Verfügung stellen.
**Baugrundstück mit Baugenehmigung für 2 KfW-55-Mehrfamilienwohnhäuser mit insgesamt 9 Wohnungen**
36381 Schlüchtern
Die vollständige Adresse der Immobilie erhalten Sie vom Anbieter.
Auf Karte anzeigen
Die vollständige Adresse der Immobilie erhalten Sie vom Anbieter.
Finanzierungszertifikat
In nur zwei Minuten zu Ihrem persönlichen Finanzierungszertifkat.
Infos
| Vermarktungsart | Kaufen |
|---|---|
| Grundstücksfläche | 1.305 m2 |
| Erschließung | Erschlossen |
| Empfohlene Nutzung | Mehrfamilienhaus |
| Grundflächenzahl (GRZ) | 0.4 |
| Bebaubar nach | Bebauungsplan |
| Verfügbar ab | ab sofort |
Kosten
| Miete pro Jahr |
0 € |
|---|---|
| Provision |
5,95 % inkl. MwSt. |
Finanzierungsrechner:
Kaufpreis:
600.000 €
Eigenkapital:
600.000 €
Monatliche Rate
0 €
Effektiver Jahreszins
0 %
Sollzinsbindung
10 Jahre
Beschreibung des Objekts
Lage
Attraktive Wohnlage im Wohngebiet eines vorgelagerten Stadtteils von Schlüchtern.
Die Stadt Schlüchtern liegt im östlichen Main-Kinzig-Kreis, nur ca. 30 km südwestlich von Fulda gelegen. Eingebettet zwischen den Ausläufern von Rhön, Vogelsberg und Spessart liegt Schlüchtern im Bergwinkel. Durchflossen von der Kinzig, zahlreichen Bächen und Quellen erschließt sich die Stadt abwechslungsreich mit Wäldern, Wiesen und Feldern, die zum Wandern, Radfahren oder Joggen einladen. Attraktive Freizeitangebote und das Vereinsweisen von Schlüchtern lassen keine Langeweile aufkommen.
Neben dem hohen Naherholungswert kann Schlüchtern auch mit seiner Infrastruktur und Nahversorgungsangebot punkten.
So ist Schlüchtern mit 2 Ausfahrten (Süd und Nord) an die Autobahn A 66 angeschlossen, als Zubringer in Richtung Nord- und Süd erreichen Sie vom Grundstücknach gut 20 km bereits die A 7. Ebenso erreichen Sie die über die A 66 die Main-Metropole Frankfurt/M. in ca. 45 Minuten Fahrzeit und knapp 70 km Fahrtstrecke. Auch der größte Flughafen von Deutschland, der Frankfurter Flughafen ist bei Bedarf in ca. 50 Minuten Fahrzeit und ca. 85 Fahrstrecke ebenfalls sehr gut erreichbar. Schlüchtern ist außerdem an die Bahnstrecke Fulda-Hanau-Frankfurt angeschlossen. So erreichen Sie beispielsweise vom Bahnhof Schlüchtern den ICE-Bahnhof von Fulda in nur 20 Minuten Fahrzeit sowie den Bahnhof Frankfurt/M.-Süd in knapp 50 Minuten.
Vor Ort bietet Ihnen Schlüchtern eine gut ärztliche Versorgung mit den Main-Kinzig-Kliniken und zahlreichen Fachärzten, die in Schlüchtern ansässig sind. Die Innenstadt von Schlüchtern erfreut sich einer guten Einzelhandels-Struktur, nebst Cafés, Restaurants, Banken, Apotheken, Metzgereien, Bäckereien u.v.m. Grundschule, Kindergarten, Gymnasium sind für Ihre Kinder ebenfalls direkt vor Ort vorhanden und sind vom Wohnhaus bei Bedarf auch zu Fuß erreichbar.
Damit läßt Schlüchtern keine Wünsche in vielen Bereichen offen und bietet mit kurzen Wegen ein umfassendes Angebot an Infrastruktur.
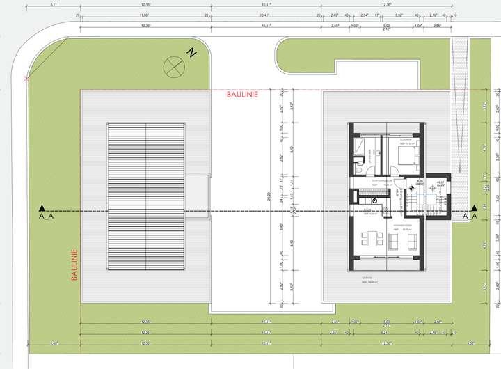
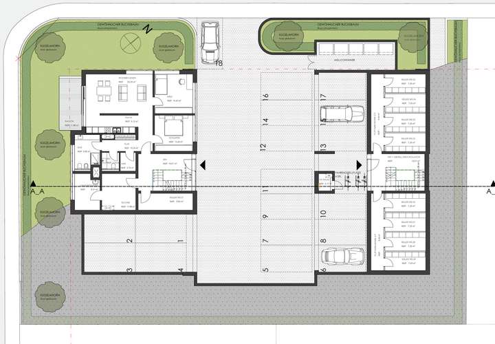
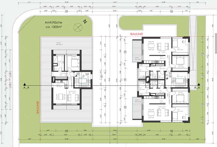
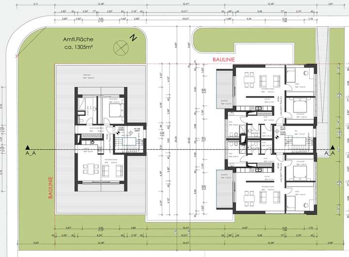
Grundriss
Freiflächen
>
>
Grundrissplan_Kellergeschoss
>
>
Grundrissplan_Erdgeschoss
>
>
Grundrissplan_Obergeschoss
>
>
Grundrissplan_Staffelgeschoss
>
>