Das toll gelegene Grundstück mit einer Fläche von 1083m² kann für ein Mehrfamilien- oder Einfamilienhaus bebaut werden.
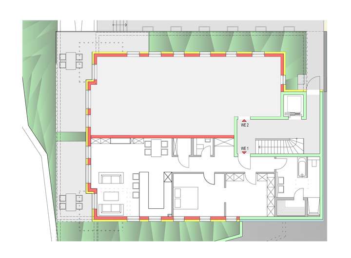
Eine Baugenehmigung für ein zweigeschossiges Mehrfamilienhaus mit 5 Wohnungen und Tiefgarage liegt bereits vor. Die Wohnfläche wird hierfür ca. 517 m² betragen.
Projektiertes Grundstück (Baugenehmigung) mit toller Aussicht in Weinheim-Hohensachsen!
69469 Weinheim
Die vollständige Adresse der Immobilie erhalten Sie vom Anbieter.
Auf Karte anzeigen
Die vollständige Adresse der Immobilie erhalten Sie vom Anbieter.
Finanzierungszertifikat
In nur zwei Minuten zu Ihrem persönlichen Finanzierungszertifkat.
Infos
| Vermarktungsart | Kaufen |
|---|---|
| Grundstücksfläche | 1.083 m2 |
| Erschließung | Erschlossen |
| Empfohlene Nutzung | Mehrfamilienhaus |
| Verfügbar ab | sofort |
Kosten
| Miete pro Jahr |
780.000 € |
|---|---|
| Provision | Nein |
Finanzierungsrechner:
Kaufpreis:
600.000 €
Eigenkapital:
600.000 €
Monatliche Rate
0 €
Effektiver Jahreszins
0 %
Sollzinsbindung
10 Jahre
Beschreibung des Objekts
Lage
Hohensachsen ist ein Stadtteil von Weinheim, der 17 Kilometer von Mannheim und 13 Kilometer von Heidelberg entfernt an der Bergstraße in Baden-Württemberg liegt.
Von Weinheim aus fährt man in den alten Ortskern von Hohensachsen hinein. Nördlich und westlich des alten Ortskerns entstanden im Verlauf der letzten Jahre Neubaugebiete. Hohensachsen besitzt eine Grundschule, zwei Kindergärten sowie ein Sportzentrum und eine Sporthalle mit Hallenschwimmbad.
Die Kreisstadt Weinheim liegt im Nordwesten der Metropolregion Rhein-Neckar zwischen Heidelberg und Mannheim. Die mittelalterliche Stadtanlage ist einzigartig und besonders beliebt ist der historische Marktplatz, umgeben von pittoresken Häusern, der mit seinem südländisch romantischen Flair begeistert
Mehr als 200 Burgen, Schlösser und Sakralbauten, drei Naturparks, vier Weinanbaugebiete, viele Theater- und Musikfestivals, hochkarätige Sport-Events und vieles mehr hat diese Metropol Region mit Weinheim als Mittelpunkt zu bieten. Die Burgen Windeck und Wachenburg auf den Hügeln über der Stadt haben Ihr den Beinamen "Zwei-Burgen-Stadt" gegeben haben.
Wissenschaftliche Innovation, moderne Industrie und Dienstleistungen machen das Rhein-Neckar-Dreieck zu einem zukunftsfähigen Wirtschaftsstandort von europäischer Bedeutung. Die Metropol Hauptzentren Mannheim und Heidelberg Sie liegen nur einige Kilometer von Weinheim entfernt und sind schnell und unkompliziert per Bahn oder Auto über die A5 zu erreichen, ebenso der Flughafen in Frankfurt.
Wer hier wohnt, genießt das ganze Jahr den vielfältigen Reichtum der Metropolregion.
Sonstige Angaben
Attraktives Wohnumfeld:
- 44.000 Einwohner
- Großstädte wie Heidelberg oder Mannheim ca. 10 km entfernt
- Innenstadt und Marktplatz nur wenige Minuten entfernt
- Zahlreiche Grünflächen und Parks
- Angrenzendes Naherholungsgebiet Odenwald
- Attraktive Auswahl an Einkaufscentren und Läden, Restaurant und Bars
- Kurze Wege mit Auto, Fahrrad oder ÖPN