95 Jahre STREIF-Jubiläumshaus FAMILY in der Größe L
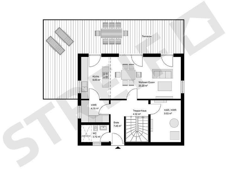
Das behagliche Family-Haus mit Satteldach aus der Jubiläumsaktion punktet mit einem gut durchdachten Grundriss. Der offen gestaltete Wohn-/Ess- und Kochbereich ist lichtdurchflutet. Ein praktischer Hauswirtschaftsraum ist direkt neben der Küche platziert. Komplettiert wird das Raumangebot im Erdgeschoss mit einem Gäste-WC, das optional auch als Duschbad ausgeführt werden kann, einer Diele und einem Haustechnikraum.
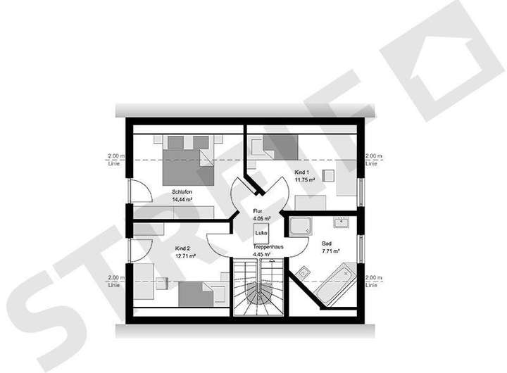
Im Dachgeschoss des Hauses sind zwei schöne Kinderzimmer, ein Elternschlafzimmer, ein Flur und ein Familienbad untergebracht. Die Netto-Raumfläche beträgt 117,65 m².
Objektart: Einfamilienhaus, 1,5-geschossig
Dachform: Satteldach DN Änderung möglich
Kniestock: 1 m Änderung möglich
Hausmaße: 9,33 x 8,08 m Änderung möglich
Netto-Raumfläche: 117,65 m²
95-Jahre STREIF-Jubiläumshaus Family in Größe L
Einfamilienhaus /KFW 40+/ Sch.F. inkl. Grundstück und PV exkl. Baunebenkosten und Keller
91452 Wilhermsdorf
Die vollständige Adresse der Immobilie erhalten Sie vom Anbieter.
Auf Karte anzeigen
Die vollständige Adresse der Immobilie erhalten Sie vom Anbieter.
Finanzierungszertifikat
In nur zwei Minuten zu Ihrem persönlichen Finanzierungszertifkat.
Infos
| Haustyp | Einfamilienhaus |
|---|---|
| Etagenzahl | 2 |
| Wohnfläche ca. | 117 m2 |
| Nutzfläche | 117 m2 |
| Grundstücksfläche | 969 m2 |
| Zimmer | 5 |
| Schlafzimmer | 3 |
| Badezimmer | 1 |
Kosten
| Kaufpreis |
610.000 € |
|---|---|
| Provision | Nein |
Finanzierungsrechner:
Kaufpreis:
600.000 €
Eigenkapital:
600.000 €
Monatliche Rate
0 €
Effektiver Jahreszins
0 %
Sollzinsbindung
10 Jahre
Bausubstanz & Energieausweis
| Baujahr | unbekannt |
|---|---|
| Bauphase | Haus in Planung (projektiert) |
| Qualität der Austattung | Gehoben |
| Heizungsart | Wärmepumpe |
Beschreibung des Objekts
Ausstattung
STREIF-Energiespar-Häuser sind für die Effizienzhaus-Klasse 40 ausgestattet. Gegen Aufpreis kann eine Ökobilanz erstellt werden, die bescheinigt, dass Ihr STREIF-Haus den neuen KfW-Förderrichtlinien in der Stufe KFWG für den Klimafreundlichen Neubau (KFN) entspricht. Für das Erfüllen der Voraussetzungen zur KfW-Förderung ist eine Photovoltaikanlage mit Batteriespeicher erforderlich / im Angebot enthalten.
Folgende STREIF-Leistungen sind im Jubiläums-Feierpreis enthalten -
bei Ausbaustufe SCH. F.:
20-monatige Fair- und Festpreisgarantie
Inklusive gedämmter Fundamentplatte
Inklusive STREIF-Luft-Luft-Wärmepumpen-Technologie, mit integrierter Lüftungsanlage mit Wärmerückgewinnung
Inklusive hochwertiger Holzhaustür von KERA
Inklusive Fenster von Porta/Kömmerling, Fenster innen Weiß außen farbig
Inklusive elektrischer Rollläden
Inklusive Massivholz-Geschosstreppe aus eigener Produktion (außer Bungalow)
Inklusive Sanitärobjekten von Markenherstellern in Bad/WC
Inklusive Elektroinstallation u.v.m.
Inklusive Spachtel- und Malerarbeiten
Inklusive Bodenbelege
Inklusive Photovoltaik-Anlage mit Batterie
Inklusive individueller Grundrissgestaltung und Raumaufteilung | Die Position der Bäder, die Größe der Haustechnikräume und der Treppen sind bei den Jubiläumshäusern nicht veränderbar.
Der Angebotspreis ist inkl. Grundstück und bezieht sich auf die Standausbaustufe Sch. F.
Der Verkauf des Grundstücks erfolgt über einen unserer Netzwerk-Partner.
Baunebenkosten fallen zuzüglich an.
Lage
Wilhermsdorf liegt zwischen der Stadt Fürth und Bad Windsheim am Rande des Naturparks Frankenhöhe
ca.20 Km nach Fürth
ca.30 km nach Nürnberg
Sonstige Angaben
Energiespar-Hauses werden durch zahlreiche Auszeichnungen, Qualitäts- und Gütesiegel unabhängiger Institute und Verbände dokumentiert.
Bilder können evtl. Anbauteile, Carports, Balkone, Gauben usw. zeigen, die nicht im Angebotspreis enthalten sind.
Änderungen und Irrtümer vorbehalten.
Fragen Sie Ihre persönliche STREIF-Bauberatung.
E-Mail: andreas.heer@streif.de
Grundriss
Family-L-DG-Portal-mit-Wasserz
>
>
Family-L-EG-Portal-mit-Wasserz
>
>
Adresse
91452 Wilhermsdorf
Interessante Orte
Preis- und Lageinformationen
Preistrend für Bestandsimmobilien in Wilhermsdorf