BBoardinghouse, Apartmenthaus, Zimmervermietung oder Unterkunft für die eigenen Angestellten?
Hier ist so einiges möglich!
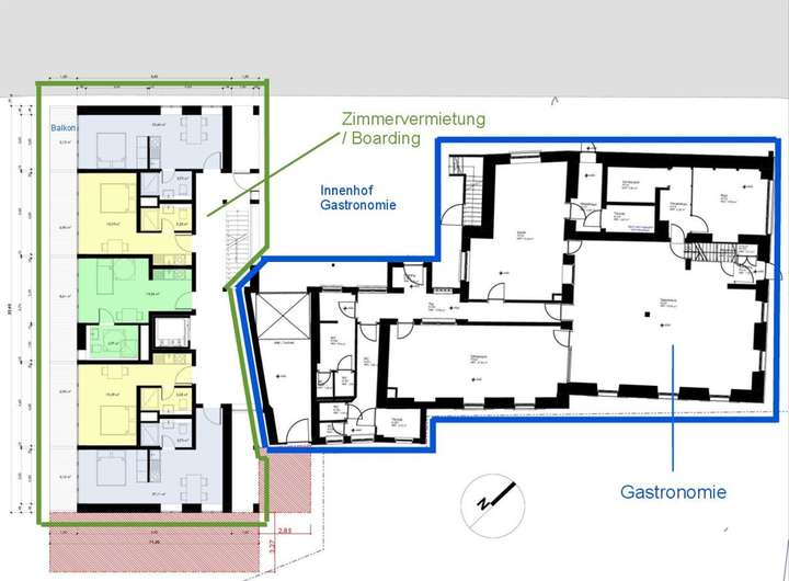
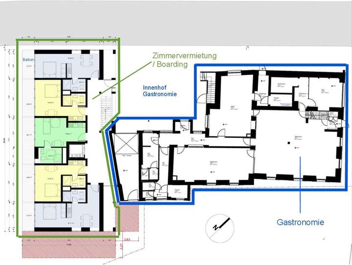
Wir bieten Ihnen hier auf ca. 1000m² Grundstück ein ausgereiftes Konzept! Das Bestandsgebäude besteht im EG aus einem Restaurant, im DG besteht eine moderne neuwertige 3,5-Zimmerwohnung. Das dazwischenliegende 1. OG wurde mit 7 Apartments neu geplant. Ein neuer Anbau soll weitere 15 Apartments enthalten, die Bauvoranfrage ist gestellt.
Das Planungskonzept entspricht den heutigen Ansprüchen und damit den Marktbedürfnissen. Die Zahl derer, die einen zweiten Wohnsitz, in Nähe der Universitäten, als Grenzgänger, als Student oder auch als Fachkraft suchen, steigen unaufhaltsam.
Sie sind ein Unternehmen aus der Region und suchen eine hochwertige Unterbringung Ihrer qualifizierten Arbeitskräfte? Auch dies kann unser Planungskonzept erfüllen.
Wenn wir Ihr Interesse wecken konnten, kontaktieren Sie uns gerne!
**Apartmenthouse zwischen Emmendingen und Freiburg**
79312 Emmendingen
Die vollständige Adresse der Immobilie erhalten Sie vom Anbieter.
Auf Karte anzeigen
Die vollständige Adresse der Immobilie erhalten Sie vom Anbieter.
Finanzierungszertifikat
In nur zwei Minuten zu Ihrem persönlichen Finanzierungszertifkat.
Infos
| Etagenzahl | 2 |
|---|---|
| Wohnfläche ca. | 1.025 m2 |
| Grundstücksfläche | 986 m2 |
| Zimmer | 28 |
| Schlafzimmer | 24 |
| Badezimmer | 23 |
| Anzahl Garage/Stellplatz | 16 |
Kosten
| Kaufpreis |
1.300.000 € |
|---|---|
| Provision |
Provisionsfrei |
Finanzierungsrechner:
Kaufpreis:
600.000 €
Eigenkapital:
600.000 €
Monatliche Rate
0 €
Effektiver Jahreszins
0 %
Sollzinsbindung
10 Jahre
Bausubstanz & Energieausweis
| Baujahr | 1800 |
|---|---|
| Objektzustand | Gepflegt |
| Wesentliche Energieträger | Öl |
| Energieausweis | liegt vor |
| Energieausweistyp | Bedarfsausweis |
| Energieverbrauchskennwert | 198,0 kWh/(m²*a) |
| Energieeffizienzklasse | F |
198,0
kWh/(m²*a)
Energieeffizienzklasse F
- A+
- A
- B
- C
- D
- E
- F
- G
- H
- 0
- 25
- 50
- 75
- 100
- 125
- 150
- 175
- 200
- 225
- >250
Beschreibung des Objekts
Lage
Das Apartmenthaus liegt zwischen Emmendingen und Freiburg in unmittelbarer Nähe zur Bundesstraße 3, so dass die gesamte Region in wenigen Minuten gut erreichbar ist.
Sonstige Angaben
Sie haben eine Immobilie zu verkaufen oder suchen eine Immobilie? Gerne beraten wir Sie über die Möglichkeiten der Vermittlung über Wüstenrot Immobilien. Vertrauen Sie den Immobilienprofis von Wüstenrot Immobilien. Jetzt attraktive Finanzierungskonditionen sichern! Die Spezialisten der Finanzberatung erstellen Ihnen gern ein maßgeschneidertes Angebot. Sprechen Sie uns an. Wir suchen Vertriebsprofis – Haben Sie ein Faible für den Vertrieb? Wüstenrot Immobilien GmbH ist der ideale Partner um in dem Zukunftsmarkt „Immobilienvermittlung“ durchzustarten. Kontaktieren Sie mich für ein unverbindliches persönliches Gespräch.
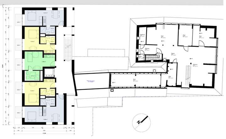
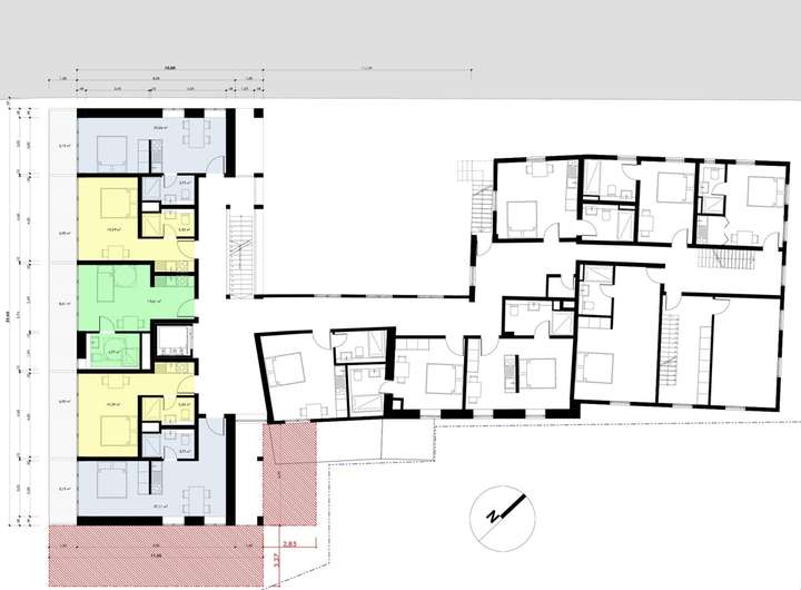
Grundriss
Grundriss EG
>
>
Grundriss OG
>
>
Grundriss DG
>
>
Adresse
79312 Emmendingen
Interessante Orte
Preis- und Lageinformationen
Preistrend für Bestandsimmobilien in Emmendingen