Das hier projektierte Schwabenhaus ist staatlich als Nachhaltiges Gebäude zertifiziert und damit exklusiv von der KfW gefördert. Abhängig von der Ausbaustufe erhalten Sie damit einen hohen Zinsvorteil. Die Bauweise der Gebäudehülle erfüllt den Standard KfW 40 und sichert Ihnen im Zusammenspiel mit der verbauten Wärmepumpe lediglich marginale Energiekosten.
Exklusives Architektenhaus, innovative Technik und niedriger Energiebedarf
26605 Aurich
Die vollständige Adresse der Immobilie erhalten Sie vom Anbieter.
Auf Karte anzeigen
Die vollständige Adresse der Immobilie erhalten Sie vom Anbieter.
Finanzierungszertifikat
In nur zwei Minuten zu Ihrem persönlichen Finanzierungszertifkat.
Infos
| Haustyp | Einfamilienhaus |
|---|---|
| Wohnfläche ca. | 165 m2 |
| Nutzfläche | 0 m2 |
| Grundstücksfläche | 548 m2 |
| Zimmer | 5 |
| Schlafzimmer | 4 |
| Badezimmer | 1 |
| Anzahl Garage/Stellplatz | 1 |
Kosten
| Kaufpreis |
532.304 € |
|---|---|
| Provision | Nein |
Finanzierungsrechner:
Kaufpreis:
600.000 €
Eigenkapital:
600.000 €
Monatliche Rate
0 €
Effektiver Jahreszins
0 %
Sollzinsbindung
10 Jahre
Bausubstanz & Energieausweis
| Baujahr | 2023 |
|---|---|
| Bauphase | Haus in Planung (projektiert) |
| Qualität der Austattung | Gehoben |
| Heizungsart | Wärmepumpe |
Beschreibung des Objekts
Ausstattung
Jedes unserer Fertighäuser wird speziell für Sie geplant und ist perfekt auf die Anforderungen und Vorgaben Ihres Bauvorhabens angepasst – Bebauungspläne, eine besondere Grundstückslage und die gewünschten Eigenleistungen werden im Detail geprüft und berücksichtigt.
Jedes Schwabenhaus verfügt standardmäßig über:
- Moderne Wärmepumpentechnik
- Zentrale kontrollierte Wohnraum Be- und Entlüftung mit Wärmerückgewinnung
- hochwertige Ausstattung mit Markenfabrikaten
- 3-Scheiben-Wärmeschutzglas
- elektrische Rollladensteuerung*
- Smart-Home-Technologie: Intelligentes Gebäude-Management für die Licht- und Rollladen-Steuerung*
- Schwimmender Estrich mit Wärmedämmung
- Sanitär-Objekte von Markenherstellern wie z. B. Villeroy & Boch usw. sowie Echtglas-Duschabtrennung
- Spachtelarbeiten Q3*
- Malerarbeiten mit Glasfaser-Tapeten oder Vliesbeschichtung*
- Bodenbeläge mit Laminat oder Teppich
- Innentüren
- 10 Jahre Gewährleistung nach BGB (üblich: 5 Jahre) und 30 Jahre Garantie auf die Grundkonstruktion
*In Verbindung mit dem Technologie + Komfort-Paket „Blue Edition“
Diesem Angebot liegt die beliebte Schwabenhaus-Ausbaustufe "Schlüsselfertig" zugrunde. Diese kann selbstverständlich noch entsprechend Ihrer geplanten Eigenleistungen angepasst werden.
Lage
Das Haus ist projektiert inkl. Grundstück. Das Grundstück wird in Kommission angeboten bzw. direkt von Dritten verkauft. Daher kann der o.g. Preis aufgrund aktueller Marktsituationen schwanken.
Die Bauabwicklung kann kurzfristig nach Grundstückserwerb begonnen werden. Bilder zeigen möglicherweise Sonderausstattungen, die auf Wunsch gegen Preiskorrektur zusätzlich angeboten werden können.
Fragen Sie nach unserem kostenlosen Beratungs-Service und erhalten Sie in einem persönlichen Gespräch kostenlos alle wichtigen Informationen zu diesem Projekt, insbesondere: Lage und Bebauungsmöglichkeiten des Baugrundstücks, Baukosten-Kalkulation, Finanzierungs- u. Förderungs-Möglichkeiten, detaillierte Architektur- u. Grundrissplanung, etc.
Wir freuen uns, Sie ausführlich beraten zu dürfen!
Sonstige Angaben
Voll- oder Teilfinanzierung über einen unserer starken Finanzierungspartner, teilweise ohne Eigenkapital möglich, bestehende Altschulden kein Hindernis, Bonität vorausgesetzt. Die Kosten und staatl. Förderungsmöglichkeiten zeigen wir Ihnen gerne in einem persönlichen Gespräch auf. Fragen Sie nach unserem Mietkaufmodell.
Bitte beachten Sie, dass die dargestellten Bilder und Grundrisse nur Beispiele sind. Zudem können sie Sonderbauteile sowie Sonderausstattungen enthalten, die nicht im Preis enthalten sind. Preise beinhalten keines Erwerbs- oder Baunebenkosten. Alle Angaben verstehen sich ohne Gewähr sowie unter Vorbehalt des Zwischenverkaufs. Preisbasis 2023.
Anbauteile, Carport, Garage und Keller können Extras sein, die als Sonderausstattung angeboten werden. Abbildungen, Grundrisse und Flächenangaben sind beispielhaft und können Extras zeigen. Flächenangaben nach DIN 277.
Profitieren Sie jetzt von der Schwabenhaus Online Beratung und verwirklichen Sie Ihr Traumhaus https://www.schwabenhaus.de/anmeldung-hausbau-beratung-online/
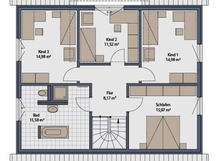
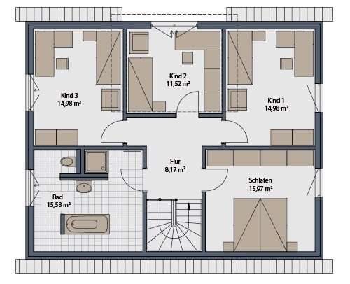
Grundriss
Grundriss Erdgeschoss
>
>
Grundriss Obergeschoss
>
>
Adresse
26605 Aurich
Interessante Orte
Preis- und Lageinformationen
Preistrend für Bestandsimmobilien in Aurich