ACHTUNG: unsere Emails an Sie landen aufgrund der hohen Anzahl von Mails öfter in Ihrem SPAM oder JUNK, bitte sehen Sie dort nach falls Sie auf Antwort warten.
Hausmaße Haus 1 (links):
6,5m Breit x 9,55 m Lang, 2,5 geschossig, 45 Dachneigung °
Sehr schönes, ebenes Grundstück mit Garten in Süd-Ausrichtung
Die zwei Stellplätze sind bereits errichtet.
Der genannte Preis versteht sich zzgl. Hausanschlusskosten von ca. 8.000€
Nicht enthalten sind: Maler & Tapezierarbeiten, Bodenbeläge (Bäder sind gefließt) , Vordach, Außenanlagen (u.a. Terrasse, Stellplätze etc.)
Bad im Dachgeschoss gegen Aufpreis möglich
Achtung: Titelbild Haus ist nicht exakt passend. Pläne sind maßgebend, insbesondere was die Gestaltung der Außenanlagen u. Fassade betrifft.
Wir übernehmen für Sie die:
- Finanzierungsprüfung
- Planungsphase
- Rohbau
- Innenausbau
und verwirklichen für Sie als kompetenter & starker Partner in Zusammenarbeit mit lokalen Handwerksfirmen den Traum vom Eigenheim.
REH inkl. 2 Stellplätzen - Südausrichtung
63801 Kleinostheim
Die vollständige Adresse der Immobilie erhalten Sie vom Anbieter.
Auf Karte anzeigen
Die vollständige Adresse der Immobilie erhalten Sie vom Anbieter.
Finanzierungszertifikat
In nur zwei Minuten zu Ihrem persönlichen Finanzierungszertifkat.
Infos
| Haustyp | Reiheneckhaus |
|---|---|
| Wohnfläche ca. | 129 m2 |
| Grundstücksfläche | 252 m2 |
| Zimmer | 5 |
| Schlafzimmer | 4 |
| Badezimmer | 1 |
Kosten
| Kaufpreis |
599.500 € |
|---|---|
| Provision | Nein |
Finanzierungsrechner:
Kaufpreis:
600.000 €
Eigenkapital:
600.000 €
Monatliche Rate
0 €
Effektiver Jahreszins
0 %
Sollzinsbindung
10 Jahre
Bausubstanz & Energieausweis
| Baujahr | 2024 |
|---|---|
| Heizungsart | Fußbodenheizung |
Beschreibung des Objekts
Ausstattung
In diesem Angebot sind das Baugrundstück und das Haus gemäß Baubeschreibung enthalten. Hierzu gehören insbesondere:
-individuelle Planung und Statik
-Baugrunduntersuchung
-Dachstuhl aus Konstruktionsvollholz
-Markendachsteine von Braas
-Maximale Energie Ersparnis durch Luft-Wasser- Wärmepumpe von Rotex
-Qualitätsfenster von Weku mit 3 Fach Verglasung
-Grohe Armaturen
-robuste Innentüren mit Laminatbeschichtung
-Schöne Holztreppe von Treppenmeister
-massive Granitfensterbänke innen und Außen
-Keine Kältebrücken durch das Wärmedämmverbundsystem
-Stilvolle Aluminium Haustüre mit Sicherheitsbeschlag von Weku
-Ihre Wunschfliese im Bad und Gäste WC
-Fliesenspiegel in der Küche
-Feuermelder
-Der Klassiker: Schalterprogramm von Gira
Und vieles mehr…..
Lage
Kleinostheim, im Landkreis Aschaffenburg, ist eine attraktive, moderne und aufstrebende Gemeinde mit rund 8.600 Einwohnern.
Die Stadt liegt am Untermain ca. 5 Autominuten von der Stadt Aschaffenburg entfernt, das auch das Bayrische Nizza genannt wird. Idylische Spaziergänge, sowie großzügige Einkaufsmöglichkeiten, Ärzte, Schwimm- und Sporthallen sind direkt im Ort vorhanden.
Verkehrsgünstig zwischen A3, der A45, der B8 und der Bahnlinie Frankfurt-Aschaffenburg-Würzburg gelegen, hat sich die Gemeinde nicht nur zu einer attraktiven Wohngemeinde am bayerischen Untermain entwickelt, sondern stellt auch einen bedeutenden Wirtschaftsstandort mit zahlreichen Arbeitsplätzen dar. Die Entfernung zum Flughafen Frankfurt beträgt ca. 20 Minuten.
Die gut ausgebaute Infrastruktur, ein aktives Vereinsleben sowie vielfältige Möglichkeiten der Freizeitgestaltung, tragen ein beachtliches Maß zur Lebensqualität in Kleinostheim bei. Neben der Maingauhalle, als Ort für überregionale Kultur- und Sportveranstaltungen, lädt das Freizeitbad VITAMAR mit seinem 50-Meter-Becken zu Erholung, Sport und Spaß ein.
Eine optimale und zukunftsorientierte Betreuung unserer älteren Mitbürgerinnen und Mitbürger erfolgt im Haus St. Vinzenz von Paul – soziale Dienste Kleinostheim.
In der im Jahr 2009 fertig gestellten neuen Ketteler-Schule befinden sich Schülerbetreuungsangebote, Ganztagsklassen und der übliche Grundschulbetrieb in modernen Klassenzimmern und freizeitpädagogisch eingerichteten Räumen. Die neuen Außenanlagen mit Freisportflächen ergänzen das Angebot.
Weitere Einrichtungen wie die Kinderkrippe, die Musikschule sowie die katholische öffentliche Bücherei runden das Spektrum der vielfältigen Möglichkeiten in Kleinostheim ab.
Sonstige Angaben
- Alle technischen Beschreibungen und Qualitäten finden Sie in unserer Baubeschreibung.
- Viele weitere Extras auf Wunsch möglich.
Für die Richtigkeit und Vollständigkeit der objektbezogenen Angaben kann keine Haftung übernommen werden.
HINWEIS: Pläne und Fotos können Aufpreis pflichtige Sonderausstattungen (wie z.B. anthrazitfarbene Fenster) enthalten, oder maßlich abweichen. Für die Richtigkeit und Vollständigkeit des Exposès wird keine Haftung übernommen. Ausschlaggebend sind die Angaben im Vertrag!
Wir bitten um Verständnis, dass wir Anfragen nur bearbeiten können, wenn wir folgende Angaben von Ihnen haben:
Name, Vorname, Anschrift, Telefon-Nr bzw. Mobilfunk-Nr., sowie E-Mailadresse
Das Geldwäschegesetz (GwG) verpflichtet Makler und Bauunternehmen zur Dokumentationspflicht über ihre Kundenkontakte vor Begründung einer Geschäftsbeziehung.
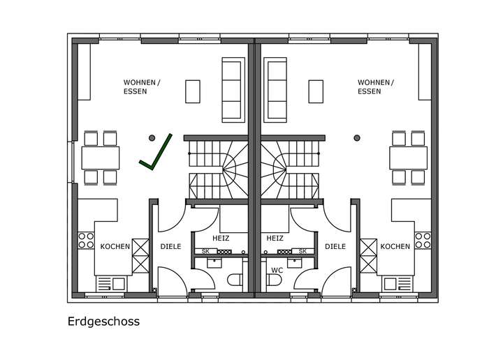
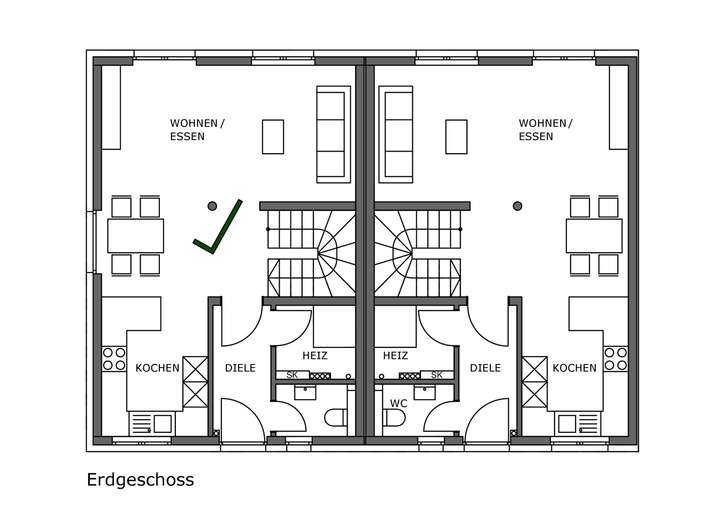
Grundriss
EG+Freifläche REH
>
>
EG REH
>
>
OG REH
>
>
DG REH
>
>
Schnitt
>
>
Ansicht NW
>
>
Ansicht SO
>
>
Ansicht NO
>
>
Adresse
63801 Kleinostheim
Interessante Orte
Preis- und Lageinformationen
Preistrend für Bestandsimmobilien in Kleinostheim