Idyllisches Baugrundstück in bevorzugter Lage.
Es handelt sich um das Neubaugebiet an der Unterzeller Straße in Wulfertshausen. Die ersten Bauherren haben bereits begonnen zu bauen. Es wird fleißig miteinander Kommuniziert.
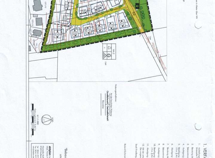
Für das angebotenen Grundstück besteht ein rechtskräftiger Bebauungsplan, welcher sich derzeit in der Umsetzung befindet und dabei sowohl eine Einzelhaus-, als auch Doppelhausbebauung ermöglicht. Beide Möglichkeiten sind für dieses Grundstück im Bebauungsplan vorgesehen.
Zum Kaufpreis kommen noch Erschließungskosten mit dazu, welche über einen städtebaulichen Vertrag zwischen dem Eigentümer und der Stadt Friedberg bisher noch anfallen. Hausanschlusskosten trägt der Käufer.
Neubaugebiet in Wulfertshausen. Die ersten Nachbarn beginnen zu bauen! Die Erschließung schreitet
86316 Friedberg
Die vollständige Adresse der Immobilie erhalten Sie vom Anbieter.
Auf Karte anzeigen
Die vollständige Adresse der Immobilie erhalten Sie vom Anbieter.
Finanzierungszertifikat
In nur zwei Minuten zu Ihrem persönlichen Finanzierungszertifkat.
Infos
| Vermarktungsart | Kaufen |
|---|---|
| Grundstücksfläche | 633 m2 |
| Erschließung | Erschlossen |
| Grundflächenzahl (GRZ) | 0.3 |
| Geschossflächenzahl (GFZ) | 0.6 |
| Bebaubar nach | Bebauungsplan |
| Verfügbar ab | sofort |
Kosten
| Miete pro Jahr |
424.500 € |
|---|---|
| Provision |
2,38 % inklusiv MwSt. 19 % |
Finanzierungsrechner:
Kaufpreis:
600.000 €
Eigenkapital:
600.000 €
Monatliche Rate
0 €
Effektiver Jahreszins
0 %
Sollzinsbindung
10 Jahre
Beschreibung des Objekts
Lage
In einem bevorzugten Stadtteil der alten Herzogstadt Friedberg in Bayern liegt dieses herrliche Baugrundstück. Hier haben Sie die Natur und Ruhe direkt vor der Haustüre, müssen dabei aber auf die Annehmlichkeiten einer sehr guten Infrastruktur mit allen Versorgungseinrichtungen, wie verschiedene Ärzte, unterschiedlicher Fakultäten, Kreiskrankenhaus, sowie Kindergärten, Schulen (Grund-, Mittel-, Realschule und Gymnasium), im nahen Umkreis und einer sehr guten Verkehrsanbindung, nicht verzichten.
Eine Vielzahl von verschiedensten Vereinen heißt Sie in Friedberg und den Ortsteilen herzlich willkommen und ermöglicht Ihnen eine schnelle Integration in eine harmonische Gemeinschaft.
Die Herzogstadt Friedberg mit seiner historischen Altstadt lädt Sie mit seinen vielen Cafe's und Gaststätten zum Verweilen ein. Eine große Anzahl an Einzelhandelsgeschäften verschiedenster Branchen sorgt für die notwendige Versorgung mit Allem was zum täglichen Leben dazu gehört.
Ihre Erholung genießen Sie bei ausgedehnten Spaziergängen in den Wäldern direkt am Baugebiet oder am nahegelegenen Friedberger Baggersee mit Wasserskianlage, welchen Sie bequem mit dem Fahrrad erreichen können!
Sonstige Angaben
Die Erschließungsmaßnahmen sind weitgehende abgeschlossen.
Die ersten Bauherren haben bereits begonnen zu bauen.
Die Maklercourtage für den Käufer beträgt 2 % aus dem Kaufpreis zuzüglich MwSt. (19 %), somit gesamt 2,38 %. Der Immobilienmakler hat einen provisionspflichtigen Maklervertrag mit dem Verkäufer abgeschlossen. (Maklervertrag gem. § 656c BGB).
Rufen Sie uns gerne an, wir beraten und begleiten Sie gerne!