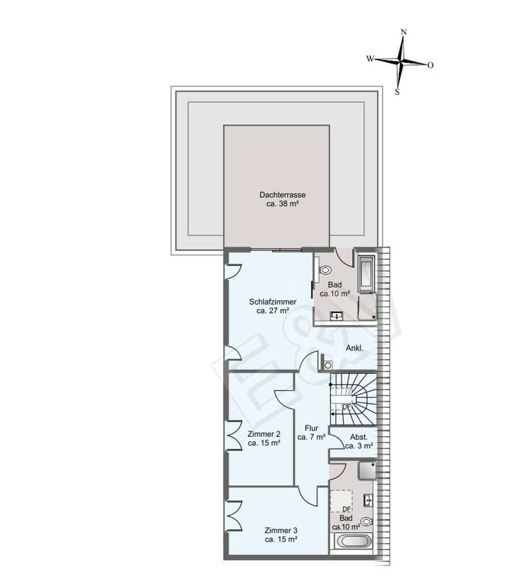
Bei dieser massiv erbauten Doppelhaushälfte wurde viel Wert auf die Energiebilanz des Objekts gelegt, was auch bei höchsten Sommertemperaturen für angenehmes Raumklima sorgt. Die 3-fach verglasten Fenster wurden mit Elektrorollos und Fliegengitter versehen. Alle Zimmer verfügen über eine Fußbodenheizung, und bestechen mit hochwertigen Parkett und Marmorböden. Die energiesparende Heizungsanlage sorgt für geringe Heizkosten. Der Kellerbereich wurde gefliest und mit einer wasserdichten weißen Wanne versehen. Über den mit hochwertigen Marmor Fliesen ausgelegten Flur gelangen sie in den Wohn - und Essbereich, welcher sie mit seiner großzügigen Raumaufteilung empfängt. Vom dort schweift der Blick auf die großzügige sehr hochwertig ausgestattete Markenküche. Ihren Tee genießen Sie mit kochend heißem Wasser aus dem energiesparenden Quooker-Wasserhahn. Ein leiser Bora Abzug sorgt stets für frische Luft beim Kochen. Diese und viele weitere Details gehören einfach zur Handschrift dieses außergewöhnlichen Hauses. Eine luftige halbgewendelte Treppe führt in das Obergeschoß mit 2 Kinderzimmern und eigenem Kinderbadezimmer. Auch das große Schlafzimmer mit begehbaren Kleiderschrank und Zugang auf die ausbaufähige Dachterrasse verfügt über ein großes Badezimmer mit ebenerdiger Dusche sowie Whirlpool Wanne. 3 große doppelseitige Schiebetüren im Wohnzimmer zeigen die architektonische Finesse dieser Flachdachvilla, und führen direkt auf die Terrasse mit angrenzendem eigenem beheizten Pool. Im uneinsehbaren Garten befindet sich ein massives Kinderhaus, welches sich auch als Saunahaus umnützen läßt. Lassen Sie sich begeistern von diesem vielseitigen Familienhaus!
Energiesparhaus für die moderne Familie!
76726 Germersheim
Die vollständige Adresse der Immobilie erhalten Sie vom Anbieter.
Auf Karte anzeigen
Die vollständige Adresse der Immobilie erhalten Sie vom Anbieter.
Finanzierungszertifikat
In nur zwei Minuten zu Ihrem persönlichen Finanzierungszertifkat.
Infos
| Haustyp | Einfamilienhaus |
|---|---|
| Etagenzahl | 2 |
| Wohnfläche ca. | 251 m2 |
| Nutzfläche | 32 m2 |
| Grundstücksfläche | 406 m2 |
| Bezugsfrei ab | 01.02.2026 |
| Zimmer | 5,5 |
| Schlafzimmer | 4 |
| Badezimmer | 3 |
| Anzahl Garage/Stellplatz | 4 |
Kosten
| Kaufpreis |
849.000 € |
|---|---|
| Provision |
3.57 % inkl. gesetzl. MwSt. |
Finanzierungsrechner:
Kaufpreis:
600.000 €
Eigenkapital:
600.000 €
Monatliche Rate
0 €
Effektiver Jahreszins
0 %
Sollzinsbindung
10 Jahre
Bausubstanz & Energieausweis
| Baujahr | 2020 |
|---|---|
| Letzte Sanierung | 2025 |
| Objektzustand | Neuwertig |
| Heizungsart | Wärmepumpe |
| Energieausweis | liegt vor |
| Energieausweistyp | Bedarfsausweis |
| Energieverbrauchskennwert | 46,7 kWh/(m²*a) |
Beschreibung des Objekts
Ausstattung
Abstellkammer
Getrennte Sanitäranlagen
Einbauschränke
Begehbarer Kleiderschrank
Einbauküche
Fliesen
Parkett
Mamor
Schwimmbad, beheizt, außen
Fußbodenheizung
Teilunterkellert
Lage
Der ruhige Stadtteil Sondernheim liegt ein paar Kilometer südlich der „Festungsstadt“ Germersheim in der Rheinebene zur linken Rheinseite. Das kreative und vielseitige Erlebnisangebot in Germersheim bietet für jeden Geschmack etwas wie zum Beispiel der jährlich stattfindende Germersheimer Kultursommer mit seinem mediterranen Flair. Mit ca. 5.000 Einwohnern ist Sondernheim recht beschaulich und mittlerweile ein beliebtes Wohngebiet innerhalb Germersheims. Die Ortsmitte bietet Geschäfte des täglichen Bedarfs, sowie Ärzte und natürlich auch Kulinarisches wie zum Beispiel der Restaurant-Insidertipp "Zum Schwanen“ mit gemütlichem Biergarten. Auch einen S-Bahn-Halt gibt es in Sondernheim. Binnen weniger Minuten ist man mit dem Auto über die B35/A5 in Richtung Karlsruhe/Wörth/Bruchsal, über die B9 nördlich Richtung Ludwigshafen/Mannheim, in ca. 15min. in Speyer und in ca. 1,5 Std im Elsass. Das Doppelhaus liegt im Norden von Sondernheim umringt von Waldgebiet, nur rd. 10 Min. zu Fuß vom Naherholungsgebiet "Gimpelrhein" entfernt mit seinem reichhaltigen Freizeitparadies wie zum Beispiel Abenteuerspielplatz, Wasserspielbereich, seinen drei Baggerseen und dem Rheinufer mit der herrlichen Rheinpromenade. Das Straßenbild säumen Einfamilienhäuser. Kindergärten, Grund- und weitergehende Schulen sind bequem in maximal 5 Minuten zu Fuß zu erreichen.
Sonstige Angaben
Der Makler-Vertrag mit uns und/oder unserem Beauftragten kommt durch die Bestätigung der Inanspruchnahme unserer Maklertätigkeit in Textform zustande, wie z.B. insbesondere die Unterschrift des Suchkundenvertrages und/oder des Objekt-Exposés. Die Höhe der Courtage richtet sich nach den ab dem 23.12.2020 in Kraft getretenen gesetzlichen Regelungen zur Teilung der Maklercourtage. Hiernach wird die Courtage regelmäßig für beide Parteien (Eigentümer und Käufer) in Höhe von 3% zuzüglich Umsatzsteuer in jeweils geltender Höhe, derzeit also insgesamt 3,57% des Kaufpreises einschließlich Umsatzsteuer bei notariellem Vertragsabschluss verdient und fällig. Die Höhe der Bruttocourtage unterliegt einer Anpassung bei Steuersatzänderung. Grunderwerbssteuer, Notar- und Gerichtskosten trägt der Käufer.
Grundriss
e27b1b12-e209-40e8-a33a-a35b3f
>
>
0ba6be25-69cb-42d9-8ccb-50664c
>
>
Adresse
76726 Germersheim
Interessante Orte
Preis- und Lageinformationen
Preistrend für Bestandsimmobilien in Germersheim