Auf dem vorhandenen Baugrundstück ist eine individuelle Gestaltung eines Einfamilienhauses laut Bebauungsplan ebenfalls möglich.
Unser Vorschlag...
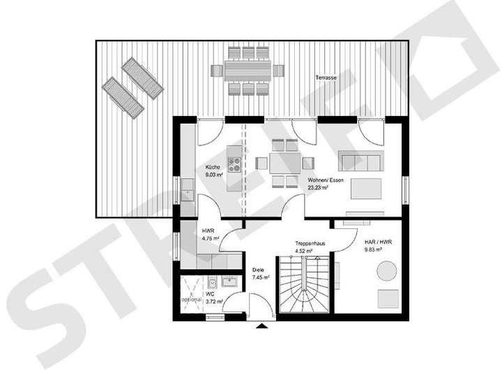
Willkommen in Ihrer neuen Stadtvilla in Hitzhofen - ein Ort, an dem Ihre Wohnträume Wirklichkeit werden! Diese beeindruckende Stadtvilla mit einer großzügigen Wohnfläche von 173 m² und einem Grundstück von 362 m² bietet Ihnen die perfekte Kombination aus modernem Design und individueller Gestaltung. Mit fünf Schlafzimmern, zwei Badezimmern und einem zusätzlichen Gäste-WC ist dieses Haus ideal für Familien, die Wert auf Raum und Komfort legen. Das Projekt wird passgenau nach Ihren Wünschen realisiert und bietet Ihnen die Möglichkeit, Einfluss auf die Gestaltung sowohl innen als auch außen zu nehmen. Sie entscheiden sich für einen Satteldach- oder Warmdachstil, moderne Farben oder klassische Akzente. Dank der STREIF-Bauberatung vor Ort können Sie Ihre Ideen und Wünsche einbringen, die dann in die Grundriss- und Raumgestaltung einfließen. Egal ob Sie eine Dachterrasse wünschen oder die Anzahl der Räume anpassen möchten, bei uns stehen Ihre Bedürfnisse im Mittelpunkt.
Objektart: Stadtvilla, 2-geschossig
Dachform: Walmdach
Hausmaße: 11,205 m x 9,33 m
Netto-Raumfläche: 175,84 m² 95-Jahre STREIF-Jubiläumshaus CITY in Größe XXL
Hitzhofen / Ingolstadt *** Ihr Traumhaus auf vorhandenem einzigartigen Grundstück ***
85122 Hitzhofen
Die vollständige Adresse der Immobilie erhalten Sie vom Anbieter.
Auf Karte anzeigen
Die vollständige Adresse der Immobilie erhalten Sie vom Anbieter.
Finanzierungszertifikat
In nur zwei Minuten zu Ihrem persönlichen Finanzierungszertifkat.
Infos
| Haustyp | Einfamilienhaus |
|---|---|
| Wohnfläche ca. | 173 m2 |
| Nutzfläche | 178 m2 |
| Grundstücksfläche | 362 m2 |
| Zimmer | 7 |
| Schlafzimmer | 5 |
| Badezimmer | 2 |
Kosten
| Kaufpreis |
707.900 € |
|---|---|
| Provision | Nein |
Finanzierungsrechner:
Kaufpreis:
600.000 €
Eigenkapital:
600.000 €
Monatliche Rate
0 €
Effektiver Jahreszins
0 %
Sollzinsbindung
10 Jahre
Bausubstanz & Energieausweis
| Baujahr | 2026 |
|---|---|
| Bauphase | Haus in Planung (projektiert) |
Beschreibung des Objekts
Ausstattung
Die Stadtvilla besticht durch ihre hochwertige Ausstattung und durchdachte technische Details. Die Ausbaustufe 3 - FastFertigPlus umfasst eine Sanitär-Grundausstattung, sodass Sie die haustechnischen Gewerke wie Heizung, Lüftung, Sanitär und Estrich von einem Fachbetrieb erledigen lassen können. Neben der soliden Bauweise kommen hochwertige Materialien zum Einsatz, die Langlebigkeit und Stil garantieren. Ihr neues Zuhause wird nicht nur funktional, sondern auch ästhetisch ansprechend gestaltet - so können Sie sich in jedem Raum wohlfühlen.
Lage
Einzigartiger Fernblick und eine traumhafte Lage...
Dieses attraktive Baugrundstück befindet sich in einer ruhigen, familienfreundlichen Lage im Herzen von Hitzhofen /Ingolstadt. Die Umgebung zeichnet sich durch eine harmonische Mischung aus ländlicher Idylle und guter Anbindung an die nahegelegenen Städte aus.
Die Gemeinde Hitzhofen bietet eine angenehme Infrastruktur mit Einkaufsmöglichkeiten, Schulen, Kindergärten und medizinischer Versorgung, die bequem erreichbar sind. Die unmittelbare Umgebung ist geprägt von grünen Wiesen, Wäldern und gepflegten Wohnhäusern, was eine hohe Lebensqualität garantiert.
Das Grundstück besticht durch einen wunderschönen Blick über die Natur und die Felder. Aktuell ist die Sicht unverbaubar, was für die nächsten Jahre garantiert werden kann - allerdings kann dies nicht absolut zugesichert werden, da zukünftige Bauvorhaben in der Umgebung nicht ausgeschlossen werden können.
Dank der verkehrsgünstigen Lage sind die nächsten größeren Städte wie Ingolstadt oder Neuburg an der Donau sowie München sind schnell erreichbar, was den Alltag erleichtert und berufliche Wege verkürzt. Die ruhige Lage im gewählten Wohngebiet sorgt für entspanntes Wohnen, ohne auf die Vorzüge der dörflichen Gemeinschaft verzichten zu müssen.
Dieses Grundstück ist ideal für alle, die ein Zuhause in einer naturnahen Umgebung suchen, dabei aber die Nähe zu urbanen Zentren schätzen. Es bietet die perfekte Basis für den Bau eines individuellen Traumhauses in einer äußerst begehrten Lage.
Sonstige Angaben
Bei STREIF haben Sie die Wahl zwischen vier verschiedenen Ausbaustufen. Diese Stadtvilla wird in der Ausbaustufe 3 - FastFertigPlus angeboten. Sie haben die Möglichkeit, Eigenleistungen in Form einer Muskelhypothek einzubringen, um die Kosten zu senken. Bei Fragen zu unseren Dienstleistungen und den verschiedenen Ausbaustufen steht Ihnen unser Team jederzeit zur Verfügung, um Sie durch den gesamten Prozess zu begleiten.
Adresse
85122 Hitzhofen
Interessante Orte
Preis- und Lageinformationen
Preistrend für Bestandsimmobilien in Hitzhofen