Auf dem ca. 2.035 m² großen Grundstück, in zurückgezogener Lage, nahe der Keitumer Salzwiesen kann ein reetgedecktes Einzelhaus unter Reet mit einer Garage realisiert werden.
Auf einer Grundfläche von ca. 185 m² kann das Haus nach eigenen Wünschen und Vorstellungen gebaut und umgesetzt werden.
Die Baugenehmigung nebst Planungsunterlagen sind Bestandteil des Kaufvertrages und liegen für ein großzügiges Einzelhaus unter Reet vor.
Kein Energieausweis vorhanden / in Vorbereitung.
Grosszügiges Grundstück in ländlicher Umgebung von Keitum
25980 Sylt (Gemeinde)
Die vollständige Adresse der Immobilie erhalten Sie vom Anbieter.
Auf Karte anzeigen
Die vollständige Adresse der Immobilie erhalten Sie vom Anbieter.
Finanzierungszertifikat
In nur zwei Minuten zu Ihrem persönlichen Finanzierungszertifkat.
Infos
| Vermarktungsart | Kaufen |
|---|---|
| Grundstücksfläche | 2.035 m2 |
Kosten
| Miete pro Jahr |
6.950.000 € |
|---|---|
| Provision |
3,57 % inkl. MwSt. |
Finanzierungsrechner:
Kaufpreis:
600.000 €
Eigenkapital:
600.000 €
Monatliche Rate
0 €
Effektiver Jahreszins
0 %
Sollzinsbindung
10 Jahre
Beschreibung des Objekts
Lage
Das Grundstück befindet sich in ruhiger, landschaftlich reizvoller Lage des Friesendorfes Keitum. Die ganze Schönheit des Dorfes erschließt sich dem Besucher bei einem Spaziergang oder einer romantischen Kutschfahrt durch die malerischen Straßen Keitums, aber auch ein geruhsamer Gang am Keitumer Kliff oder durch die den Ort umgebenden Wiesen und Weiden sind Erholung pur für Körper und Geist. Geschäfte aller Art, runden das Angebot ab, fast alle Topadressen der Modebranche haben eine Dependance in Keitum, zahlreiche Kunstgalerien, Goldschmiede und Kunstgewerbeläden zeigen hochwertige Arbeiten von internationalem Format.
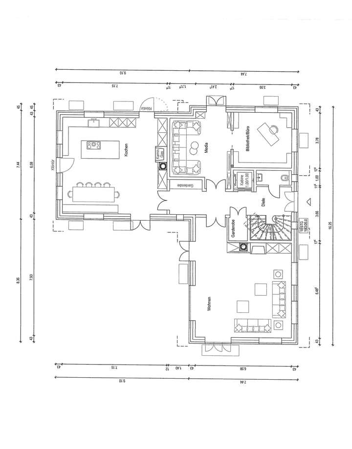
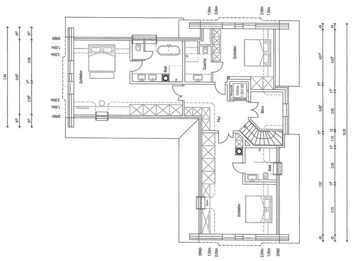
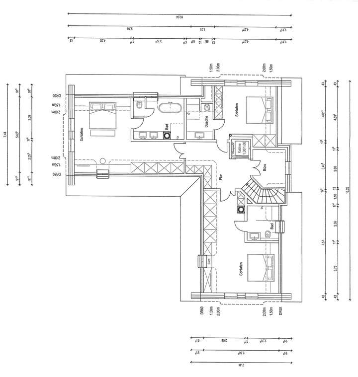
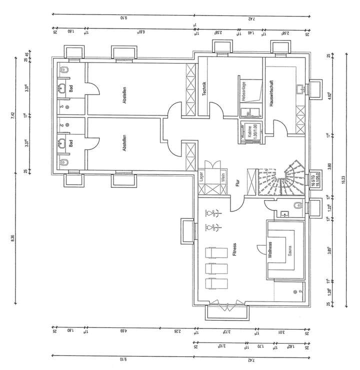
Grundriss
Erdgeschoss
>
>
Dachgeschoss
>
>
Untergeschoss
>
>
Schnitt
>
>