Diese exklusive, auf Neubaustandard kernsanierte, im 1. Obergeschoss liegende Eigentumswohnung befindet sich am Rande der Neusser Innenstadt auf der Bergheimer Straße in einem modernisierten Dreifamilienhaus. Bei der aufwändigen Sanierung wird besonders viel Wert auf die Raumkonzeption sowie die Verarbeitung hochwertiger Materialien gelegt, sodass die Raumaufteilung sowie die Ausstattung dieser Eigentumswohnung keine Wünsche offenlassen.
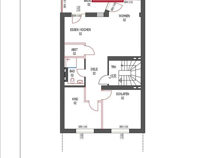
Diese gut aufgeteilte 3-Zimmer-Wohnung bietet Ihnen eine großzügige Eingangsdiele, von der aus erreichen Sie sämtliche Räume, ein modernes Badezimmer, einen geräumigen Wohnbereich mit offener Küche und Zugang zum Balkon, ein Elternschlafzimmer sowie ein Kinderzimmer erreichen. Des Weiteren befindet sich an der Küche ein praktischer Abstellraum.
Vom loftartigen und sehr großzügigen Wohnbereich mit offener Küche gelangen Sie über zwei bodentiefe Fenster-/Türelemente auf den Balkon mit Südostausrichtung. Zusätzlich bietet Ihnen ein großes und bodentiefes Fensterelement einen guten Ausblick. Der Wohnbereich verfügt neben dem Couch-TV Bereich über genügend Platz für einen großen Esstisch für die ganze Familie. Die an den Wohnbereich angrenzende, offene Küche bietet Ihnen eine Menge an Gestaltungsmöglichkeiten von einer Küchenzeile bis hin zur modernen Kücheninsel.
Das große Schlafzimmer sowie das Kinderzimmer verfügen jeweils über große Fenster, die die Räume sehr gut belichten. Auch das Kinder- oder Arbeitszimmer bietet viel Platz für Schrank, Bett und einen Schreibtisch.
Das Badezimmer, mit großformatigen Fliesen 60x60, verfügt über eine begehbare Dusche, ein wandhängendes WC
und ein Waschbecken. Sämtliche Sanitärgegenstände sind in Weiß gehalten.
Im Haus befinden sich lediglich 2 weitere Wohnungen, sodass mit wenig Verkehr im Treppenhaus etc. zu rechnen ist.
Der separate Hallenbau am Ende des Grundstücks wird als Mehrfachgarage für die Einheiten der Immobilie genutzt.
Hier befindet sich der zur Wohnung gehörende Garagenstellplatz sowie Platz für Ihre Fahrräder.
Im sanierten Kellergeschoss des Mehrfamilienhauses finden Sie einen zur Wohnung gehörigen separaten Kellerraum sowie einen gemeinschaftlich nutzbaren Wasch- und Trockenraum. Im Erdgeschoss finden Sie einen separaten Raum zum Abstellen von
z.B. Kinderwagen.
Die Wohnung ist fertiggestellt und kann sofort bezogen werden.
Gerne übersenden wir Ihnen weiterführende Unterlagen zu diesem Objekt und besichtigen die Wohnung mit Ihnen gemeinsam.
Neubaustandard: 3 Zimmer- ETW, Balkon und Garage in 3 Fam.-Haus Erstbezug nach Kernsanierung
41464 Neuss
Die vollständige Adresse der Immobilie erhalten Sie vom Anbieter.
Auf Karte anzeigen
Die vollständige Adresse der Immobilie erhalten Sie vom Anbieter.
Finanzierungszertifikat
In nur zwei Minuten zu Ihrem persönlichen Finanzierungszertifkat.
Infos
| Wohnungskategorie | Etagenwohnung |
|---|---|
| Etage | 1 von 3 |
| Wohnfläche ca. | 78 m2 |
| Bezugsfrei ab | sofort |
| Zimmer | 3 |
| Schlafzimmer | 2 |
| Badezimmer | 1 |
| Garage/Stellplatz | Garage |
| Anzahl Garage/Stellplatz | 1 |
Kosten
| Kaufpreis |
374.000 € |
|---|---|
| Preis für Garage/Stellplatz | 25.000 € |
| Provision | Nein |
Finanzierungsrechner:
Kaufpreis:
600.000 €
Eigenkapital:
600.000 €
Monatliche Rate
0 €
Effektiver Jahreszins
0 %
Sollzinsbindung
10 Jahre
Bausubstanz & Energieausweis
| Baujahr | 2023 |
|---|---|
| Letzte Sanierung | 2025 |
| Objektzustand | Erstbezug nach Sanierung |
| Qualität der Austattung | Gehoben |
| Heizungsart | Wärmepumpe |
| Energieausweis | liegt zur Besichtigung vor |
Beschreibung des Objekts
Ausstattung
- Wärmepumpe mit dezentraler Warmwasseraufbereitung
- Fußbodenheizung mit Einzelraumregelung
- dreifach verglaste Kunststofffenster und Balkontür, innen weiß – außen anthrazit
- zwei elektrische Durchfahrtstore mit Fernbedienung
- neue Elektroinstallationen im gesamten Haus
- neue Wasser- und Abwasserinstallation im gesamten Haus
- Badezimmer mit wandhängendem WC, begehbarer Dusche mit Glasabtrennung und Waschtisch
- Hochwertiger Parkettboden in sämtlichen Wohnräumen
- Separater Kellerraum
- Gemeinschaftlich nutzbarer Wasch- und Trockenraum mit Anschlüssen für die Waschmaschine
und den Trockner
- Energieeffizienz A
Lage
Diese exklusive und sanierte im 1. Obergeschoss liegende Eigentumswohnung befindet sich am Rande der Neusser Innenstadt auf der Bergheimer Straße in einem sanierten Dreifamilienhaus.
Durch die unmittelbare Nähe zur Innenstadt befinden sich viele Geschäfte zur Deckung des täglichen Bedarfs in fußläufiger Entfernung. Die Nachbarbebauung besteht überwiegend aus Mehrfamilienhäusern bzw. Einfamilienhäusern.
Zudem befinden sich in der Umgebung diverse Kindergärten und Grundschulen sowie sämtliche weiterführenden Schulen, die fußläufig oder mit dem Fahrrad gut zu erreichen sind.
Insbesondere die kurze Entfernung zur Neusser Innenstadt spricht für diese Wohngegend. Alle Einkaufsmöglichkeiten befinden sich auf dem nahegelegenen Holzheimer Weg oder in der Neusser Innenstadt, die in wenigen Fahrradminuten bequem zu erreichen sind. Beispielsweise finden Sie in nur ca. 2 km Entfernung sowohl einen sehr großen Aldi-Markt als auch einen sehr gut sortierten EDEKA-Markt, einen Drogeriemarkt, MediaMarkt, Spielzeughändler und einen Sportartikelladen auf einem Fleck.
Die nächste Bushaltestelle befindet sich nur ca.
150 m vom Objekt entfernt und bietet sehr gute Verbindungen in die Neusser Innenstadt und nach Düsseldorf. Der Neusser Hauptbahnhof liegt in
ca. 2 km Entfernung. Hier haben Sie gute Verbindungen nach Düsseldorf, Köln und Mönchengladbach etc. Der nächste S-Bahn-Haltepunkt befindet sich am Hauptbahnhof oder an der Bergheimer Straße. Von hier fahren Sie mit der S-Bahn direkt nach Düsseldorf-City oder zum
Flughafen. Auch nach Köln schaffen Sie es in
ca. 30 Minuten per S-Bahn.
Die Autobahnanbindung sowohl nach Düsseldorf als auch Köln ist hervorragend. Die nächste Autobahnauffahrt auf die A57-Neuss-West befindet sich in nur ca. 1,5 km Entfernung.
Naherholung-perfekt: Sie finden zwei renommierte Tennisclubs in ca. 600 m Entfernung, Freibad, Hallenbad, Kinderbauernhof und Eislaufhalle sowie einen Golf-Club finden Sie in Neuss nur wenige Minuten vom Objekt entfernt. Der neue Wellnesstempel „WellNeuss“ in Reuschenberg ist ebenfalls schnell erreichbar. In nur 10 Minuten sind Sie an der Skihalle Neuss und testen den „Neusser Gletscher“…. u.v.m.
Grundriss
Grundriss 1.OG
>
>
Adresse
41464 Neuss
Interessante Orte
Preis- und Lageinformationen
Preistrend für Bestandsimmobilien in Neuss