Diese stilvolle und moderne Doppelhaushälfte aus dem Jahr 2023 bietet auf rund 108 m² Wohnfläche höchsten Komfort und eine durchdachte Raumaufteilung für die ganze Familie.
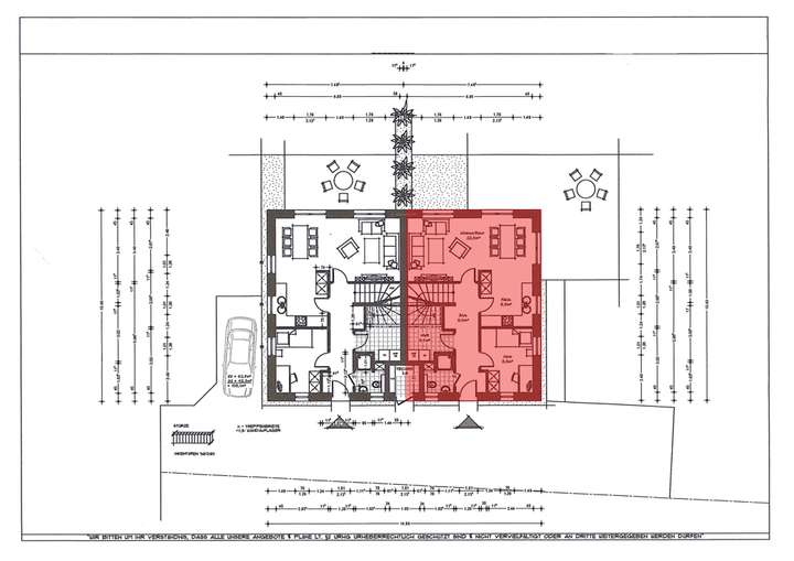
Das Herzstück der Immobilie ist der großzügige und lichtdurchflutete Wohn- und Essbereich. Dank bodentiefer Fensterfronten genießen Sie hier eine helle und freundliche Atmosphäre, die nahtlos in den gemütlichen Garten mit Terrasse übergeht – Ihr persönlicher Rückzugsort zum Entspannen und Durchatmen.
Die intelligente Grundrissgestaltung setzt sich im gesamten Haus fort. Im Erdgeschoss finden Sie neben dem Wohnbereich ein weiteres Zimmer, das sich ideal als Arbeits- oder Gästezimmer anbietet, sowie ein modernes Badezimmer mit ebenerdiger Dusche. Ein praktischer Hauswirtschaftsraum bietet zusätzlichen Komfort.
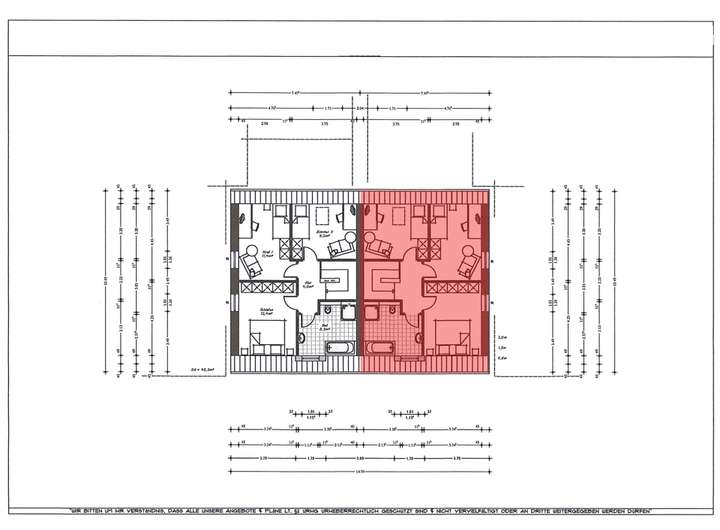
Im Obergeschoss erwarten Sie drei geräumige Schlafzimmer, die viel Platz für individuelle Gestaltungsmöglichkeiten lassen. Das Hauptbadezimmer ist mit einer Badewanne ausgestattet und lädt zu erholsamen Momenten ein. Hochwertiger Designer-Vinylboden in den Wohnräumen sorgt für ein warmes und edles Ambiente, während der Spitzboden wertvollen Stauraum bereithält.
Der separate Hauseingang garantiert Ihnen ein hohes Maß an Privatsphäre. Lassen Sie sich von dieser einzigartigen Immobilie begeistern und genießen Sie erstklassige Wohnqualität in einer ruhigen und dennoch verkehrsgünstigen Lage.
Der Energieausweis ist beantragt und liegt zur Besichtigung vor.
Moderne Doppelhaushälfte in ruhiger Siedlungslage von Leer!
26789 Leer (Ostfriesland)
Die vollständige Adresse der Immobilie erhalten Sie vom Anbieter.
Auf Karte anzeigen
Die vollständige Adresse der Immobilie erhalten Sie vom Anbieter.
Infos
| Haustyp | Doppelhaushaelfte |
|---|---|
| Wohnfläche ca. | 108 m2 |
| Nutzfläche | 5 m2 |
| Grundstücksfläche | 300 m2 |
| Bezugsfrei ab | nach Vereinbarung! |
| Zimmer | 4 |
| Schlafzimmer | 3 |
| Badezimmer | 2 |
| Haustiere | Nach Vereinbarung |
| Garage/Stellplatz | Außenstellplatz |
| Anzahl Garage/Stellplatz | 2 |
Kosten
| Kaltmiete |
1.185 € |
|---|---|
| Nebenkosten | + 200 € |
| Heizkosten | in Nebenkosten enthalten |
| Gesamtmiete | 1.385 € |
| Kaution o. Genossenschaftsanteile | 2370 |
Weiter mieten oder doch kaufen?
Wer in Miete wohnt, überweist dem Vermieter im Laufe der Jahre hohe Summen, die sich
auch in die eigenen vier Wände investieren lassen könnten.
Bausubstanz & Energieausweis
| Baujahr | 2023 |
|---|---|
| Objektzustand | Neuwertig |
| Heizungsart | Fußbodenheizung |
| Energieausweis | liegt zur Besichtigung vor |
Beschreibung des Objekts
Lage
Die idyllische Stadt Leer liegt zwischen den beiden Flüssen Leda und Ems und ist mit knapp 34.000 Einwohnern und einer Bevölkerungsdichte von 70,30 km² die drittgrößte Stadt Ostfrieslands. Zu dem Landkreis Leer zählen knapp 164.500 Einwohner. Berühmt an Leer ist die romantische Altstadt, die durch alte Bürgerhäuser und malerische Gassen besticht. Viele kleine originelle Geschäfte und charmante Cafés laden zum Verweilen ein. Leer gilt als die Einkaufsstadt Ostfriesland und ist stark vom Tourismus geprägt. Angrenzend zu der leeraner Innenstadt und dem Rathaus liegt der Museumshafen mit seinen historischen Schiffen. Durch den Seehafen ist die Stadt vom Handel geprägt, sodass Leer zu den größten deutschen Reederei-Standorten zählt. Passend hierzu befindet sich in Leer die Fachhochschule mit dem Fachbereich Seefahrt.
Das Objekt liegt in ruhiger Sackgassenlage in einem Neubaugebiet. Das Baugebiet verfügt über einen direkten Zugang zum Ostfrieslandwanderweg. Schule, Kindergarten und Einkaufsmöglichkeiten befinden sich in direkter Nähe. Das Wohngebiet ist auch für Pendler sehr verkehrsgünstig gelegen. Die Autobahn in Richtung Oldenburg, Emden, Oberhausen liegt nur ca 2km entfernt.
Sonstige Angaben
Alle Angaben sind ohne Gewähr und basieren ausschließlich auf Informationen, die uns von unserem Auftraggeber zur Verfügung gestellt wurden. Wir übernehmen keine Gewähr für die Vollständigkeit, Richtigkeit und Aktualität dieser Angaben. Visualisierungen dienen rein zu Anschaungszwecken und spiegeln nicht den aktuellen Baustand in Punkto Architektur, Innenarchitektur und den verwendeten Materialien wieder. Im übrigen gelten unsere allgemeinen Geschäftsbedingungen. Irrtum und Zwischenvermietung vorbehalten. Die Weitergabe dieses Exposés an Dritte ohne unsere Zustimmung löst gegebenenfalls Courtage- bzw. Schadensersatzansprüche aus.
Grundriss
Grundriss Erdgeschoss
>
>
Grundriss Obergeschoss
>
>
Muster-Visualisierung
>
>
Adresse
26789 Leer (Ostfriesland)
Interessante Orte
Preis- und Lageinformationen
Preistrend für Bestandsimmobilien in Leer (Ostfriesland)