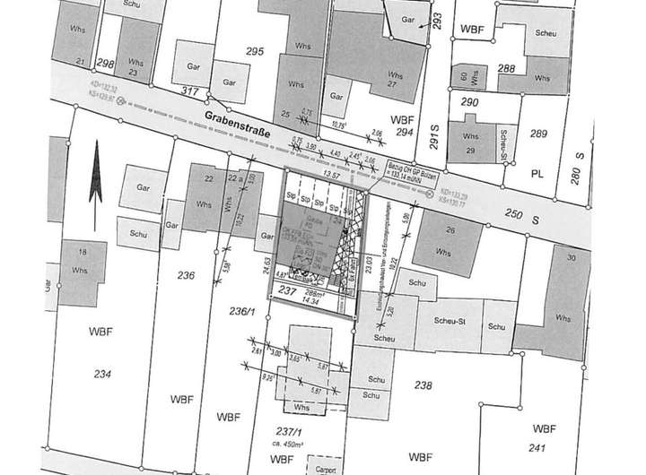
Bei diesem Bauplatz handelt es sich um ein 289 qm großes, voll erschlossenes Grundstück im Ortskern von Zeutern.
Die Baugenehmigung für ein 3-Familienhaus liegt vor.
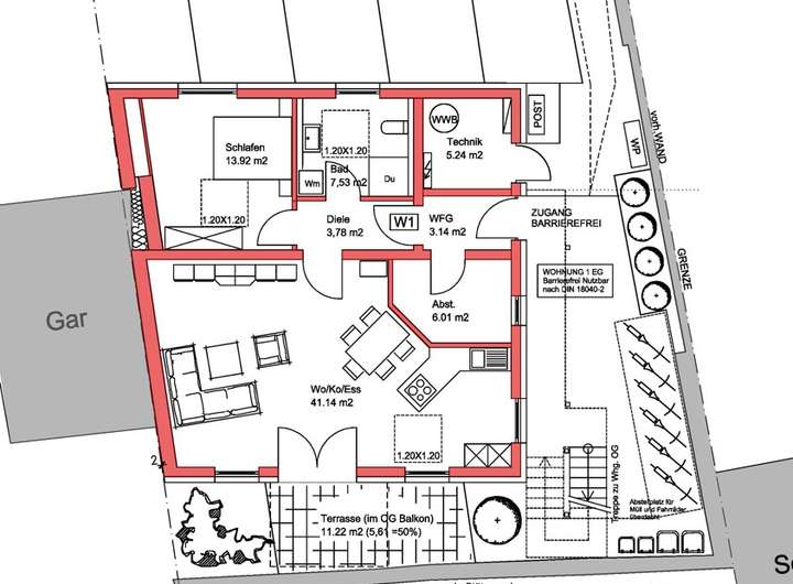
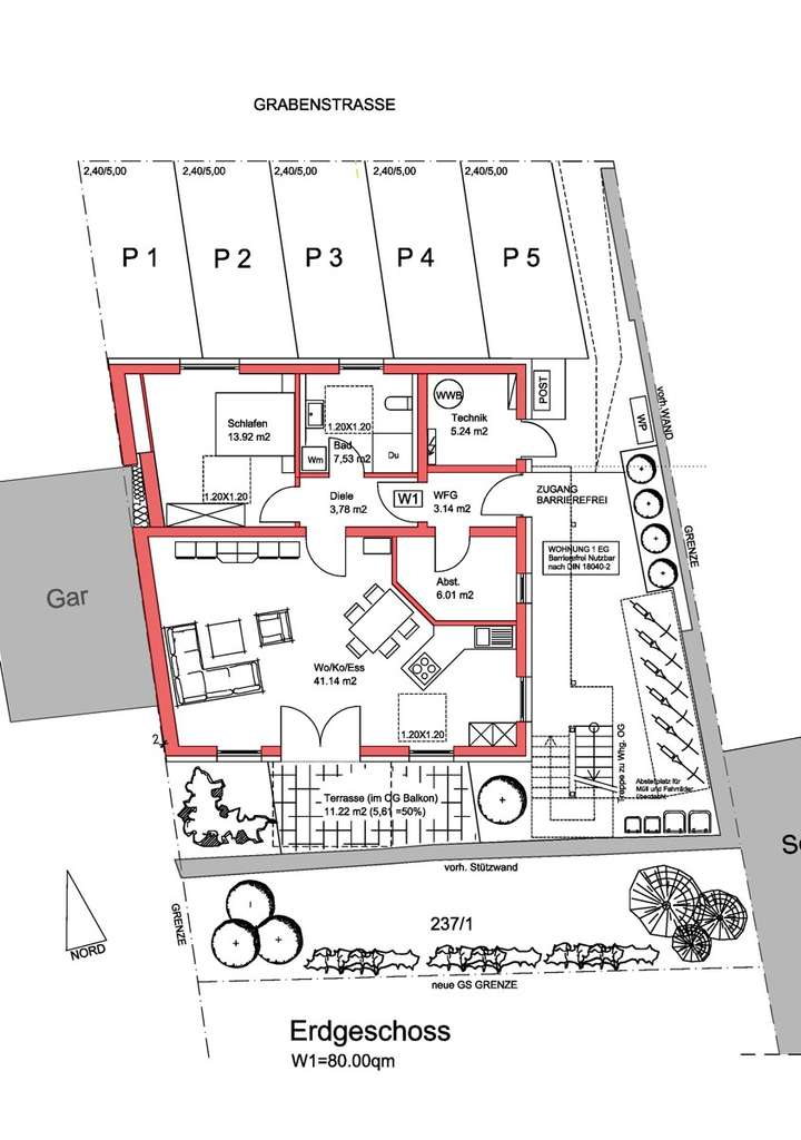
Der Verkauf beinhaltet die Planung und die Baugenehmigung für ein 2-3 Familienhaus mit 5 Stellplätzen bzw. Carports. Die Gesamtwohnfläche beträgt 226 qm.
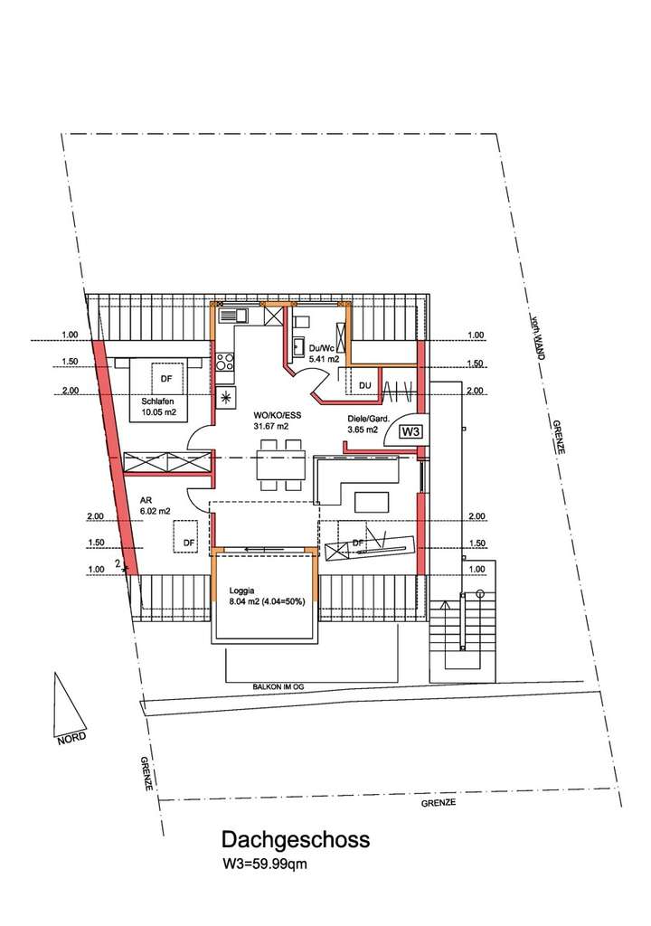
Die Immoblie kann auch als großzügiges 2-Familienhaus gebaut werden. Es besteht die Möglichkeit, die OG- und DG-Wohnung zusammenzulegen und eine Maisonette-Wohnung mit insgesamt 146 m² Wohnfläche mit innenliegender Treppe zu errichten.
Die Maisonettewohnung lässt sich als 4 - 5 ZKB-Wohnung oder als offen gestaltete 3 - 4 ZKB-Wohnung mit Galerie verwirklichen.
Die Immobilie könnte dann auch als 2-Generationen-Haus genutzt werden.
Bauplatz inkl. Baugenehmigung für 2-3 Familienhaus **PROVISIONSFREI**
76698 Ubstadt-Weiher
Die vollständige Adresse der Immobilie erhalten Sie vom Anbieter.
Auf Karte anzeigen
Die vollständige Adresse der Immobilie erhalten Sie vom Anbieter.
Finanzierungszertifikat
In nur zwei Minuten zu Ihrem persönlichen Finanzierungszertifkat.
Infos
| Vermarktungsart | Kaufen |
|---|---|
| Grundstücksfläche | 289 m2 |
| Erschließung | Erschlossen |
Kosten
| Miete pro Jahr |
186.000 € |
|---|---|
| Provision |
keine Provision, da Eigenbestand |
Finanzierungsrechner:
Kaufpreis:
600.000 €
Eigenkapital:
600.000 €
Monatliche Rate
0 €
Effektiver Jahreszins
0 %
Sollzinsbindung
10 Jahre
Beschreibung des Objekts
Lage
Ubstadt-Weiher liegt an der Grenze zwischen Rheinebene und Kraichgau im Norden des Landkreises Karlsruhe.
Der Ortsteil Zeutern verfügt über einen Bahnhof und zwei weitere Stadtbahn-Stationen an der Strecke Bruchsal–Odenheim (S 31 KVV). Die durch den Ort führende Hauptstraße (L 552) verbindet Ubstadt-Weiher mit Eppingen.
In Ubstadt gibt es die Alfred-Delp-Realschule und die Hermann-Gmeiner-Grund- und Hauptschule mit Werkrealschule. Je eine reine Grundschule gibt es in Stettfeld, Weiher und Zeutern. In Zeutern gibt es außerdem eine Bekenntnisschule der Siebenten-Tags-Adventisten mit Grund- und Realschulzweig. Daneben bestehen noch sechs römisch-katholische Kindergärten.
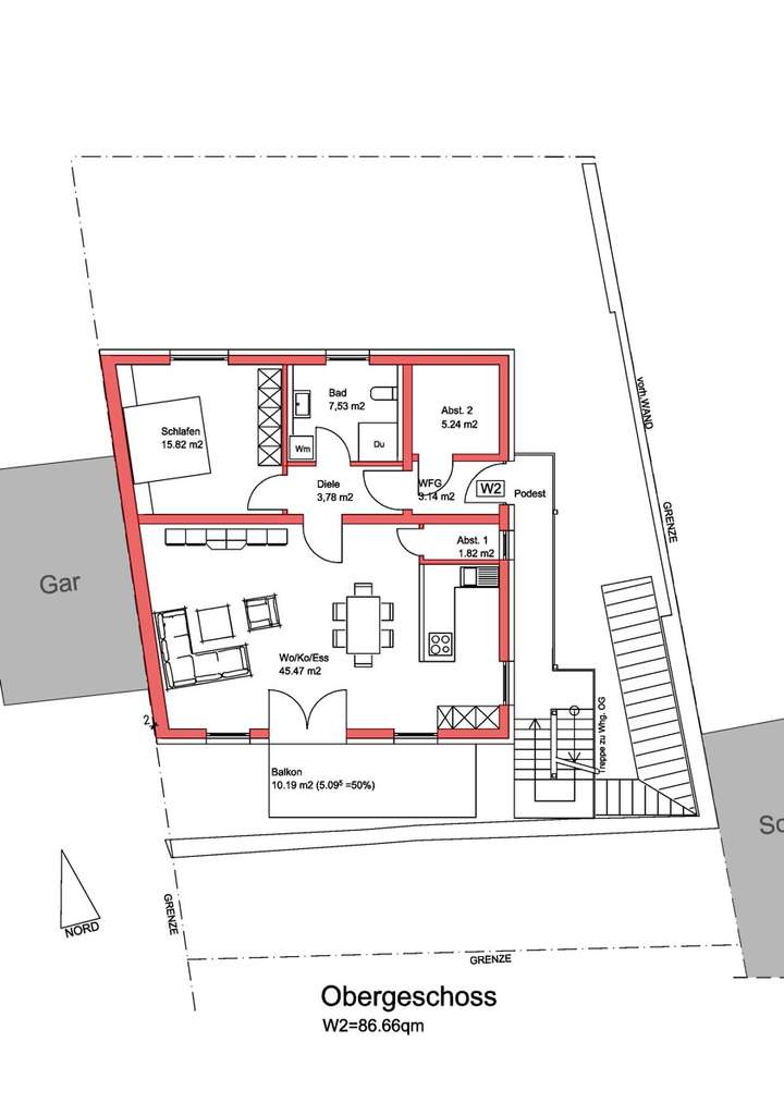
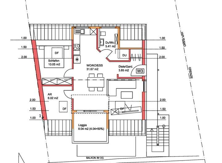
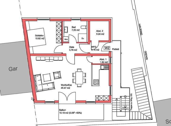
Grundriss
SÜD-Ansicht
>
>
EG
>
>
OG
>
>
DG
>
>
NORD-Ansicht
>
>
OST-Ansicht
>
>
SCHNITT
>
>
OG
>
>
DG
>
>
Ostansicht
>
>
Nordansicht
>
>
EG
>
>