Bauprojekt mit Genehmigung und Pläne!
3 Reihenhäuser auf ca. 998 m² Grundstück
Sich möchten 3 Reihenhäuser bauen?
Dann kann dieses Projekt in Wald-Michelbach mit herrlichem Blick das Richtige für Sie sein.
Auf ca. 998 m² wurden 3 Reihenhäuser geplant und sind bereits genehmigt. Sie bekommen alle Unterlagen für die Errichtung der 3 Häuser. Die Wohnflächen liegen bei ca. 116 m² pro Haus.
Sie möchten weitere Informationen.
Ich freue mich auf Ihre Anfragen.
Bauprojekt mit Genehmigung und Pläne!
69483 Wald-Michelbach
Die vollständige Adresse der Immobilie erhalten Sie vom Anbieter.
Auf Karte anzeigen
Die vollständige Adresse der Immobilie erhalten Sie vom Anbieter.
Finanzierungszertifikat
In nur zwei Minuten zu Ihrem persönlichen Finanzierungszertifkat.
Infos
| Vermarktungsart | Kaufen |
|---|---|
| Grundstücksfläche | 998 m2 |
Kosten
| Miete pro Jahr |
169.000 € |
|---|---|
| Provision |
3,57 % inkl. ges. MwSt. |
Finanzierungsrechner:
Kaufpreis:
600.000 €
Eigenkapital:
600.000 €
Monatliche Rate
0 €
Effektiver Jahreszins
0 %
Sollzinsbindung
10 Jahre
Beschreibung des Objekts
Lage
Wald-Michelbach ist eine Kleinstadt mit rund 11.000 Einwohnern. Sie liegt im Odenwald auf hessischem Boden und ist Teil des Landkreises Bergstraße.
Diverse Supermärkte, Banken, schulische Angebote und medizinische Einrichtungen befinden Sie in unmittelbarer Nähe, die Sie bequem in wenigen Autominuten ansteuern können.
Wald-Michelbach liegt an der Landesstraße L3120 rund 18 Autominuten entfernt zur Bundesstraße B38 Richtung Mannheim. Von hier aus benötigen Sie circa zehn Autominuten zur Bundesstraße B3 Richtung Heidelberg/Darmstadt, mit Übergangsmöglichkeit auf die Autobahn A5 Richtung Frankfurt am Main/Karlsruhe.
Grundriss
Schnitt
>
>
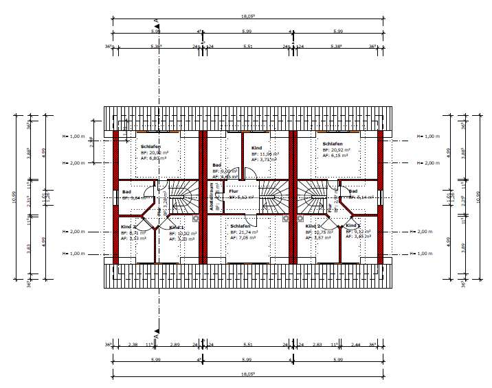
Grundriss DG
>
>
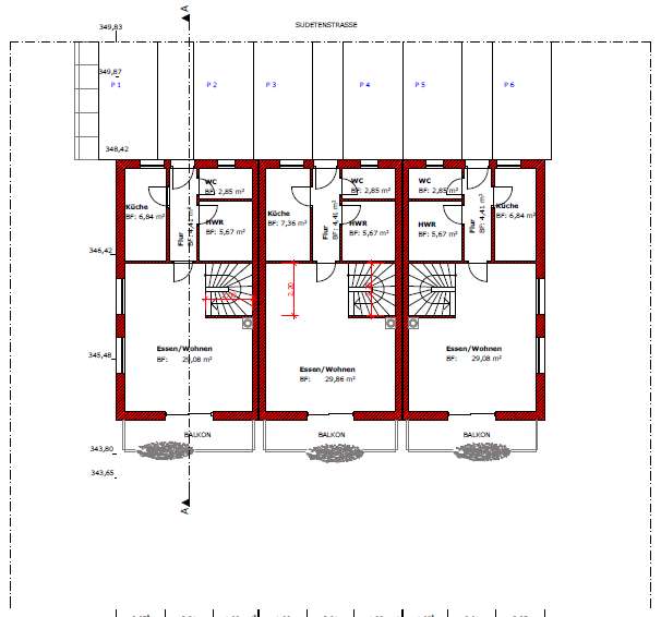
Grundriss Erdgeschoss
>
>