Die Eigentumswohnung befindet sich in einem Neubaugebiet von Erkelenz Immerath Neu.
Das Gebäude beinhaltet lediglich 2 Wohnungen.
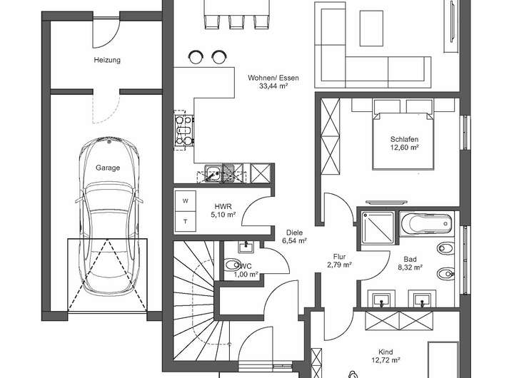
Im Erdgeschoss haben Sie die ganze Etage für sich ganz allein.
3 Zimmer voller Gemütlichkeit auf einer Ebene. Die Raumaufteilung ist modern mit viel Tageslicht in jedem Zimmer.
Der private Garten misst ganze 200m². Die ca. 20m² überdachte Terrasse kommt zu der angegebenen Wohnfläche von 94m² hinzu.
Das Tageslichtbad hat neben einer Badewanne eine Dusche. Zusätzlich ist im Eingangsbereich ein Gäste WC untergebracht. Alles in einem perfekt für die kleine Familie.
Eine 3,5 Meter breite Garage, mit einem Technikraum, gehören zum Angebot dazu.
Die Wohnung besitzt eine eigene Gas-Heizung mit Warmwasserspeicher und Solaranlage auf dem Dach zur Warmwasserunterstützung. Beheizt wird in allen Räumen über den Fußboden.
Mit unter 100€ mtl. ist die Heizung günstig und effizient. Vor der Garage passen 2 weitere Fahrzeuge.
Erdgeschoss-Wohnung mit Garten und Garage
41812 Erkelenz
Die vollständige Adresse der Immobilie erhalten Sie vom Anbieter.
Auf Karte anzeigen
Die vollständige Adresse der Immobilie erhalten Sie vom Anbieter.
Finanzierungszertifikat
In nur zwei Minuten zu Ihrem persönlichen Finanzierungszertifkat.
Infos
| Wohnungskategorie | Etagenwohnung |
|---|---|
| Wohnfläche ca. | 94 m2 |
| Zimmer | 3 |
| Schlafzimmer | 2 |
| Badezimmer | 1 |
Kosten
| Kaufpreis |
385.000 € |
|---|---|
| Provision | Nein |
Finanzierungsrechner:
Kaufpreis:
600.000 €
Eigenkapital:
600.000 €
Monatliche Rate
0 €
Effektiver Jahreszins
0 %
Sollzinsbindung
10 Jahre
Bausubstanz & Energieausweis
| Baujahr | 2014 |
|---|---|
| Objektzustand | Neuwertig |
| Qualität der Austattung | Gehoben |
| Heizungsart | Fußbodenheizung |
| Wesentliche Energieträger | Gas |
| Energieausweis | liegt vor |
| Energieausweistyp | Bedarfsausweis |
| Energieverbrauchskennwert | 91,3 kWh/(m²*a) |
| Energieeffizienzklasse | C |
91,3
kWh/(m²*a)
Energieeffizienzklasse C
- A+
- A
- B
- C
- D
- E
- F
- G
- H
- 0
- 25
- 50
- 75
- 100
- 125
- 150
- 175
- 200
- 225
- >250
Beschreibung des Objekts
Ausstattung
- Moderne Massivbauweise aus dem Jahr 2014
- Großzügige Wohnfläche von ca. 94 m², verteilt auf 3 helle Zimmer
- Derzeit vermietet, ideal als Kapitalanlage oder zukünftiges Eigenheim
- 3-fach verglaste Fenster inkl. elektrische Rollläden in allen Räumen
- Fußbodenheizung für behagliches Wohnklima
- Praktische Garage für sicheren Stellplatz und zusätzlichen Stauraum
- Attraktiver eigener Gartenanteil zur individuellen Nutzung
Lage
Wohngebiet
In Immerath neu wohnen Sie ruhig und idyllisch in einer guter Nachbarschaft. Die nächste Einkaufsmöglichkeit erreichen Sie in 1 km. Die Stadt Erkelenz und die Auffahrt A46 Richtung Düsseldorf ist in 5 Fahrminuten erreicht.
Grundriss
Grundriss
>
>
Grundriss Übersicht
>
>
Adresse
41812 Erkelenz
Interessante Orte
Preis- und Lageinformationen
Preistrend für Bestandsimmobilien in Erkelenz