Unser Bauvorhaben green v Viernheim erreicht die Klassifizierung Klimafreundliches Wohngebäude mit QNG und wird mit dem besonderen Förderprogramm 297/298 der KfW-Bankengruppe unterstützt. Es qualifiziert sich dadurch für ein außergewöhnlich gutes Zinsprogramm, das erhebliche Kosteneinsparungen für Sie als Käufer mit sich bringt.
Beim Erwerb einer Erstimmobilie können Sie dank "Hessengeld" bei der Grunderwerbssteuer sparen.
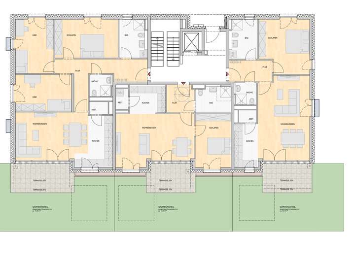
Der erste Bauabschnitt ist abgeschlossen. Wir bieten in zwei Gebäuden einen attraktiven Wohnungsmix mit 2-4 Zimmer Eigentumswohnungen und Wohnungsgrößen von 79m² bis 113m².
Eine gut durchdachte Raumaufteilung und praktische Stellflächen bieten Ihnen hervorragende Möglichkeiten, sich individuell in Ihren Räumen zu verwirklichen. Alle Wohnungen
erhalten Balkone oder Gartenanteile mit Südwest-Ausrichtung, die zum Verweilen bis in die Abendstunden einladen.
Alle Häuser werden durch eine gemeinsame Tiefgarage verbunden und bieten ausreichend Platz für 112 PKW-Stellplätze. In den Untergeschossen befinden sich die Wohnungskeller und Technikräume. Die Müllräume sowie
die Fahrradstellplätze für Besucher sind gut erreichbar in den Außenanlagen, nahe den Hauseingängen, platziert.
Viernheim Bannholzgraben II: Geräumige 2 Zi. ETW mit Terrasse und eigenem Gartenanteil
Otfried-Preußler-Straße 7,
68519 Viernheim
Auf Karte anzeigen
Finanzierungszertifikat
In nur zwei Minuten zu Ihrem persönlichen Finanzierungszertifkat.
Infos
| Wohnungskategorie | Etagenwohnung |
|---|---|
| Etage | 0 von 4 |
| Wohnfläche ca. | 79 m2 |
| Bezugsfrei ab | 2026 |
| Zimmer | 2 |
| Schlafzimmer | 1 |
| Badezimmer | 1 |
| Garage/Stellplatz | Tiefgarage |
| Anzahl Garage/Stellplatz | 1 |
Kosten
| Kaufpreis |
439.900 € |
|---|---|
| Preis für Garage/Stellplatz | 25.000 € |
| Provision | Nein |
Finanzierungsrechner:
Kaufpreis:
600.000 €
Eigenkapital:
600.000 €
Monatliche Rate
0 €
Effektiver Jahreszins
0 %
Sollzinsbindung
10 Jahre
Bausubstanz & Energieausweis
| Objektzustand | Erstbezug |
|---|---|
| Qualität der Austattung | Gehoben |
| Wesentliche Energieträger | Solarheizung |
| Energieausweis | liegt zur Besichtigung vor |
Beschreibung des Objekts
Ausstattung
Hier einige Beispiele:
• Massive Bauweise mit hochwertigem Kalksandstein
• Aufzugsschächte mit erhöhter Wandstärke zur
Reduzierung der Schallübertragung
• Erstklassiges Wärmedämmverbundsystem
• Elektrisch betriebene Rollläden
• Separat für jeden Raum regulierbare Fußbodenheizung sowie Fußbodenkühlung
• Zeitloses und robustes Eichenparkett
• Komfortable Bäder mit bodengleich gefliestem
Duschbereich
• Hochwertige Sanitärobjekte, ausgesuchte Fliesen
namhafter Hersteller
• Abschließbare Fenster- und Fenstertürgriffe im EG
• Vorrüstung für Markisen in allen Wohnungen
• Alle Wohnungen sind nach der Hessischen Bauordnung
(HBO) von den öffentlichen Verkehrsflächen bis zum
Wohnungseingang barrierefrei erreichbar
• 20 % der Wohnungen (der Gesamtbaumaßnahme)
werden barrierefrei umgesetzt
• Gemeinsame Tiefgarage für alle fünf Gebäude mit 112 PKW-Stellplätzen
• Rollgittertor mit Fernbedienung
• Videoüberwachung an der Tiefgaragenzufahrt
• E-Mobilität: Es sind mindestens 6 TG-Stellplätze vorgesehen, weitere Stellplätze können ausgerüstet werden
• Klimafreundliches Wohngebäude mit QNG (KFWG-Q)*
*Die KFWG – Q Stufe wird erreicht, wenn für ein Effizienzhaus bzw. Effizienzgebäude 40
ein Nachhaltigkeitszertifikat ausgestellt wird, dass die Übereinstimmung der Maßnahme
mit den Anforderungen des „Qualitätssiegel Nachhaltiges Gebäude Plus“ (QNG-PLUS)
oder „Qualitätssiegel Nachhaltiges Gebäude Premium
Lage
Viernheim liegt in Hessen, grenzt aber im Westen, Süden und Osten an Baden-Württemberg an.
Mit rund 34.000 Einwohnern ist sie die zweitgrößte Stadt im südhessischen Kreis Bergstraße und verfügt über eine hervorragende BAB-Anbindung. Ob mit Fahrrad, ÖPNV oder Auto: die nächst größeren Städte Mannheim, Heidelberg und Weinheim an der Bergstraße sind in kürzester Fahrtzeit zu erreichen.
Am nördlichen Stadtrand Viernheims, im beliebten Neubaugebiet Bannholzgraben II, realisieren wir als Generalunternehmer in mehreren Bauabschnitten das Projekt green v Viernheim.
Sonstige Angaben
Wir beraten Sie gerne jeden Samstag von 10-13 Uhr in unserer Musterwohnung.
Otfried-Preußler-Straße 1, EG links I
68519 Viernheim
So erreichen Sie uns:
Telefon: 0621 8607-255
E-Mail: info@green-v.de
Homepage: https://green-v.de
Adresse
Otfried-Preußler-Straße 7, 68519 Viernheim
Interessante Orte
Preis- und Lageinformationen
Preistrend für Bestandsimmobilien in Viernheim