In begehrter und idyllischer Randlage von Roetgen-Rott erwartet Sie dieses großzügige und voll erschlossene Baugrundstück mit einer Fläche von ca. 4.189 qm. Eingebettet in eine naturnahe Umgebung bietet dieses Grundstück beste Voraussetzungen für die Verwirklichung Ihres Bauprojekts.
Das Grundstück liegt in einem rechtskräftigen Bebauungsplan (B-Plan), der eine klare und verlässliche Planungssicherheit gewährleistet. Die Möglichkeit zur Bebauung mit einem großzügigen Zweifamilienhaus eröffnet vielfältige Nutzungsmöglichkeiten - vom Mehrgenerationenwohnen bis zur Kombination von Wohnen und Vermietung.
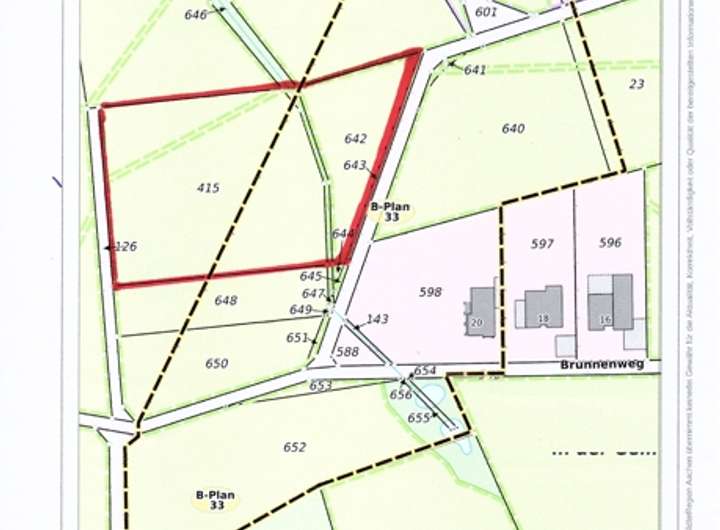
Bei diesem Grundstück handelt es sich um Flurstück 415 und 642
(Siehe Bilder).
Die ruhige Lage am Ortsrand garantiert ein hohes Maß an Lebensqualität - umgeben von viel Grün, mit weiten Blickachsen und dennoch in guter Erreichbarkeit zu allen wichtigen Einrichtungen des täglichen Bedarfs.
Einzigartiges Baugrundstück, mit großzügigem Baufenster, in ruhiger Lage in Roetgen-Rott
52159 Roetgen
Die vollständige Adresse der Immobilie erhalten Sie vom Anbieter.
Auf Karte anzeigen
Die vollständige Adresse der Immobilie erhalten Sie vom Anbieter.
Finanzierungszertifikat
In nur zwei Minuten zu Ihrem persönlichen Finanzierungszertifkat.
Infos
| Vermarktungsart | Kaufen |
|---|---|
| Grundstücksfläche | 4.189 m2 |
| Erschließung | Erschlossen |
| Empfohlene Nutzung | Mehrfamilienhaus |
| Bebaubar nach | Bebauungsplan |
| Verfügbar ab | Sofort |
Kosten
| Miete pro Jahr |
649.000 € |
|---|---|
| Provision |
3,57% |
Finanzierungsrechner:
Kaufpreis:
600.000 €
Eigenkapital:
600.000 €
Monatliche Rate
0 €
Effektiver Jahreszins
0 %
Sollzinsbindung
10 Jahre
Beschreibung des Objekts
Lage
Rott ist der zweitgrößte Ortsteil der Gemeinde Roetgen in der Städteregion Aachen in NRW und liegt an der L238. Hier können Sie dem stressigen Alltag des Stadtlebens entkommen und umgeben von Wäldern zur Ruhe finden.
Kindergarten, Grundschule, Sport - und Freizeitmöglichkeiten, Lebensmittelgeschäfte, Ärzte befinden sich in unmittelbarer Nähe.
Entfernungen:
Aachen ca. 17 km / Roetgen ca. 5 km / Stolberg ca. 13 km / Eschweiler ca. 19 km /
Autobahn A44 ca. 9 km
Sonstige Angaben
Hinweise:
Bitte beachten Sie, dass dieses Angebot anhand der uns vom Eigentümer zur Verfügung gestellten Daten und Unterlagen erstellt wurde. Trotz aller Sorgfalt können wir für die Richtigkeit und Vollständigkeit der Angaben keine Gewähr übernehmen. Technische Funktionsprüfungen wurden durch uns nicht durchgeführt. Eine Haftung für die Richtigkeit oder Vollständigkeit der Angaben übernehmen wir daher nicht.
GELDWÄSCHE: Als Immobilienmaklerunternehmen sind wir nach § 2 Abs. 1 Nr. 14 und § 10 Abs. 3 Geldwäschegesetz (GwG) dazu verpflichtet, bei der Begründung einer Geschäftsbeziehung die Identität des Vertragspartners festzustellen und zu überprüfen. Hierzu ist es erforderlich, dass wir nach § 11 GwG die relevanten Daten Ihres Personalausweises festhalten (wenn Sie als natürliche Person handeln) – beispielsweise mittels einer Kopie. Bei einer juristischen Person benötigen wir eine Kopie des Handelsregisterauszugs, aus welchem der wirtschaftlich Berechtigte hervorgeht. Das Geldwäschegesetz sieht vor, dass der Makler die Kopien bzw. Unterlagen fünf Jahre aufbewahren muss.
Wir bitten um Verständnis, dass wir Informationen zu diesem Objekt nur erteilen, wenn Sie bei Ihrer Anfrage Ihre vollständige Postadresse und Telefonnummer angeben. Um die Privatsphäre unserer Kunden zu schützen, finden Besichtigungen nur über uns und nach vorheriger Terminabsprache statt.