- Bei Interesse bitten wir Sie, eine schriftliche Anfrage zu senden. Bitte sehen Sie von telefonischen Anfragen ab.-
Vermietet wird ab dem 01.03.2026 ein Bungalow mit einer Wohnfläche von rund 72 qm und pflegeleichtem Garten. Die Bildaufnahmen sind vor dem Einzug der Mieter erstellt worden. Die Immobilie ist derzeit noch bewohnt.
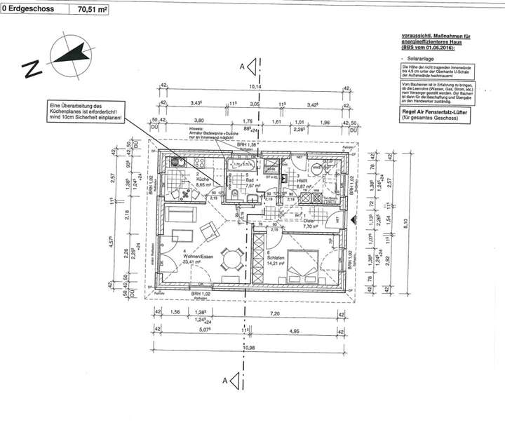
Dieses schöne Mietobjekt verfügt über ein Schlafzimmer, eine Küche, einen großen Hauswirtschaftsraum und ein Vollbad.
Sämtliche Räume sind mit Außenrollläden, Keramikfliesen und einer Fußbodenheizung ausgestattet. Die Fußbodenheizung ist in jedem Raum separat regulierbar.
Die Küche hat eine gute Größe von rund 8 m². Sie ist mit einem Cerankochfeld, einer Kühl-/Gefrierkombination und einer Geschirrspülmaschine ausgestattet.
Der große Wohn- und Essbereich bietet Ihnen viel Platz für eine Sofalandschaft. Von hier aus ist auch der Garten zugänglich. Hier finden Sie elektrische Außenrollläden.
Im Schlafzimmer lässt sich leicht ein Doppelbett und ein großer Kleiderschrank aufstellen.
Das Badezimmer ist gefliest und mit einer ebenerdigen Dusche sowie einer Badewanne und einem Handtuchheizkörper ausgestattet.
Verstauungsmöglichkeiten finden Sie in dem Hauswirtschaftsraum sowie auf dem Dachboden. Im HWR befindet sich zudem die Gasheizung sowie der Waschmaschinen- und Trockneranschluss. Für die Warmwassererzeugung wurde eine Solarthermieanlage auf dem Dach installiert.
Die Nettokaltmiete beläuft sich auf 850,00 € zzgl. 150,00 € für die Betriebskostenvorauszahlung. Für das Carport wird eine Miete in Höhe von 25,00 €/Monat erhoben.
Gas und Strom sind separat bei den jeweiligen Versorgern anzumelden.
Die Gartenpflege inkl. Winterdienst obliegt den Mietern.
Die Mindestmietdauer beträgt ein Jahr.
Die Haltung von Haustieren sowie Rauchen ist nicht gewünscht.
Gepflegter Bungalow in Epenwöhrden zu vermieten
25704 Epenwöhrden
Die vollständige Adresse der Immobilie erhalten Sie vom Anbieter.
Auf Karte anzeigen
Die vollständige Adresse der Immobilie erhalten Sie vom Anbieter.
Infos
| Haustyp | Einfamilienhaus |
|---|---|
| Wohnfläche ca. | 72 m2 |
| Grundstücksfläche | 400 m2 |
| Bezugsfrei ab | 01.03.2026 |
| Zimmer | 2 |
| Schlafzimmer | 1 |
| Badezimmer | 1 |
| Haustiere | Nein |
| Garage/Stellplatz | Carport |
| Anzahl Garage/Stellplatz | 1 |
Kosten
| Kaltmiete |
850 € |
|---|---|
| Nebenkosten | + 150 € |
| Heizkosten | keine Angabe |
| Gesamtmiete | 1.025 € (zzgl. Heizkosten) |
| Miete für Garage/Stellplatz | 25 € |
| Kaution o. Genossenschaftsanteile | 2550 |
Weiter mieten oder doch kaufen?
Wer in Miete wohnt, überweist dem Vermieter im Laufe der Jahre hohe Summen, die sich
auch in die eigenen vier Wände investieren lassen könnten.
Bausubstanz & Energieausweis
| Baujahr | 2019 |
|---|---|
| Objektzustand | Neuwertig |
| Heizungsart | Fußbodenheizung |
| Wesentliche Energieträger | Gas |
| Energieausweis | liegt vor |
| Energieausweistyp | Bedarfsausweis |
| Energieverbrauchskennwert | 73,0 kWh/(m²*a) |
| Energieeffizienzklasse | A |
73,0
kWh/(m²*a)
Energieeffizienzklasse A
- A+
- A
- B
- C
- D
- E
- F
- G
- H
- 0
- 25
- 50
- 75
- 100
- 125
- 150
- 175
- 200
- 225
- >250
Beschreibung des Objekts
Ausstattung
- ebenerdiges Wohnen
- Solarthermie für Warmwassererzeugung
- Einbauküche
- Geschirrspüler
- Kühl-/Gefrierkombination
- Vollbad
- Handtuchheizkörper
- Fußbodenheizung
- Außenrollläden
- Garten
- Carport
- Geräteschuppen
Lage
Dieser schöne Bungalow befindet sich in einer Nebenstraße in der rund 800 Einwohner großen Gemeinde Epenwöhrden. Epenwöhrden verfügt neben einem Kindergarten über eine freiwillige Feuerwehr, einen Friseursalon und über diverse weitere Gewerbeunternehmen. Auch das Vereinsleben kommt hier nicht zu kurz.
Die Gemeinde ist rund 3 Kilometer von der Stadt Meldorf entfernt. Meldorf verfügt über einen Bahnhof, Einkaufsmöglichkeiten, Schulen, Kindergärten, ein Schwimmbad sowie eine gute ärztliche Versorgung.
Büsum mit seinem schönen Strand und die Kreisstadt Heide erreichen Sie in ca. 20-30 Minuten.
Die A23 befindet sich in etwa 8 Kilometern Entfernung.
Sonstige Angaben
Alle vorstehenden Angaben beruhen auf Informationen des Eigentümers. Diese wurden durch die D&V Immobilien GmbH & Co. KG nicht geprüft. Es wird daher auch keine Haftung für deren Richtigkeit übernommen.
Eine Haftung für die Wohn- und Nutzflächenberechnung und baurechtliche Fragen seitens D&V Immobilien ist ausgeschlossen.
Grundriss
Grundriss
>
>
Adresse
25704 Epenwöhrden
Interessante Orte
Preis- und Lageinformationen
Preistrend für Bestandsimmobilien in Epenwöhrden