Auf dem Gelände, wo jetzt der Bredeney Park mit 47 Eigentumswohnungen entsteht, wohnte ab 1955 der hochgeschätzte Berthold Beitz mit seiner Familie.
Die zwischen ca. 103–233 Quadratmeter großen Wohnungen liegen an einer ruhigen Wohnstraße in Bredeney, dem exklusivsten Viertel Essens. Sie sind verteilt auf sieben Stadtvillen und verfügen durch ihre Plateaulage über weite Ausblicke auf den See und die bewaldeten Hänge. Ein privater Waldpark gehört ebenfalls zum Grundstück.
Die vom Bauhaus-Stil beeinflusste Architektur des Bredeney Parks folgt einer klaren, reduzierten Formensprache mit kubischen Gebäudekörpern und Flachdächern. Die Stadtvillen mit 5–8 Wohnungen verfügen über Terrassen oder Balkone, im Staffelgeschoss jeweils über eine Dachterrasse – für noch mehr fantastischen See- oder Waldblick.
Im Interieur setzt sich die reduzierte und qualitativ hochwertige Gestaltung fort: mit Raumhöhen von ca. 2,80 Meter, mit Mastersuiten in allen Wohnungen und Tageslichtbädern.
Heizung im Winter und Kühlung im Sommer erfolgen über Erdwärmepumpen, welche mit der Sonnenenergie der Fotovoltaikanlage betrieben werden. Der aktuellen Energiewende folgend sind die Dächer mit Solarthermie ausgestattet. Damit kann der Energiebedarf für die Warmwasserbereitung noch einmal deutlich reduziert werden. Die Dächer sind zudem teilweise begrünt.
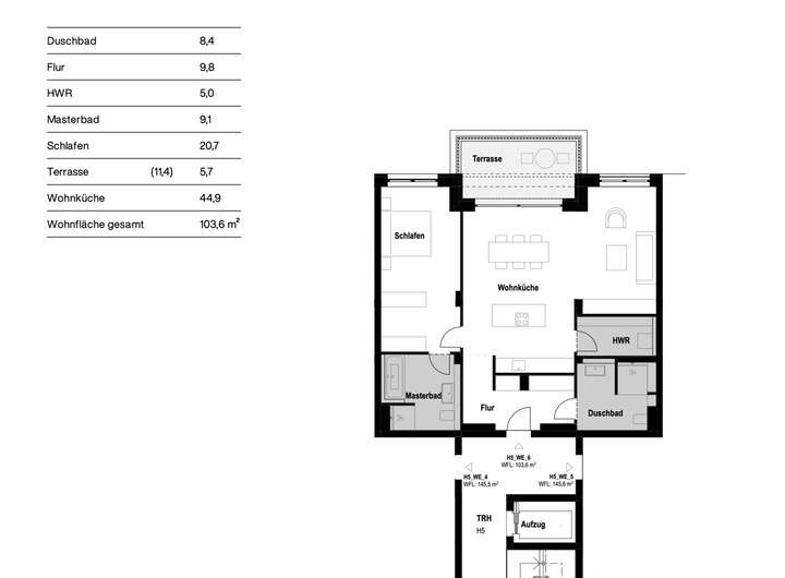
Aufteilung TYP B-3 und B-6:
- Die Wohnung verfügt über einen repräsentativen Wohn-/Essbereich, der zum Wohlfühlen einlädt sowie über private Rückzugsräume
- Angrenzend befindet sich das Hauptschlafzimmer mit Ankleide und einem Masterbad en suite
- Auf Wunsch kann ein weiteres Schlaf- oder Arbeitszimmer geschaffen werden
- Exklusives zweites Duschbad
- Genießen Sie vom Wohnbereich aus den Ausblick in den Privatpark
- Ein Terrassen- bzw. Balkonbereich sowie ein Hauswirtschaftsraum runden Ihr komfortables Wohnen ab
- Die Erdgeschosswohnungen verfügen über eine fantastische Terrassengröße von ca. 56 m² Grundfläche
Herrlicher Ausblick aus 3-Zimmer-Luxus-Wohnung mit Balkon
45133 Essen
Die vollständige Adresse der Immobilie erhalten Sie vom Anbieter.
Auf Karte anzeigen
Die vollständige Adresse der Immobilie erhalten Sie vom Anbieter.
Finanzierungszertifikat
In nur zwei Minuten zu Ihrem persönlichen Finanzierungszertifkat.
Infos
| Wohnungskategorie | Etagenwohnung |
|---|---|
| Etage | 1 von 3 |
| Wohnfläche ca. | 103 m2 |
| Bezugsfrei ab | Frühjahr 2026 |
| Zimmer | 3 |
| Schlafzimmer | 2 |
| Badezimmer | 2 |
| Garage/Stellplatz | Tiefgarage |
| Anzahl Garage/Stellplatz | 1 |
Kosten
| Kaufpreis |
740.000 € |
|---|---|
| Preis für Garage/Stellplatz | 35.000 € |
| Provision | Nein |
Finanzierungsrechner:
Kaufpreis:
600.000 €
Eigenkapital:
600.000 €
Monatliche Rate
0 €
Effektiver Jahreszins
0 %
Sollzinsbindung
10 Jahre
Bausubstanz & Energieausweis
| Baujahr | 2026 |
|---|---|
| Objektzustand | Erstbezug |
| Qualität der Austattung | Luxus |
| Heizungsart | Fußbodenheizung |
| Wesentliche Energieträger | Erdwärme |
| Energieausweis | laut Gesetz nicht erforderlich |
Beschreibung des Objekts
Ausstattung
- Fantastischer See- oder Waldblick
- Großzügige Raumhöhen von ca. 2,80 m
- Bodentiefe Fenster
- Hebe-Schiebe-Türen zu den Freibereichen
- Fußbodenheizung und Kühlung in allen Wohneinheiten
- Hochwertige Bodenbeläge aus Holzparkett und Feinsteinzeug
- Praktischer Hauswirtschaftsraum
- Alle Wohnungen barrierefrei geplant
- Natürlich belüftete Tiefgarage mit 95 großzügigen Pkw-Stellplätzen
- Vorrüstung für E-Auto-Ladesäulen (11 kW-Leistung)
- Fahrradräume im Untergeschoss jedes Hauses mit Lademöglichkeit für E-Bikes
- Abstellräume im Untergeschoss für jede Wohnung
Lage
EINFACH SCHÖN - LEBEN IN BREDENEY
Der Essener Stadtteil Bredeney liegt im südlichen Ruhrgebiet an den Ruhrhöhen, wo der Westenhellweg zum Ruhrtal übergeht. Der großflächige Stadtwald auf den Ruhrhöhen grenzt im Osten an Bredeney, der weiter nördlich durch den Kruppwald fortgesetzt wird. Im Süden liegt der Baldeneysee, der infolge einer Aufstauung der Ruhr entstanden ist. Er ist der größte der sechs Ruhrstauseen – und die natürliche Grenze Bredeneys zu den Vierteln Werden und Fischlaken.
Für die Besorgungen des täglichen Bedarfs bieten Geschäfte und Boutiquen entlang der Bredeneyer- und der Zeunerstraße ein breites Angebot und laden zum Bummeln und Verweilen ein. Auch eine Vielzahl an Cafés und Restaurants – ob griechisch, italienisch, japanisch, international oder deutsch – gibt es in dem beliebten Essener Stadtteil Bredeney.
Für Familien mit Kindern stehen verschiedene Kindergärten, zwei Grundschulen und zwei Gymnasien im Stadtteil zur Verfügung. Berufspendler profitieren von der direkten Anbindung an die A52 und somit an die A40 und die A3. Ohne Pkw geht es mit zahlreichen Bus- und Straßenbahnlinien sowie der S 6 an das gewünschte Ziel.
Rund um die Ruhrstauseen lassen sich lange Wanderungen machen. Für Golfsport gibt es herrliche Anlagen. Auf dem Baldeneysee wird Wassersport betrieben und es kann im Sommer gebadet werden. Außerdem verkehren die Schiffe der „Weissen Flotte“ als Ausflugsschiffe auf dem Baldeneysee.
Die Villa Hügel, die Ruine Isenburg, das Schloss Baldeney sowie die Baldeney- und die Klusenkapelle liegen im direkten Umfeld. Außerdem gibt es diverse Rad- und Wanderwege, wie etwa den Baldeneysteig, dessen 26,7 Kilometer lange Strecke rund um den See führt.
Die umliegenden Städte Gelsenkirchen und Duisburg (16 km), Wuppertal (20 km), Bochum (22,5 km), Düsseldorf (25 km) und Dortmund (35 km) sind über das gut ausgebaute Netz von Schnellstraßen unkompliziert zu erreichen. In nur 10 Minuten (Pkw) bzw. 20 Minuten (ÖPNV) wird der Essener Hauptbahnhof erreicht.
Sonstige Angaben
Denken Sie aktuell über den Verkauf Ihrer Immobilie nach? Kennen Sie denn bereits den Wert Ihrer Immobilie?
In nur wenigen Klicks erhalten Sie von uns per E-Mail eine erste Einschätzung zur aktuellen Wertermittlung Ihrer Immobilie.
Hier geht es direkt zu unserer kostenlosen Online-Wertermittlung
Grundriss
Grundriss
>
>
Adresse
45133 Essen
Interessante Orte
Preis- und Lageinformationen
Preistrend für Bestandsimmobilien in Bredeney