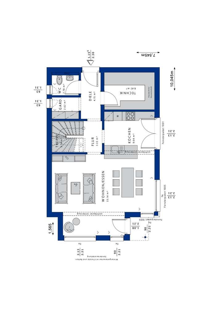
EVOLUTION 122 hat viele unterschiedliche Gesichter. Ganz modern ausgeführt in einer Variante mit hohem Kniestock, 38° Satteldach und vielen Fensterflächen oder ebenfalls zeitgemäß interpretiert als Flachdach-Planungsvorschlag mit einem Querhauselement und Terrassenbalkon. Es geht allerdings auch anders: mediterran mit Querhaus, Balkon und Erker. Ganz nach Ihrem Geschmack und in vielen weiteren Varianten. Denn auch mit einem Walmdach macht EVOLUTION 122 eine klasse Figur. Der intelligente Grundriss bietet auf 129 Quadratmetern alles für das perfekte Wohnerlebnis. Im Erdgeschoss dient der großzügige Wohn-/Essbereich mit angeschlossener Küche als Lebensmittelpunkt für die Bewohner. Dank großzügiger Fensterflächen sind alle Räume hell und lichtdurchflutet und bieten gleichzeitig ausreichend Stellfläche. Durch die platzsparende integrierte Treppe, die sowohl im Erd- als auch im Obergeschoss Basis für eine intelligente Raumaufteilung ist, erschließen sich die drei Schlafzimmer und das große Wellness-Bad im Obergeschoss. Auch hier begeistern große und lichtdurchflutete Zimmer.
Exklusives Wohnen in der Krakau - Ihr Traumhaus in der Wedemark
30900 Wedemark
Die vollständige Adresse der Immobilie erhalten Sie vom Anbieter.
Auf Karte anzeigen
Die vollständige Adresse der Immobilie erhalten Sie vom Anbieter.

Finanzierungszertifikat
In nur zwei Minuten zu Ihrem persönlichen Finanzierungszertifkat.
Infos
Haustyp | Einfamilienhaus |
---|---|
Etagenzahl | 2 |
Wohnfläche ca. | 129 m2 |
Grundstücksfläche | 550 m2 |
Zimmer | 4 |
Schlafzimmer | 3 |
Badezimmer | 1 |
Kosten
Kaufpreis |
452.913 € |
---|
Finanzierungsrechner:
Kaufpreis:
600.000 €
Eigenkapital:
600.000 €
Monatliche Rate
0 €
Effektiver Jahreszins
0 %
Sollzinsbindung
10 Jahre
Bausubstanz & Energieausweis
Baujahr | unbekannt |
---|
Beschreibung des Objekts
Ausstattung
Unsere Bien-Zenker Häuser werden hier in langjähriger Qualität "zur Ausstattung fertig" angeboten. Dazu gehören z. B.: PV-Anlage mit europäischen Modulen und Batteriespeicher von VARTA Außenwände im KFW 40 Energieeffizienzstandard 3-fach-verglaste Fenster im KFW 40 Energieeffizienzstandard elektrische Alu-Rollläden gedämmt im EG und OG inkl. Smart Home-Steuerung neueste Wohlfühlklimaheizung Plus - mit kontrollierter Be- und Entlüftung und Wärmerückgewinnung Kühlfunktion für die warmen Tage im Jahr Touchscreen, Einzelraumregelung und App-Steuerung freie Planung mit unserem Architekten Bodenplatte Um sich Ihren Traum zu verwirklichen, dürfen Sie noch den letzten Schliff anlegen: Die Malerarbeiten, Bodenbelagsarbeiten, Innentüren und Sanitärobjekte fehlen noch zum Glück. Auf Anfrage biete ich Ihnen diese Gewerke natürlich gerne noch mit an. Abschließend muss die Außenanlage noch erstellt werden. inkl. Grundstück inkl. Bodengutachten inkl. BlowerDoorTest zzgl. Baunebenkosten Möchten Sie Eigenleistung einbringen und dadurch Geld sparen, wir können auch einzelne Gewerke aus unserer umfassenden Leistung rausnehmen. Sprechen Sie mich an... Unsere herausragenden Merkmale auf einen Blick: - Über 120 Jahre Erfahrung - Alle Häuser "Made in Germany" - 30 Jahre Gewährleistung auf die Grundkonstruktion - 5 Jahre Gewährleistung auf alle anderen Elemente - Ausgezeichnet als: - Fairstes Preis-Leistungsverhältnis - Fairster Fertighausanbieter - Höchste Nachhaltigkeit und Verantwortung - Über 80.000 erfolgreich gebaute Häuser - Bien-Zenker Service-Center-App - Inkludierte Versicherungsleistungen: - Bauherrenhaftpflicht - Bau- und Unfallversicherung - Bauleistungsversicherung - Wohngebäudeversicherung - Baufinanzierungsschutz - Unterstützung bei der Finanzierung - Hilfe bei der Grundstückssuche - Individuelle Grundrissplanung - keine Standardhäuser - Komplette Abwicklung aus einer Hand - Festpreisgarantie für 18 Monate - Bestpreisgarantie: Wenn die Baupreise sinken, sinkt auch Ihr Hauspreis nachträglich - Bauzeitgarantie - Crefo-zertifiziert - BIEN ZENKER Bauherren-APP, um Sie stets auf dem aktuellen Stand zu halten Die Baunebenkosten müssen noch berücksichtigt werden. Gerne bespreche ich diese mit Ihnen, um Ihnen eine umfassende Kostensicherheit zu bieten und böse Überraschungen zu vermeiden! Zusätzlich biete ich Ihnen interessante Finanzierungsmöglichkeiten an und unterstütze Sie bei der Beantragung aller verfügbaren Fördermittel! Gemeinsam mit unseren Architekten planen wir Ihr individuelles BIEN ZENKER-Haus, das perfekt auf Ihre Bedürfnisse zugeschnitten ist - kein "Haus von der Stange". Sind Sie interessiert? Zögern Sie nicht und rufen Sie uns gleich an, um einen Gesprächstermin zu vereinbaren. Sie können uns im BIEN ZENKER Musterhaus in Hannover besuchen, im Vertriebsbüro in Gütersloh vorbeischauen oder bequem von Ihrem Sofa aus per Videokonferenz teilnehmen.
Lage
Exklusives Wohnen in der Krakau - Ihr Traumhaus in der Wedemark! Willkommen zu Ihrem zukünftigen Zuhause in einem der schönsten Wohngebiete der Wedemark - der Krakau. Hier erwartet Sie eine einzigartige Kombination aus modernem Wohnkomfort, naturnaher Lage und einer hervorragenden Infrastruktur. Die Krakau gehört zweifellos zu den begehrtesten Wohnlagen in der Wedemark. Umgeben von malerischen Wäldern, Wiesen und Seen, bietet dieses Wohngebiet die perfekte Balance zwischen urbaner Lebensqualität und ländlicher Idylle. Durch die hervorragende Verkehrsanbindung sind Sie in wenigen Minuten sowohl in der Wedemark als auch in Hannover, was sowohl für Berufspendler als auch für Familien mit Kindern ein großer Vorteil ist. Einkaufsmöglichkeiten, Schulen, Kindergärten und Sportvereine sind bequem erreichbar und sorgen für eine optimale Lebensqualität. Freizeit und Erholung: Die Umgebung der Krakau bietet zahlreiche Freizeitmöglichkeiten für die ganze Familie. Spaziergänge und Fahrradtouren entlang der grünen Wege und Seen sind beliebte Aktivitäten, die Ihnen hier zur Verfügung stehen. Auch der nahegelegene Naturpark Steinhuder Meer ist ein Paradies für Naturliebhaber und Wassersportler. Investieren Sie in Ihre Zukunft und sichern Sie sich jetzt Ihr Traumhaus in der Krakau, Wedemark. Lassen Sie sich von dieser außergewöhnlichen Wohnlage begeistern und kontaktieren Sie uns für weitere Informationen und eine persönliche Besichtigung. Wir freuen uns darauf, Sie bei der Verwirklichung Ihres Wohntraums zu unterstützen!
Weitere Dokumente
Test Focus Money 2021Grundriss
8601-904-7-g
>

8602-904-6-g
>

Adresse
30900 Wedemark
Interessante Orte
Preis- und Lageinformationen
Preistrend für Bestandsimmobilien in Wedemark