In Bestlage von Pfullingen, bieten wir im Auftrag dieses Haus an. Die Lage ist etwas ganz besonderes. Das gilt auch für das große Grundstück.
Vor allem ist die tolle Fernsicht etwas ganz besonderes.
Untergeschoss:
Hier befindet sich ein Naturbodenkeller, der Waschraum mit einer Gasheizung. Die Heizung muss erneurt werden. Es gibt noch zwei weitere Kellerräume. Im Außenbereich gibt es auch einen großen Schuppen.
Erdgeschoss:
Hier befindet sich das Wohnzimmer mit Balkon, ein weiteres Zimmer das individuell eingerichtet werden kann, die Küche und ein Bad.
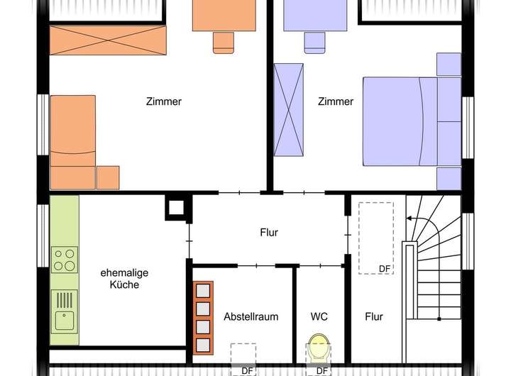
Obergeschoss:
Hier befinden sich 3 weitere Zimmer und ein weiteres Bad.
Zweifamilienhaus mit Potential in Top Aussichtslage - Renovierungsbedürftig
72793 Pfullingen
Die vollständige Adresse der Immobilie erhalten Sie vom Anbieter.
Auf Karte anzeigen
Die vollständige Adresse der Immobilie erhalten Sie vom Anbieter.
Finanzierungszertifikat
In nur zwei Minuten zu Ihrem persönlichen Finanzierungszertifkat.
Infos
| Haustyp | Einfamilienhaus |
|---|---|
| Wohnfläche ca. | 104 m2 |
| Nutzfläche | 43 m2 |
| Grundstücksfläche | 666 m2 |
| Zimmer | 4 |
| Schlafzimmer | 3 |
| Badezimmer | 2 |
Kosten
| Kaufpreis |
528.000 € |
|---|---|
| Provision |
3,570 % inkl. ges. MwSt. |
Finanzierungsrechner:
Kaufpreis:
600.000 €
Eigenkapital:
600.000 €
Monatliche Rate
0 €
Effektiver Jahreszins
0 %
Sollzinsbindung
10 Jahre
Bausubstanz & Energieausweis
| Baujahr | 1955 |
|---|---|
| Objektzustand | Renovierungsbedürftig |
| Qualität der Austattung | Einfach |
| Heizungsart | Zentralheizung |
| Wesentliche Energieträger | Gas |
| Energieausweis | liegt vor |
| Energieausweistyp | Bedarfsausweis |
| Energieverbrauchskennwert | 480,5 kWh/(m²*a) |
| Energieeffizienzklasse | H |
480,5
kWh/(m²*a)
Energieeffizienzklasse H
- A+
- A
- B
- C
- D
- E
- F
- G
- H
- 0
- 25
- 50
- 75
- 100
- 125
- 150
- 175
- 200
- 225
- >250
Beschreibung des Objekts
Ausstattung
Das Haus ist ideal für Leute die Renovieren können. Aus diesem Haus kann ein Schmuckstück entstehen.
Vereinbaren Sie einen Termin um sich das Haus anzuschauen.
Lage
Pfullingen gehört zu den beliebtesten Wohnorten rund um Reutlingen. Die idyllische Lage zwischen Achalm und Albtrauf sowie die unmittelbare Nähe zu Reutlingen und Eningen verbinden hohe Wohnqualität mit kurzen Wegen zu Arbeitsplatz und Stadtleben. Pfullingen verfügt über mehrere Ausflugsziele und Naherholungsgebiete sowie ein großes kulturelles Angebot. Die Infrastruktur und Nahversorgung sind lückenlos und die verkehrliche Anbindung – sowohl mit PKW als auch mit ÖPNV – lässt keine Wünsche offen.
Sonstige Angaben
Sehr gute Lage
Tolle Fernsicht
Großes Grundstück
Sofort frei
Grundriss
Grundriss UG
>
>
Grundriss EG
>
>
Grundriss DG
>
>
Adresse
72793 Pfullingen
Interessante Orte
Preis- und Lageinformationen
Preistrend für Bestandsimmobilien in Pfullingen