In dieser modernen Doppelhaushälfte kann Ihre Familie sich voll entfalten.
Willkommen in Ihrem neuen Zuhause. Im Erdgeschoss erwartet Sie ein großzügiges Wohnzimmer, perfekt für gemütliche Abende miteinander. Die integrierte offene Küche lädt zum gemeinsamen Kochen ein. Die Terrasse ist ideal für entspannte Stunden im Freien geeignet. Ein Schlafzimmer bietet Ihnen den nötigen Komfort und Privatsphäre. Das Badezimmer und ein Hauswirtschaftsraum runden das Erdgeschoss ab.
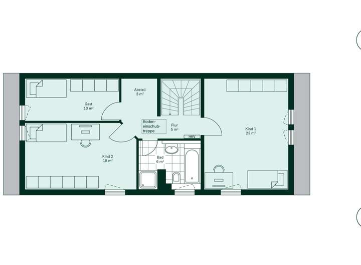
Über die Treppe gelangen Sie in das Obergeschoss, wo Ihnen drei weitere geräumige Zimmer zur Verfügung stehen. Ob als Kinder-, Gäste- oder Arbeitszimmer; diese hellen und Platz bietenden Räume lassen sich nach Belieben gestalten. Ein weiteres Bad ist hier ebenfalls zu finden, inklusive Badewanne und Dusche. Mit einer effizienten Fußbodenheizung und zwei Außenstellplätzen leben Sie hier in vollem Komfort.
Viel Freiraum mit offenem Wohnbereich und inklusive Grundstück
Mittelenden 6,
14621 Schönwalde-Glien
Auf Karte anzeigen
Finanzierungszertifikat
In nur zwei Minuten zu Ihrem persönlichen Finanzierungszertifkat.
Infos
| Haustyp | Doppelhaushaelfte |
|---|---|
| Wohnfläche ca. | 131 m2 |
| Nutzfläche | 5,91 m2 |
| Grundstücksfläche | 506 m2 |
| Bezugsfrei ab | Mitte 2026 |
| Zimmer | 5 |
| Schlafzimmer | 4 |
| Badezimmer | 2 |
| Garage/Stellplatz | Außenstellplatz |
| Anzahl Garage/Stellplatz | 2 |
Kosten
| Kaufpreis |
539.900 € |
|---|---|
| Provision | Nein |
Finanzierungsrechner:
Kaufpreis:
600.000 €
Eigenkapital:
600.000 €
Monatliche Rate
0 €
Effektiver Jahreszins
0 %
Sollzinsbindung
10 Jahre
Bausubstanz & Energieausweis
| Baujahr | 2026 |
|---|---|
| Objektzustand | Erstbezug |
| Qualität der Austattung | Gehoben |
| Heizungsart | Fußbodenheizung |
Beschreibung des Objekts
Ausstattung
- inklusive erschlossenem Grundstück
- Terrasse mit Garten
- offen gestaltete Wohnküche
- Tageslichtbad mit Dusche und Badewanne
- zusätzliches Duschbad mit Fenster im EG
- Handtuchheizkörper
- bodentiefe Fenster
- Fußbodenheizung
- pflegeleichter Designboden
- Rollläden
- zwei Außenstellplätze
- Luft-Wärmepumpe
- Glasfaseranschluss
- ruhige Lage
Lage
Am Wiesenweg hat die Natur das Sagen: Weite Landschaft, die das Gemüt beruhigt. Dabei liegen die neuen Häuser nur 4 km hinter der Berliner Stadtgrenze. Der Bahnhof Falkensee ist mit dem Auto in rund 12 Minuten erreichbar. Hier fahren mehrmals stündlich Züge nach Berlin.
Sonstige Angaben
*Aktion bis 31. Dezember 2025
Dachgeschossausbau geschenkt
Aufgrund der hohen Nachfrage verlängern wir die Aktion bis zum 31. Dezember 2025.
Entdecken Sie mehr Raum für Ihre Ideen – beim Kauf vom 19. September 2025 bis 31. Dezember 2025 ist der Studioausbau im Dachgeschoss inklusive. So wird aus dem oberen Stock ein gemütlicher Rückzugsort mit Platz für Hobbys, Arbeit oder Gäste. Ein Zuhause, das sich Ihren Wohnwünschen anpasst.
Adresse
Mittelenden 6, 14621 Schönwalde-Glien
Interessante Orte
Preis- und Lageinformationen
Preistrend für Bestandsimmobilien in Schönwalde-Glien