Zwischen See und Himmel
Das markante Hochhaus in Konstanz Petershausen hat in seiner Geschichte ein neues Kapitel aufgeschlagen: Durch die Umwandlung des ehemaligen Post- und Bürogebäudes in die modernen ODE LOFTS wird hier Raum geschaffen für komfortables Wohnen mit einem atemberaubenden Blick über die Dächer der Stadt, auf den Bodensee und bis zu den Alpen. Zusammen mit dem international tätigen Architekturbüro Sauerbruch Hutton aus Berlin wurde ein einzigartiges Projekt mit 98 Wohnungen entworfen, die ein einmaliges Wohngefühl versprechen.
Lichtdurchflutetes Wohnflair
Die hohen Innenräume werden zu modernen Lofts mit offenen Wohnbereichen ausgebaut. Somit bleibt die Grundstruktur des Gebäudes mit seinen runden Betonstützen und Decken mit offenen Unterzügen erhalten – dies gibt den Räumen durch ihre Weite eine besondere Wirkung. Großzügige Fensterfronten lassen das Tageslicht in die Räume strömen und schaffen ein Zuhause mit Offenheit, Helligkeit und einer wertigen Innenausstattung. Die geschwungenen Balkone erweitern den Wohnbereich nach außen und können größtenteils mit einer Schiebeverglasung zu ca. zwei Dritteln windgeschützt geschlossen werden.
Gemeinschaftliche Dachterrasse mit Ausblick
Eine Dachterrasse im 16. Obergeschoss ist für alle Bewohnerinnen und Bewohner des Hauses zugänglich und bietet einen atemberaubenden Ausblick. Genießen Sie von dort vielfältige Blicke in die Umgebung – den Bodensee, die historische Altstadt, die Insel Reichenau, die Berge und den Hegau.
Eine Ode an die Architektur
Das 16-stöckige Gebäude liegt zwischen Grünanlagen und Parks. Durch die Fassadengestaltung der ODE LOFTS mit hochwertigen Keramikscherben in unterschiedlichen Farbtönen bietet die Architektur des Gebäudes ein harmonisches Zusammenspiel mit seiner Umgebung. Die Umwandlung des Büro- zu einem Wohngebäude ist nicht nur ein beeindruckendes Beispiel für modernes Wohnen, sondern auch ein wichtiger Beitrag für eine nachhaltigere und lebenswertere Stadt. Durch die Umnutzung vorhandener Bausubstanz und der Wiederverwendung bestehender Ressourcen wird nicht nur neuer Wohnraum geschaffen, sondern es werden gleichzeitig Baumaterial und dadurch auch Emissionen eingespart.
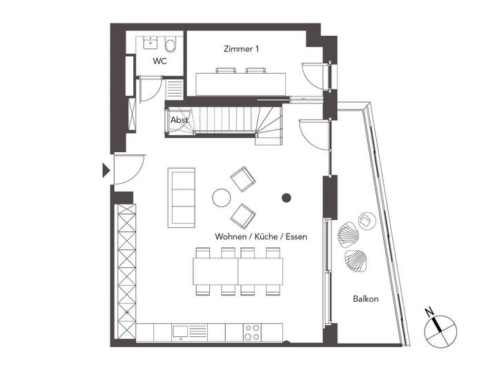
Exklusive 5-Zi-Maisonetteloft mit Blick auf den See und die Berge - 149
Moltkestraße 8,
78467 Konstanz
Auf Karte anzeigen
Finanzierungszertifikat
In nur zwei Minuten zu Ihrem persönlichen Finanzierungszertifkat.
Infos
| Wohnungskategorie | Maisonette |
|---|---|
| Etage | 14 von 15 |
| Wohnfläche ca. | 174 m2 |
| Bezugsfrei ab | voraussichtlich 1. Quartal 2026 |
| Zimmer | 5 |
| Schlafzimmer | 4 |
| Badezimmer | 2 |
| Garage/Stellplatz | Tiefgarage |
| Anzahl Garage/Stellplatz | 75 |
Kosten
| Kaufpreis |
0 € |
|---|---|
| Preis für Garage/Stellplatz | 40.000 € |
| Provision | Nein |
Finanzierungsrechner:
Kaufpreis:
600.000 €
Eigenkapital:
600.000 €
Monatliche Rate
0 €
Effektiver Jahreszins
0 %
Sollzinsbindung
10 Jahre
Bausubstanz & Energieausweis
| Letzte Sanierung | 2023 |
|---|---|
| Objektzustand | Erstbezug nach Sanierung |
| Qualität der Austattung | Gehoben |
| Heizungsart | Fußbodenheizung |
| Wesentliche Energieträger | Nahwärme |
Beschreibung des Objekts
Ausstattung
In den ODE LOFTS entstehen 98 Wohnungen sowie attraktive Maisonettewohnungen. Die individuellen Grundrisse bieten einen unvergleichlichen Wohnkomfort.
Mit Materialien wie recyceltem Aluminium, einer Holzfassade mit umweltfreundlichem Anstrich sowie Keramikfliesen mit verschiedenfarbigen Glasuren wird auf eine naturnahe Haptik und Optik gesetzt. Die Grundsubstanz des ursprünglichen Gebäudes wurde, soweit möglich, beibehalten – somit ergibt sich eine CO2-Bilanz mit einer Einsparung von über zwei Dritteln im Vergleich zu einem Abriss und Neubau des Gebäudes. An der vorhandenen Stahlkonstruktion auf dem Dach werden Photovoltaikelemente installiert. Der erzeugte Strom kann zur Deckung des Energiebedarfs der Gemeinschaftsbereiche und der Aufzüge genutzt werden. Der Einsatz von Luft-/Wärmepumpen sorgt für eine umweltfreundliche Wärmeversorgung des Gebäudes. Durch die Verwendung von wertigen Fenstern und hohen Dämmwerten in der Gebäudehülle wird der Wärmebedarf der Wohnung gesenkt.
Die Innenräume der Wohnungen sind gleichermaßen weitläufig und komfortabel. Aufgrund der sorgfältig ausgewählten Materialien entsteht ein elegantes sowie modernes Lebensgefühl. Die großen Betonsäulen sowie die Träger geben Ihrem Wohnraum einen Rahmen im puristischen Stil. Zusammen mit Naturmaterialien wie Holzböden in hellen Farbtönen ergibt sich ein harmonisches Ambiente.
Die Ausstattungsdetails:
- Loftartiges Raumgefühl mit sichtbarer Rippendecke
- Deckenhöhen Wohngeschosse ca. 2,65 m bis 3,15 m
- Lichtdurchflutetes Wohnambiente durch großflächige Verglasung
- Sämtliche Wohnungen durchgängig stufenlos erreichbar (ausgenommen 15. Obergeschoss)
- Teilweise barrierefreie Wohnungen nach §35 (1) LBO
- Fertigparkett Schiffsboden Eiche Einstab in den Wohn- und Schlafräumen
- Fußbodenheizung / -temperierung, Reduzierung der Wohnraumtemperatur um ca. 2 Grad zur Außentemperatur im Sommer möglich
- Handtuchheizkörper im Bad
- Bodengleich geflieste Duschen
- Balkonbeläge aus heimischer Lärche mit Silberpatina (2. bis 14. OG) bzw. Betonplatten (15. und 16. OG)
- Schiebeverglasungen an den überdachten Balkonen als Windschutz für bis zu 60 % der Balkonlänge
- Zipmarkisen mit elektrischem Antrieb als Sonnenschutz
- Video-Gegensprechanlage mit Farbmonitor
- Telefon-, Internet- und TV-Versorgung über Glasfaserleitungsnetz der Deutschen Telekom
- Photovoltaik-Anlage und Fernwärmeversorgung im Contracting-Verfahren
- Dachterrasse im 16. OG zur gemeinsamen Nutzung
- Private Kellerräume im UG
- Gemeinschaftliche Fahrradräume im UG
- 75 Tiefgaragenstellplätze, vorbereitet für E-Mobilität
- Bike- und Carsharing direkt am Haus
Lage
Wohnen, wo andere Urlaub machen
Die malerische Landschaft des Bodensees ist weit bekannt. Von den ODE LOFTS erreichen Sie in weniger als 10 Gehminuten den Bodensee. Zudem gibt es in der Hochschulstadt immer Neues zu entdecken. Beispielsweise beim Seenachtsfest mit seinem spektakulären Feuerwerk, an der Fasnacht oder bei verschiedenen Festivals. Im Theater, der Philharmonie, zwei Kinos, einigen Museen und Galerien gibt es ein breites kulturelles Angebot. Zahlreiche Cafés, Restaurants und Geschäfte bieten ein mediterranes Flair.
Alle zentralen Punkte in unmittelbarer Nähe
Der Stadtteil Petershausen liegt nördlich des Rheins. Hier findet sich eine bunte Mischung aus kleinen Geschäften, Restaurants, Büros und viele der Konstanzer Schulen. Ein Wochenmarkt bietet – direkt nebenan auf dem Sankt-Gebhard-Platz – zweimal wöchentlich regionales Gemüse, Käse, Fisch und andere Spezialitäten an. Im Seerhein-Einkaufszentrum gibt es zudem zahlreiche Einkaufsmöglichkeiten, auch ein Ärztezentrum ist hier enthalten. Das städtische Krankenhaus ist ebenfalls fußläufig zu erreichen und bietet eine umfassende medizinische Versorgung. Dieser Facettenreichtum macht Petershausen zu einem bunten und abwechslungsreichen Lebensort.
Wassertaxis und Ausflugsdampfer
Konstanz ist eine Fahrradstadt. Alle wichtigen Punkte lassen sich hervorragend mit dem Fahrrad erreichen und erkunden. Zudem ist die Stadt gut an die regionale sowie überregionale Infrastruktur angebunden. Mit dem öffentlichen Nahverkehr erreicht man die verschiedenen Stadtteile mit dem Bus sowie weiter entfernte Ziele per Bahn. Die Autobahnzufahrten sind nur wenige Kilometer entfernt, und der internationale Flughafen in Zürich ist mit der Bahn in einer Stunde erreichbar. Ein Highlight sind die Wege, die man auf dem Wasser zurücklegen kann. Ein Katamaran verbindet Konstanz mit Friedrichshafen, eine Autofähre mit Meersburg, und einige Personenschiffe verkehren zwischen den Städten sowohl am deutschen als auch am Schweizer Ufer.
Sonstige Angaben
Unser Vertriebspartner steht Ihnen für persönliche Beratungsgespräche und Besichtigungen zur Verfügung, um Sie über die Loft-Apartments zu informieren und Ihre Fragen zu beantworten.
Kontaktieren Sie uns direkt und vereinbaren Sie einen individuellen Termin zu einem für Sie passenden Zeitpunkt.
Die Vertriebs-Lounge befindet sich direkt am Hochhaus (Moltkestraße 4, 78467 Konstanz - die Zufahrt erfolgt über die Jahnstraße)
Bitte beachten Sie, dass das Betreten der Baustelle aus Sicherheitsgründen ohne unseren Vertriebspartner nicht gestattet ist.
Weitere Dokumente
Expose_ODE LOFTS KONSTANZAdresse
Moltkestraße 8, 78467 Konstanz
Interessante Orte
Preis- und Lageinformationen
Preistrend für Bestandsimmobilien in Konstanz
>
>