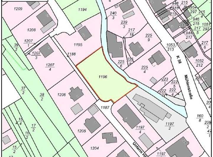
In dem idyllischen Nahbollenbach präsentieren wir Ihnen ein exklusives Baugrundstück mit einer großzügigen Fläche von 1.186 Quadratmetern.
Das Grundstück bietet vielfältige Möglichkeiten für den Bau Ihres Traumhauses.
Hier können Sie die Vorzüge eines ruhigen Wohngebiets genießen, ohne dabei auf die Annehmlichkeiten der Stadtnähe verzichten zu müssen.
Die Nähe zur Natur und die Größe des Grundstücks eröffnen Ihnen zahlreiche Freizeitmöglichkeiten im Freien. Ob Sie einen großen Garten anlegen, Ihre eigenen Gemüsebeete pflegen oder einfach nur die Ruhe und das Bachrauschen genießen möchten, dieses Grundstück bietet einiges, was das Herz begehrt.
Die Anbindung an die umliegenden Ortschaften und Städte ist hervorragend, so dass Sie alle erforderlichen Einrichtungen und Dienstleistungen in kurzen Fahrminuten erreichen können. Dieses Baugrundstück in Nahbollenbach ist die perfekte Gelegenheit, Ihre Wohnträume wahr werden zu lassen. Zögern Sie nicht und kontaktieren Sie uns noch heute, um weitere Informationen zu erhalten.
Wir bitten um Ihr Verständnis, dass wir nur Anfragen mit vollständig ausgefüllten Kontakt- und Adressdaten beantworten können.
Sonstiges:
Bei Abschluss eines notariellen Kaufvertrages ist eine Maklercourtage in Höhe von 3,57 % inkl. ges. MwSt., bezogen auf den vereinbarten Kaufpreis, verdient und fällig und vom Käufer an die Vereinigte Volksbank Raiffeisenbank eG. zu zahlen, die hierdurch einen unmittelbaren Zahlungsanspruch gegenüber dem Käufer erhält. Alle Angaben über diese Immobilie beruhen auf Informationen, die uns der Auftraggeber zur Verfügung gestellt hat. Für die Richtigkeit, Aktualität und Vollständigkeit dieser Angaben übernehmen wir keine Gewähr. Irrtum und Zwischenverkauf vorbehalten.
Super gelegenes Baugrundstück
55743 Idar-Oberstein
Die vollständige Adresse der Immobilie erhalten Sie vom Anbieter.
Auf Karte anzeigen
Die vollständige Adresse der Immobilie erhalten Sie vom Anbieter.
Finanzierungszertifikat
In nur zwei Minuten zu Ihrem persönlichen Finanzierungszertifkat.
Infos
| Vermarktungsart | Kaufen |
|---|---|
| Grundstücksfläche | 1.186 m2 |
Kosten
| Miete pro Jahr |
50.000 € |
|---|---|
| Provision |
3,57 % inkl. MwSt |
Finanzierungsrechner:
Kaufpreis:
600.000 €
Eigenkapital:
600.000 €
Monatliche Rate
0 €
Effektiver Jahreszins
0 %
Sollzinsbindung
10 Jahre