Eine Seltenheit an Grundstücksgröße und großzügiges Wohnen
bietet dieses Anwesen in Mainz Bretzenheim.
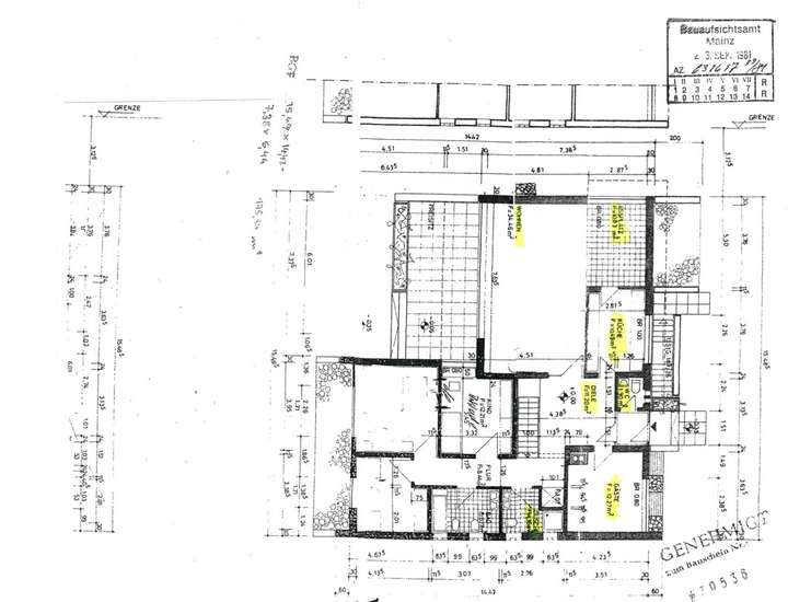
Im Erdgeschoss dieses Hauses befinden sich beim Betreten ein
Gästezimmer/Büro und ein Raum in dem das Gäste-WC
vorgesehen ist. Weiter über den großen Flur links erreicht man das
Badezimmer, 2 Schlafzimmer, eines davon mit angrenzendem
Ankleidezimmer.
Rechts gelangt man in das einladende Wohnzimmer mit großer
Fensterfront und dem Kamin sowie dem Essbereich mit offener
hochwertiger Küche, die im Kaufpreis enthalten ist.
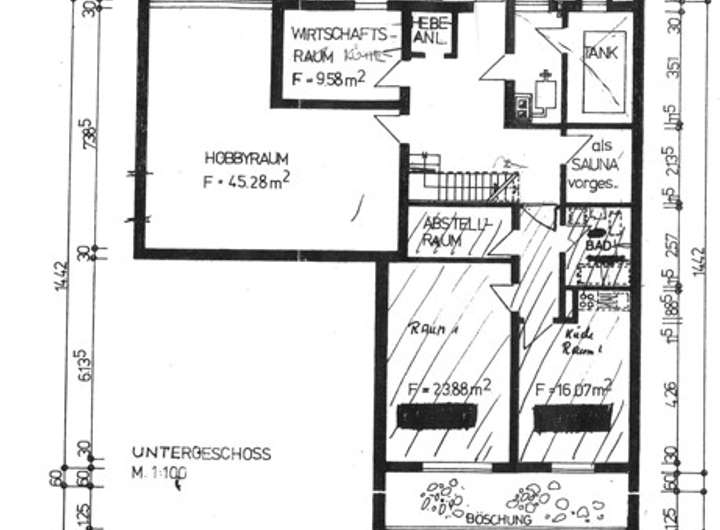
Im Untergeschoss befindet sich eine Einliegerwohnung mit
eigenem Eingang, die sich aktuell aufteilt in einem großen
Hobbyraum, einer Küche/Waschküche, dem Badezimmer mit
Dusche und einer Sauna sowie zwei weitere große Räume.
Daneben der Heizungsraum und Abstellraum.
Das Haus wurde in 2011 komplett renoviert, die Bäder neu
installiert und individuell gestaltet.
Der Garten bietet in jede Richtung genügend Platz für Entfaltung
und die große Terrasse ist einladend für ein Glas Wein am Abend.
Familienfreundlicher Bungalow mit 256 m² Wohnfläche und rd. 930 m² Garten
55128 Mainz
Die vollständige Adresse der Immobilie erhalten Sie vom Anbieter.
Auf Karte anzeigen
Die vollständige Adresse der Immobilie erhalten Sie vom Anbieter.
Finanzierungszertifikat
In nur zwei Minuten zu Ihrem persönlichen Finanzierungszertifkat.
Infos
| Haustyp | Einfamilienhaus |
|---|---|
| Etagenzahl | 2 |
| Wohnfläche ca. | 256 m2 |
| Grundstücksfläche | 933 m2 |
| Bezugsfrei ab | Max. 3 Monate nach KV |
| Zimmer | 7 |
| Schlafzimmer | 7 |
| Badezimmer | 4 |
| Garage/Stellplatz | Garage |
| Anzahl Garage/Stellplatz | 2 |
Kosten
| Kaufpreis |
1.100.000 € |
|---|---|
| Provision |
3,57 Wir führen Ihnen den/die Nachweis/Vermittlung das vorbezeichnete Objekt anzukaufen. Bei Abschluss eines Kaufvertrages beträgt unsere Nachweis-/Vermittlungsprovision jeweils 3,57 % vom Kaufpreis, inkl. der gesetzlichen Mehrwertsteuer und ist vom Käufer und Verkäufer zu bezahlen. Durch den/die Nachweis/Vermittlung und den Kaufvertragsabschluss ist die Provision verdient, fällig und an uns vom Verkäufer und Käufer zahlbar. |
Finanzierungsrechner:
Kaufpreis:
600.000 €
Eigenkapital:
600.000 €
Monatliche Rate
0 €
Effektiver Jahreszins
0 %
Sollzinsbindung
10 Jahre
Bausubstanz & Energieausweis
| Baujahr | 1971 |
|---|---|
| Objektzustand | Gepflegt |
| Qualität der Austattung | Gehoben |
| Heizungsart | Gas-Heizung |
| Wesentliche Energieträger | Gas |
| Energieausweis | liegt vor |
| Energieausweistyp | Bedarfsausweis |
| Energieverbrauchskennwert | 107,1 kWh/(m²*a) |
| Energieeffizienzklasse | D |
107,1
kWh/(m²*a)
Energieeffizienzklasse D
- A+
- A
- B
- C
- D
- E
- F
- G
- H
- 0
- 25
- 50
- 75
- 100
- 125
- 150
- 175
- 200
- 225
- >250
Beschreibung des Objekts
Lage
Bretzenheim ist ein Ortsbezirk der rheinland-pfälzischen Landeshauptstadt Mainz. Er ist heute mit rund 20.000 Einwohnern nach der Neustadt, Gonsenheim und der Oberstadt der viertgrößte Stadtteil von Mainz. Der Stadtteil verfügt über verschiedene, individuelle Wohnviertel. Mit dem alten Ortskern hat sich zumindest in Alt-Bretzenheim ein dörflicher Charakter bewahrt. Die Gegend rund um den Südring hingegen ist ein Viertel geprägt von Hochhäusern. Im Südwesten entstanden wiederum moderne Wohnquartiere mit Ein- und Mehrfamilienhäusern. Besonders bei Studenten ist Bretzenheim als Wohnort beliebt, da es unmittelbar an den Uni-Campus grenzt.
Sonstige Angaben
Gewährleistung
Dieses Exposé wurde mit Sorgfalt erstellt, für die Richtigkeit der Angaben kann jedoch keine Haftung übernommen werden.
Adresse
55128 Mainz
Interessante Orte
Preis- und Lageinformationen
Preistrend für Bestandsimmobilien in Bretzenheim
>
>