Zum Verkauf steht ein Mehrfamilienhaus mit viel Potential in Düsseldorf, genauer gesagt im beliebten Stadtteil Düsseltal. Das im Jahr 1957 erbaute Haus bietet eine Gesamtwohnfläche von ca. 390 m² und erstreckt sich über insgesamt fünf Etagen.
Das Haus ist vollständig unterkellert und verfügt über Terrassen sowie Balkone, die zum Teil zur Uhlandstraße und zusätzlich zum grünen Innenhof ausgerichtet sind. Die Außenflächen bieten den Bewohnern einen herrlichen Blick auf die Umgebung und alten Baumbestand. Besonders erwähnenswert sind die hohen Decken, die dem Gebäude einen besonderen Charme verleihen.
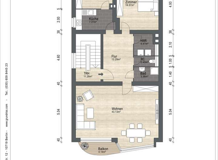
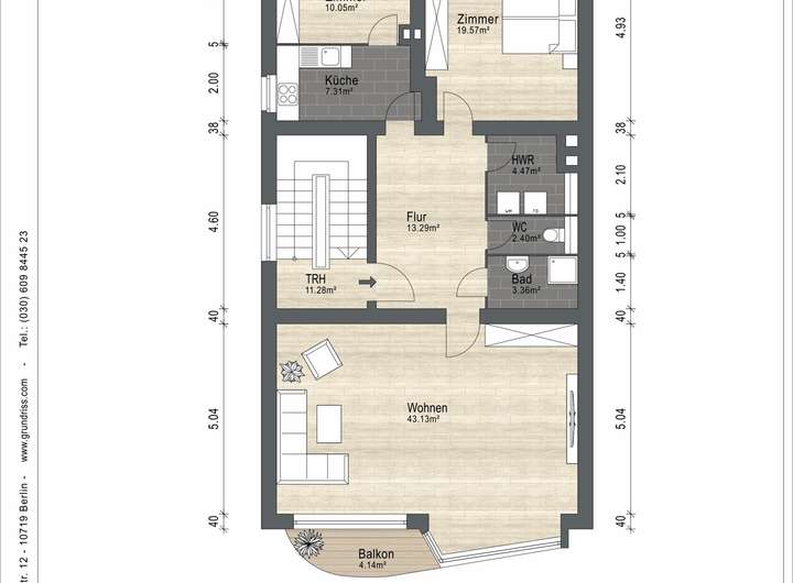
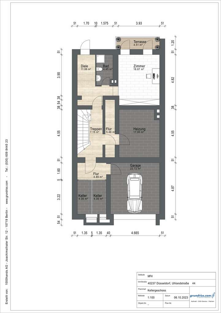
Die Immobilie besticht durch ihren charmanten architektonischen Stil der 50er Jahre. Vier der fünf Einheiten sind bewusst leerstehend, um dem neuen Eigentümer möglichst viel Flexibilität zu lassen. Aufteilung, Vermietung nach Sanierung oder Selbstnutzung in Kombination zur Vermietung lassen sich hier gut darstellen. Zusätzliches Flächenpotential besteht im Spitzboden, der mit der Dachgeschosseinheit verbunden ist, sowie im vorhandenen Keller.
Die Lage des Hauses ist äußerst attraktiv, da es sich in unmittelbarer Nähe des Zoos und des Hofgartens befindet. Die umliegende Infrastruktur ist hervorragend, mit Geschäften, Restaurants und öffentlichen Verkehrsmitteln in fußläufiger Entfernung.
Zusammenfassend handelt es sich bei diesem Mehrfamilienhaus um eine einmalige Gelegenheit für Investoren, die eine Immobilie mit großem Potential suchen. Zögern Sie nicht, uns für weitere Informationen oder eine Besichtigung zu kontaktieren.
Beste Lage Düsseltal mit vielen Möglichkeiten
40237 Düsseldorf
Die vollständige Adresse der Immobilie erhalten Sie vom Anbieter.
Auf Karte anzeigen
Die vollständige Adresse der Immobilie erhalten Sie vom Anbieter.
Finanzierungszertifikat
In nur zwei Minuten zu Ihrem persönlichen Finanzierungszertifkat.
Infos
| Haustyp | Mehrfamilienhaus |
|---|---|
| Etagenzahl | 4 |
| Wohnfläche ca. | 390 m2 |
| Grundstücksfläche | 354 m2 |
| Bezugsfrei ab | sofort |
| Zimmer | 14 |
| Badezimmer | 4 |
Kosten
| Kaufpreis |
1.850.500 € |
|---|---|
| Provision |
zzgl. 4,76 % Käuferprovision (inkl. 19 % MwSt.) |
Finanzierungsrechner:
Kaufpreis:
600.000 €
Eigenkapital:
600.000 €
Monatliche Rate
0 €
Effektiver Jahreszins
0 %
Sollzinsbindung
10 Jahre
Bausubstanz & Energieausweis
| Baujahr | 1957 |
|---|---|
| Heizungsart | Zentralheizung |
| Wesentliche Energieträger | Gas |
| Energieausweis | liegt vor |
| Energieausweistyp | Verbrauchsausweis |
| Energieverbrauchskennwert | 155,5 kWh/(m²*a) |
| Energieeffizienzklasse | E |
155,5
kWh/(m²*a)
Energieeffizienzklasse E
- A+
- A
- B
- C
- D
- E
- F
- G
- H
- 0
- 25
- 50
- 75
- 100
- 125
- 150
- 175
- 200
- 225
- >250
Beschreibung des Objekts
Ausstattung
- Garage
- Eine Einheit pro Etage
- Flexibilität durch hohen Leerstand
- Eine vermietete Wohnung (Kaltmiete 8.910 €/Jahr)
- Zusätzliches Potential im Spitzboden und Keller
- Holzfenster aus dem Jahr 2004
- Teilweise Kunststofffenster
- Balkone zu beiden Seiten
- Parkett - und Laminatboden
- Nur einseitig angebaut
- Garten zum Innenhof
- Teilweise hohe Decken
- Einbauschränke
Lage
Der Stadtteil Düsseltal liegt im Herzen der Landeshauptstadt und gehört zu den begehrtesten Wohnlagen Düsseldorfs. Er schließt unmittelbar an die Innenstadt an und bietet Infrastruktur par excellence: Drei S-Bahn- und sieben Straßenbahnlinien sind in wenigen Gehminuten erreichbar.
Düsseltal überzeugt durch viel Grün, das man hier unbehelligt vom Fluglärm in kleinen Parks und netten Cafés genießen kann. Repräsentative Einfamilienhäuser und gepflegte Mehrfamilienhäuser mit wenigen Wohneinheiten und großzügigen Grundrissen prägen das Bild des Stadtteils, der bei Düsseldorfern auch liebevoll "Zooviertel" genannt wird. Prachtvolle Alleestraßen mit Häusern im Jugendstil verleihen dem Stadtteil ein besonderes Flair.
Das Mehrfamilienhaus liegt nah an der Rethelstraße, die als eine der beliebtesten Einkaufsstraßen der Stadt gilt. Hier bietet sich ein ausgezeichnetes Angebot rund um den täglichen Bedarf. Es lohnt sich aber auch ein Blick in die kleineren und größeren Straßen des Viertels, die mit vielen inhabergeführten Geschäften und individuellen Restaurants überzeugen. Selbstverständlich sind auch Ärzte, Kindergärten und Schulen in wenigen Minuten erreichbar. Und für sportliche Freizeitaktivitäten am Wochenende liegen der Zoopark und der Grafenberger Wald quasi vor der Haustüre. Optimale Anbindung an das Autobahnnetz und die Nähe zum Düsseldorfer Flughafen gewährleisten zudem größtmögliche Mobilität.
Sonstige Angaben
Denken Sie aktuell über den Verkauf Ihrer Immobilie nach? Kennen Sie denn bereits den Wert Ihrer Immobilie?
In nur wenigen Klicks erhalten Sie von uns per E-Mail eine erste Einschätzung zur aktuellen Wertermittlung Ihrer Immobilie.
Hier geht es direkt zu unserer kostenlosen Online-Wohnmarktanalyse: WWW.IMMOBILIEN-BOECKER.DE/WERTANALYSE
Grundriss
Grundriss KG
>
>
Grundriss EG
>
>
Grundriss 1.OG
>
>
Grundriss 2.OG
>
>
Grundriss DG
>
>
Lageplan
>
>
Lageplan
>
>
Adresse
40237 Düsseldorf
Interessante Orte
Preis- und Lageinformationen
Preistrend für Bestandsimmobilien in Düsseltal