In bester Lage in Rechlin Nord befindet sich dieses letzte unbebaute Grundstück mit einer Fläche von 754 m², nur einen kurzen Fußweg vom herrlichen Müritzufer entfernt. Badestrände sind ebenfalls in fußläufiger Entfernung erreichbar. In der nahegelegenen Marina mit etwa 400 Liegeplätzen findet jedes Boot sicher seinen Platz. Rechlin Nord besitzt Inselcharakter und liegt direkt an der Großen Müritz. Das Grundstück ist vollständig mit Baum- und Buschbestand bewachsen und bietet somit einen ersten Kaminholzbestand. Es liegt bereits ortsüblich erschlossen in einem kleinen, in den letzten Jahren gewachsenen Wohngebiet und gehört zum B-Plan-Gebiet
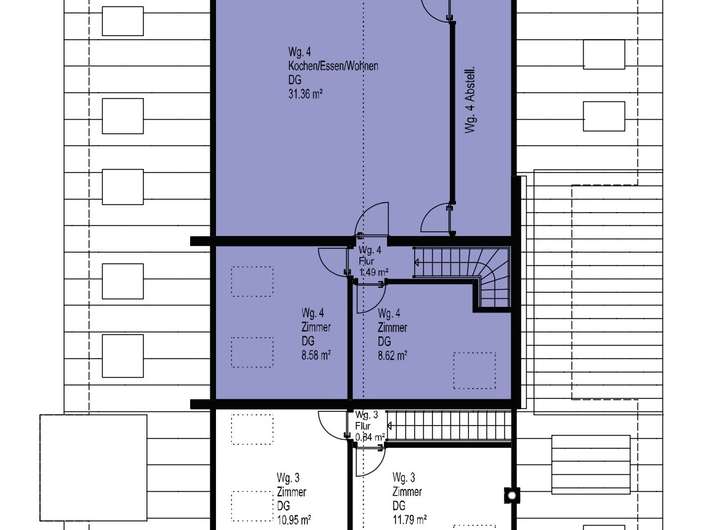
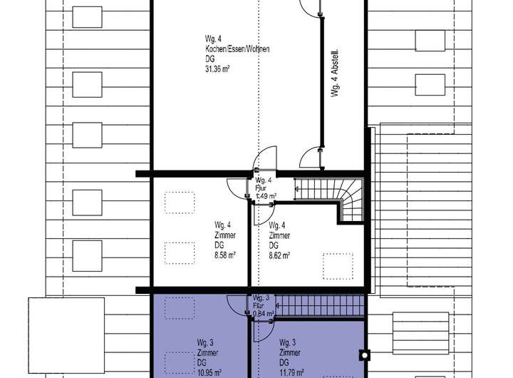
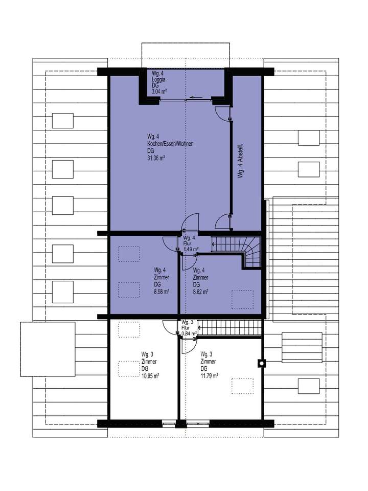
Nr. 2. Eine Besonderheit dieses Grundstücks ist die bereits erteilte Baugenehmigung für ein Mehrfamilienhaus mit mehreren einzelnen Apartments. Die dafür eingereichten Grundrisse und Ansichten wurden vom Bauatelier Deutscher erstellt und dienen als beispielhafte Planung, wie das Grundstück bebaut werden könnte. Diese Grundrisse bieten eine klare Vorstellung davon, wie das Projekt realisiert werden kann, können jedoch selbstverständlich nach den individuellen Bedürfnissen angepasst werden. Alternativ besteht auch die Möglichkeit, das Grundstück mit einer individuell gestalteten Villa nach eigenen Plänen zu bebauen. Die vorliegende Planung sowie die erteilte Baugenehmigung sind Bestandteil des Kaufpreises. Das massive Wohnhaus mit 5 Wohnungen, von denen 2 Maisonettewohnungen sind, besitzt in Summe ca. 483 qm Wohnfläche. Alle Wohnungen wurden mit einer Gartenterrasse oder einem Balkon ausgestattet, der in eine eigene Richtung weist. Jede Wohnung hat einen individuellen Grundriss. Aus den Obergeschossen kann man bis zur Müritz schauen. Es wurde in zeitgemäßer Architektursprache entsprechend der Umgebungsbebauung geplant.
Baugrundstück in Top - Lage von Rechlin
17248 Rechlin
Die vollständige Adresse der Immobilie erhalten Sie vom Anbieter.
Auf Karte anzeigen
Die vollständige Adresse der Immobilie erhalten Sie vom Anbieter.
Finanzierungszertifikat
In nur zwei Minuten zu Ihrem persönlichen Finanzierungszertifkat.
Infos
| Vermarktungsart | Kaufen |
|---|---|
| Grundstücksfläche | 754 m2 |
| Verfügbar ab | 01.10.2023 |
Kosten
| Miete pro Jahr |
198.000 € |
|---|---|
| Provision |
6.0 % inkl. gesetzl. MwSt. |
Finanzierungsrechner:
Kaufpreis:
600.000 €
Eigenkapital:
600.000 €
Monatliche Rate
0 €
Effektiver Jahreszins
0 %
Sollzinsbindung
10 Jahre
Beschreibung des Objekts
Lage
Das Baugrundstück befindet sich in der Gemeinde Rechlin in der Region Südmüritz, einem staatlich anerkannten Erholungsort am wunderschönen Ostufer des größten Binnensees Deutschlands, der Müritz. Der Erholungsort liegt in unmittelbarer Nähe zum Müritz-Nationalpark, einem Paradies für Wassersportler und Naturliebhaber. Die zahlreichen Rad- und Wanderwege laden zu erholsamen Touren ein. Auch kulturell hat die Region Südmüritz viel zu bieten: Das Luftfahrttechnische Museum Rechlin sowie das etwa zwölf Kilometer entfernte malerische Örtchen Mirow mit dem 3-Königinnen-Palais laden zu einem Besuch ein. Rechlin Nord besitzt Inselcharakter und liegt an der Großen Müritz. Hier befinden sich schöne kleine Badestrände mit glasklarem Wasser – nur zwei Minuten zu Fuß vom Grundstück entfernt. Das macht dieses Grundstück besonders kostbar. In nur zwei Minuten Fußweg erreicht man zudem die Dorfkirche. In fußläufiger Entfernung (ca. 1 km) liegt die Marina Müritz mit Strand (inkl. Hundebadestrand), Bootsliegeplätzen und einer Boots- sowie Fahrradvermietung. Auch Bootsführerscheine können dort erworben werden. Diverse Wassersportmöglichkeiten, ausgewiesene Rad- und Wanderwege sowie Angelplätze sind in der Umgebung reichlich vorhanden. Im Jachthafen werden Restaurants und Livemusik geboten, was für eine lebendige Atmosphäre sorgt. Der Fleesensee, ein beliebtes Ziel für Golfer, ist in ca. 30 km Entfernung erreichbar. Wöchentliche Besuche von mobilen Bäckern und Fleischern ergänzen das lokale Angebot. Diverse Einkaufsmöglichkeiten, Supermärkte, Ärzte, ein Kindergarten, Grund- und Gesamtschulen sowie kleine Geschäfte befinden sich im ca. 3 km entfernten Rechlin-Süd. In ca. 30 km Entfernung gibt es ein städtisches Gymnasium. Der Flugplatz Müritz Airpark liegt nur etwa 6 km entfernt, und die Müritztherme ist in ca. 20 km erreichbar. Über die Bundesstraße 198 ist Rechlin gut mit der A 19 (Berlin–Rostock) sowie den Städten Neustrelitz und Mirow verbunden. Über Landesstraßen erreicht man die größeren Städte Röbel/Müritz und Waren (Müritz). Ein Regionalflugplatz in Lärz und zwei Yachthäfen in Rechlin und am Claassee mit insgesamt 400 Liegeplätzen ergänzen die gut ausgebaute Infrastruktur. Das Grundstück bietet zudem die Möglichkeit, unabhängig von Energiekonzernen oder -versorgern zu sein. Die Wärme für das Haus könnte selbst erzeugt werden, wobei das Kaminholz direkt aus dem Wald kommt. Dieses Grundstück könnte ein sicherer Zufluchtsort für die Familie werden. Das Grundbuch ist frei von Lasten.
Sonstige Angaben
Der Makler-Vertrag mit uns und/oder unserem Beauftragten kommt durch die Bestätigung der Inanspruchnahme unserer Maklertätigkeit in Textform zustande, wie z.B. insbesondere die Unterschrift des Suchkundenvertrages und/oder des Objekt-Exposés. Die Höhe der Courtage beträgt 6 % netto zuzüglich Umsatzsteuer in jeweils geltender Höhe derzeit also insgesamt 7,14 % des Kaufpreises einschließlich Umsatzsteuer und ist bei notariellem Vertragsabschluss verdient und fällig. Die Höhe der Bruttocourtage unterliegt einer Anpassung bei Steuersatzänderung. Die Courtage ist durch den/die Käufer/in zu zahlen. Grunderwerbssteuer, Notar- und Gerichtskosten trägt der Käufer.....
Grundriss
Grundriss Erdgeschoss (Que...
>
>
Grundriss Obergeschoss (Que...
>
>
Wohnung 1 EG (Quellenangabe...
>
>
Grundriss Dachgeschoss (Que...
>
>
Wohnung 2 EG (Quellenangabe...
>
>
Wohnung 3 OG (Quellenangabe...
>
>
Wohnung 3 DG (Quellenangabe...
>
>
Wohnung 4 OG (Quellenangabe...
>
>
Wohnung 4 DG (Quellenangabe...
>
>
Wohnung 5 OG (Quellenangabe...
>
>