Das Projekt wird nach KfW55 Standard schlüsselfertig erstellt.
Gebaut werden zwei Mehrfamilienhäuser mit insgesamt 15 Wohnungen in moderner Architektur. Dank der hochwertigen Bauweise als Effizienzhaus und der modernen Ausstattung sowie der Kombination aus Luft-Wasser-Wärmepumpe und Photovoltaikanlage profitieren Sie von außerordentlich geringen Heizkosten und einer klimaneutralen Zukunft für bessere Lebensqualität.
KfW-Effizienhaus 55:
- zukunftsorientiertes Energiekonzept
- das KfW-Effizienzhaus 55 benötigt nur 55 Prozent der Energie eines konventionellen Neubaus und ist daher besonders umweltfreundlich
- hohe Ansprüche an Energieeffizienz
Die zum Verkauf stehende, repräsentative Eigentumswohnung in einem modernen Mehrfamilienhaus erfüllt höchste Ansprüche an komfortables, exklusives und effizientes Wohnen in einer ruhigen und doch zentralen Lage in Schwäbisch Gmünd - Bettringen.
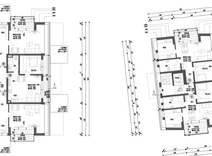
Raumaufteilung der Wohnung:
Obergeschoss:
- Wohnen/Essen ca. 16,15 m²
- Küche ca. 3,28 m²
- Schlafen ca. 14,22 m²
- Diele ca. 6,10 m²
- Bad ca. 4,61 m²
- Abst ca. 1,96 m²
- Balkon ca. 4,50 m² (50%)
Sonderwünsche hinsichtlich der Sanitärausstattung, Wandfliesen und Bodenbeläge sind nach Absprache möglich.
Zur Wohnung gehört zudem ein Kellerraum sowie die gemeinschaftliche Nutzung des Wasch-/Trockenraums und der Fahrradabstellflächen.
Der Energieausweis ist in Arbeit.
Wir freuen uns, Sie in einem Gespräch persönlich kennen zu lernen und Ihnen Ihren neuen Lebensmittelpunkt vorzustellen!
B5 - Neubau: 2,5-Zi. OG-Wohnung mit Balkon in GD-Bettringen
73529 Schwäbisch Gmünd
Die vollständige Adresse der Immobilie erhalten Sie vom Anbieter.
Auf Karte anzeigen
Die vollständige Adresse der Immobilie erhalten Sie vom Anbieter.
Finanzierungszertifikat
In nur zwei Minuten zu Ihrem persönlichen Finanzierungszertifkat.
Infos
| Wohnungskategorie | Etagenwohnung |
|---|---|
| Wohnfläche ca. | 50 m2 |
| Zimmer | 2,5 |
| Schlafzimmer | 1 |
| Badezimmer | 1 |
| Garage/Stellplatz | Tiefgarage |
| Anzahl Garage/Stellplatz | 1 |
Kosten
| Kaufpreis |
259.600 € |
|---|---|
| Preis für Garage/Stellplatz | 24.500 € |
| Provision | Nein |
Finanzierungsrechner:
Kaufpreis:
600.000 €
Eigenkapital:
600.000 €
Monatliche Rate
0 €
Effektiver Jahreszins
0 %
Sollzinsbindung
10 Jahre
Bausubstanz & Energieausweis
| Baujahr | 2025 |
|---|---|
| Qualität der Austattung | Gehoben |
| Heizungsart | Zentralheizung |
Beschreibung des Objekts
Ausstattung
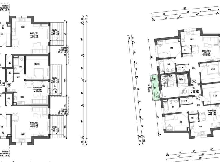
Projektdaten: Zwei Mehrfamilienhäuser mit insgesamt 15 Wohnungen in moderner Architektur
- Massive Bauweise und moderne Sanitärausstattung mit bodengleichen Duschen
- Wohnungsgrößen von 46,26 m² bis 87,68 m² Wohnfläche mit 2 ½ bzw. 3 ½ Zimmern
- Parkett und Fliesen, nach Absprache auch andere Bodenbeläge möglich
- Balkone, Terrassen sowie Gartenanteile je nach Wohnung
- Aufzüge in beiden Häusern, jeweils von der Tiefgarage bis ins Dachgeschoss
- gemeinsame Tiefgarage sowie zwei separate Außenstellplätze
- Überwiegend Tageslichtbadezimmer
- Ein großer Teil der Wohnungen mit separaten Gäste-WCs
- Großzügige, überwiegend bodentiefe Fensterflächen mit elektrischen Rollläden
- zusätzliche Abstellräume, Wasch-/Trockenräume sowie Fahrradabstellflächen im Untergeschoss
Lage
Der Schwäbisch Gmünder zweitälteste Stadtteil Bettringen (4,8 km östlich der Stadtmitte) liegt reizvoll vor der Kulisse der Schwäbischen Alb.
Die zentrale Lage bietet eine hervorragende Verkehrsanbindung an die Innenstadt und die nahegelegene Bundesstraße (B29) in Richtung Aalen und Stuttgart.
Trotz der fantastischen Anbindung sorgt Bettringen durch die zahlreichen Wiesenflächen und Waldabschnitte für ein ländliches und ruhiges Flair.
Mit seinen ca. 9.000 zählenden Einwohnern bietet Bettringen, neben mehreren Schulen bis hin zu einer großen Vielzahl an Einkaufsmöglichkeiten in engster Reichweite alles was das Herz begehrt. Ob Groß oder Klein, neben vielen Vereinsangeboten und unzähligen Veranstaltungen oder einem Spaziergang im Grünen – hier ist für jeden was dabei.
Schwäbisch Gmünd liegt im Zentrum Süddeutschlands in der Region Ostwürttemberg, 50 Kilometer von der Landeshauptstadt Stuttgart entfernt, im Ostalbkreis. Die Große Kreisstadt hat rund 60.000 Einwohner, die sich auf die Kernstadt und 11 Ortsteile verteilen.
Schwäbisch Gmünd ist die älteste Stauferstadt und Bindeglied der Region Ostwürttemberg zur Metropolregion Stuttgart.
Bauwerke aus 8 Jahrhunderten prägen die historische Innenstadt von Schwäbisch Gmünd. Der Marktplatz und der Münsterplatz zählen zu den schönsten Plätzen in Süddeutschland. Malerisch am Fuße der Schwäbischen Alb und der Dreikaiserberge gelegen, ist Schwäbisch Gmünd ein Ort mit Atmosphäre und südländischer Lebensqualität.Die Zentralität der Stadt Schwäbisch Gmünd für Arbeiten, Einkaufen und Bildung sowie die landschaftlich reizvolle Umgebung mit hohem Freizeitwert, garantieren eine hohe Wohnqualität.
Schwäbisch Gmünd besitzt eine sehr gute Infrastruktur. Über die B29 ist Schwäbisch Gmünd vierspurig an Stuttgart angebunden. In östlicher Richtung erfolgt ebenfalls über die B29 die Anbindung an die größte Stadt Ostwürttembergs -Aalen- und die A7. Zudem ist Schwäbisch Gmünd an das Schienennetz Stuttgart-Nürnberg angeschlossen, wodurch der Hauptbahnhof in Stuttgart in rund 35 Minuten erreichbar ist.
Weitere Informationen finden Sie unter https://www.schwaebisch-gmuend.de/startseite.html und unter https://www.schwaebisch-gmuend.de/bargau.html.
Sonstige Angaben
Alle Angaben sind vertraulich, nicht zur Weitergabe an Dritte bestimmt.
Grundrisse/Maßangaben sowie Flächenberechnungen sind ca. Angaben. Maße sind direkt am Bau vom Käufer selbst zu nehmen. Beigefügte Pläne dienen nur der Orientierung/Darstellung und sind nicht maßstabsgetreu.
Eine Besichtigung ist nach Absprache in unserer Begleitung möglich.
Gerne sind wir Ihnen auch bei Ihrer Finanzierung behilflich – sprechen Sie uns einfach an!
Auslassungen, Irrtümer und Zwischenverkauf vorbehalten.
Bitte haben Sie Verständnis, dass wir nur Objektanfragen bearbeiten können, bei denen uns Ihre vollständige Anschrift mit Rufnummer übersendet wird.
-----------------------------
Kommen wir ins Geschäft!
Sie möchten Ihre Immobilie vermieten oder verkaufen? Gerne übernehmen wir das für Sie!
Profitieren Sie von uns, rufen Sie für eine unverbindliche Beratung an: 07171-90 94 910. Wir freuen uns auf Sie!
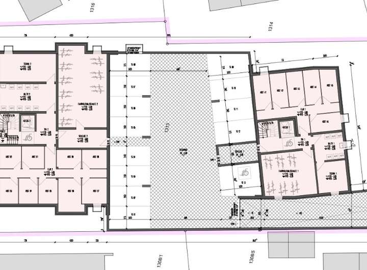
Grundriss
B5
>
>
Grundriss Wohnung B5
>
>
Adresse
73529 Schwäbisch Gmünd
Interessante Orte
Preis- und Lageinformationen
Preistrend für Bestandsimmobilien in Schwäbisch Gmünd