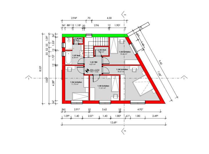
Zum Verkauf steht ein attraktives Grundstück in Hausen im Wiesental. Das Grundstück eignet sich ideal für den Bau eines Einfamilienhauses und bietet somit die perfekte Möglichkeit, Ihren individuellen Wohntraum zu verwirklichen. Die Lage in Hausen im Wiesental zeichnet sich durch ihre ruhige und dennoch zentrale Lage aus, was eine hohe Lebensqualität garantiert. Das Grundstück ist gut geschnitten und bietet ausreichend Platz für Ihr zukünftiges Zuhause. Momentan wird eine Bauvoranfrage für ein großes Einfamilienhaus mit ca. 140 m ² Wohnfläche eingereicht, beispielhafte Pläne sind beigefügt. Hier haben Sie die Freiheit, Ihre Vorstellungen in die Realität umzusetzen. Zögern Sie nicht und sichern Sie sich dieses attraktive Grundstück, um Ihren Wohnträumen den passenden Raum zu geben.
IMMORath.de - Günstiges Baugrundstück mit genehmigter Bauvoranfrage in Hausen im Wiesental
79688 Hausen im Wiesental
Die vollständige Adresse der Immobilie erhalten Sie vom Anbieter.
Auf Karte anzeigen
Die vollständige Adresse der Immobilie erhalten Sie vom Anbieter.
Finanzierungszertifikat
In nur zwei Minuten zu Ihrem persönlichen Finanzierungszertifkat.
Infos
| Vermarktungsart | Kaufen |
|---|---|
| Grundstücksfläche | 337 m2 |
| Erschließung | Teilerschlossen |
| Empfohlene Nutzung | Einfamilienhaus |
Kosten
| Miete pro Jahr |
88.000 € |
|---|---|
| Provision | Nein |
Finanzierungsrechner:
Kaufpreis:
600.000 €
Eigenkapital:
600.000 €
Monatliche Rate
0 €
Effektiver Jahreszins
0 %
Sollzinsbindung
10 Jahre
Beschreibung des Objekts
Lage
Das Grundstück befindet sich in der idyllischen Gemeinde Hausen im Wiesental in Deutschland. Es handelt sich dabei um ein Wohngrundstück, ideal für die Errichtung eines Eigenheims. Die Lage besticht durch eine Hanglage, die eine atemberaubende Aussicht auf die umliegende Landschaft bietet. Direkt hinter dem Grundstück erstreckt sich unberührte Natur, die zu Spaziergängen und Erkundungen einlädt. Hier können Sie die Ruhe und Schönheit der Natur in vollen Zügen genießen. Die Lage bietet somit eine perfekte Kombination aus ländlicher Idylle und dennoch guter Anbindung an die umliegenden Städte und Infrastruktur.
-
Sonstige Angaben
Sie haben Interesse und möchten zeitnah das Grundstück besichtigen? Kein Problem!
Wir sind überzeugt, dass Sie von der Einzigartigkeit und den Möglichkeiten, die dieses Grundstück bietet, begeistert sein werden. Zögern Sie nicht, uns für weitere Informationen oder zur Vereinbarung eines Besichtigungstermins zu kontaktieren.
Alle vom Eigentümer bereitgestellten Informationen werden als zuverlässig erachtet, aber nicht garantiert und sollten unabhängig verifiziert werden. Wir übernehmen keinerlei Gewähr für die Richtigkeit der Angaben.