Kaufen und gleich loslegen!
Dieses attraktive Grundstück mit vorliegender Baugenehmigung für zwei Einfamilienhäuser befindet sich in begehrter Lage von Neusäß-Täfertingen.
Das vordere Hausgrundstück wurde bereits verkauft – dort hat der Bau des Einfamilienhauses nach QNG-Standard bereits begonnen. Auf den Fotos der Anzeige können Sie dieses Objekt sehen. Für das hier angebotene Grundstück ist der Bau eines baugleichen Hauses mit ca. 153 m² Wohn- und Nutzfläche möglich. Die Planung überzeugt durch eine großzügige, durchdachte Raumaufteilung und modernes Wohnen.
Aktuell befinden sich auf dem Grundstück noch Garagen, die vor Baubeginn abgerissen werden müssen. Die Zufahrt ist rechtlich gesichert durch ein Geh- und Fahrrecht. Zusätzlich kann auf dem Grundstück eine eigene Garage errichtet werden, während an der Straße ein Stellplatz für das zweite Haus entsteht.
Die Lage ist hervorragend: Sie genießen die Vorteile eines großzügig geplanten Hauses kombiniert mit einem kleineren, pflegeleichten Garten – ideal für alle, die viel Wohnkomfort wünschen, aber weniger Zeit für aufwendige Gartenpflege investieren möchten.
Hier bietet sich Ihnen die seltene Gelegenheit, ein hochwertiges Einfamilienhaus auf einem bereits genehmigten Grundstück zu errichten. Nutzen Sie die Chance, Ihre Wohnträume in Neusäß-Täfertingen zu verwirklichen.
Rufen Sie uns einfach an und vereinbaren Sie gleich einen Besichtigungs- und Beratungstermin – wir zeigen Ihnen alles vor Ort und beantworten Ihre Fragen persönlich.
GELEGENHEIT - Grundstück mit Baugenehmigung für ein Einfamilienhaus in Top Lage
86356 Neusäß
Die vollständige Adresse der Immobilie erhalten Sie vom Anbieter.
Auf Karte anzeigen
Die vollständige Adresse der Immobilie erhalten Sie vom Anbieter.
Finanzierungszertifikat
In nur zwei Minuten zu Ihrem persönlichen Finanzierungszertifkat.
Infos
| Vermarktungsart | Kaufen |
|---|---|
| Grundstücksfläche | 292 m2 |
| Erschließung | Erschlossen |
| Empfohlene Nutzung | Einfamilienhaus |
| Bebaubar nach | wie Nachbarbebauung |
| Verfügbar ab | sofort |
Kosten
| Miete pro Jahr |
218.000 € |
|---|---|
| Provision | Nein |
Finanzierungsrechner:
Kaufpreis:
600.000 €
Eigenkapital:
600.000 €
Monatliche Rate
0 €
Effektiver Jahreszins
0 %
Sollzinsbindung
10 Jahre
Beschreibung des Objekts
Lage
Der älteste Ortsteil der Stadt Neusäß ist Täfertingen.
Die A8 Richtung München und Stuttgart, sowie die Therme Titania sind nur 3 Minuten entfernt.
Schulen und Einkaufsmöglichkeiten befinden sich in unmittelbarer Nähe.
Naturliebhaber schätzen die Nähe zum Schmuttertal, dem Loderberg und dem Naturpark Augsburg - Westliche Wälder.
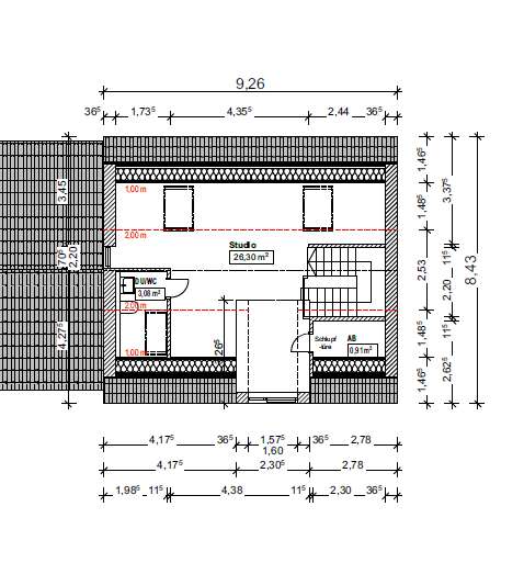
Grundriss
Ansicht Norden
>
>
Ansicht Osten
>
>
Ansicht Süden
>
>
Ansicht Westen
>
>
Dachgeschoss Haus 2
>
>
Erdgeschoss Haus 2
>
>
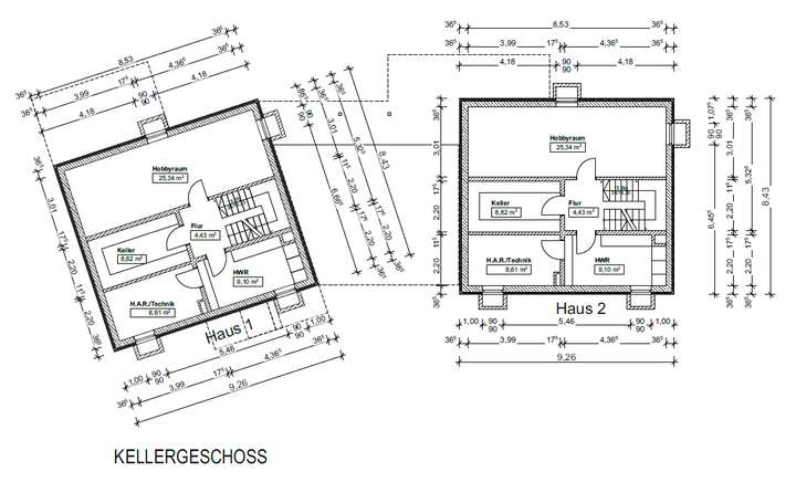
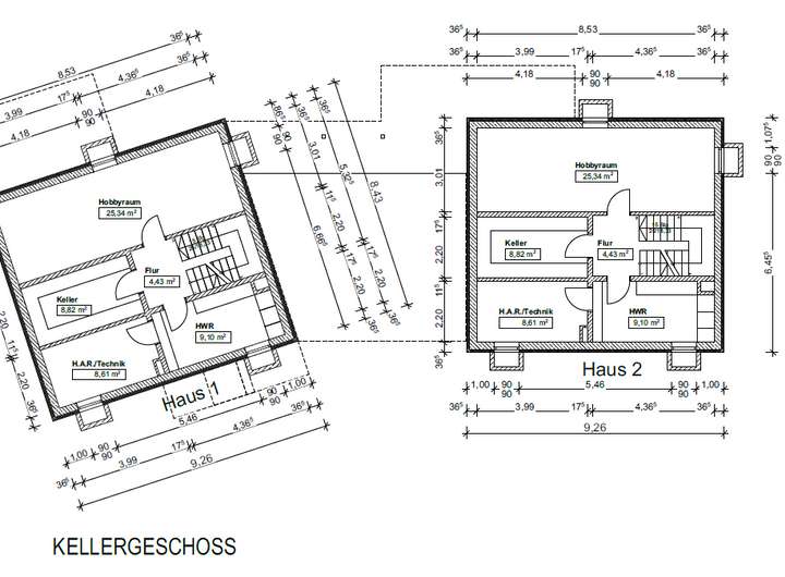
Kellergeschoss
>
>
Obergeschoss
>
>
Querschnitt A-A
>
>
Querschnitt B-B
>
>
Querschnitt C-C
>
>
Querschnitt D-D
>
>