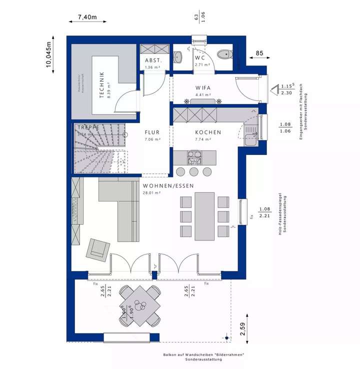
Wer glaubt, dass ein Doppelhaus keine individuellen Gestaltungsmöglichkeiten bietet, der irrt! Den besten Beweis tritt dieses moderne Fertighaus für zwei vierköpfige Familien an. Schon mit dem stylishen Pultdach, das im privaten Hausbau eher selten zum Einsatz kommt, setzen die zukünftigen Hausbesitzer ein klares Statement. Spannender Blickfang ist die Wandscheibe mit Holzverkleidung, auf die der Balkon gesetzt wurde. Wie ein Bilderrahmen setzt sie das Geschehen auf der Terrasse in Szene. Das Design wird im Holz-Fassadenspiegel auf der Eingangsseite aufgegriffen. So entsteht ein stimmiges Gesamtbild, das Lust auf einen Rundgang durch das Hausinnere macht. Über einen eingeschossigen Eingangs-Erker gelangt man in den Windfang, an den sich das Gäste-WC anschließt. Er führt in einen Flur, von dem die weiteren Räumlichkeiten abgehen. Im vorderen Bereich des Hauses wurden die Nebenräume, bestehend aus einer kompakten Abstellkammer, einem Technikraum und dem Treppenhaus, platziert. Auf der Gartenseite erstreckt sich der L-förmig angelegte Wohn-, Ess- und Kochbereich, wo sich das Familienleben hauptsächlich abspielt. Breite Fenstertüren fluten das weitläufige Raumensemble mit Tageslicht und bieten einen malerischen Ausblick ins Grüne. Im Sommer lassen sie sich weit öffnen, sodass die Terrasse und der angrenzende Garten zum Teil des Wohnzimmers werden. Die Küche besitzt einen eigenen Zugang zum Flur. So können die Wochenendeinkäufe ohne Umwege zum Kühlschrank gebracht werden. Die Privaträume befinden sich ganz klassisch im Obergeschoss. Dank des flach geneigten Pultdachs steht den zukünftigen Bewohnern die volle Wohnfläche zur Verfügung. Den Kopf muss hier garantiert niemand einziehen! Zum Entspannen und Wohlfühlen laden drei gut geschnittene Schlafzimmer sowie ein Wellnessbad mit Wanne und Dusche ein. Zwei der Schlafzimmer besitzen einen Zugang zum Balkon, der auf mehr als 16 m² viel Platz für vier gemütliche Sonnenliegen oder eine Sitzgruppe bietet. Ein halbhohes Wandelement sorgt für Privatsphäre.
Let´s do it! - Bauen mit Bien - Zenker!
21465 Reinbek
Die vollständige Adresse der Immobilie erhalten Sie vom Anbieter.
Auf Karte anzeigen
Die vollständige Adresse der Immobilie erhalten Sie vom Anbieter.
Finanzierungszertifikat
In nur zwei Minuten zu Ihrem persönlichen Finanzierungszertifkat.
Infos
| Haustyp | Doppelhaushaelfte |
|---|---|
| Wohnfläche ca. | 125 m2 |
| Grundstücksfläche | 330 m2 |
| Zimmer | 5 |
Kosten
| Kaufpreis |
641.238 € |
|---|
Finanzierungsrechner:
Kaufpreis:
600.000 €
Eigenkapital:
600.000 €
Monatliche Rate
0 €
Effektiver Jahreszins
0 %
Sollzinsbindung
10 Jahre
Bausubstanz & Energieausweis
| Baujahr | unbekannt |
|---|---|
| Bauphase | Haus in Planung (projektiert) |
| Qualität der Austattung | Gehoben |
Beschreibung des Objekts
Ausstattung
Das Wichtigste zuerst: Bei einem Bien-Zenker Fertighaus bedeutet "Schlüsselfertig" auch wirklich "Schlüsselfertig". Denn wir wissen, dass viele Bauherren einfach nur noch in ihr fertiges Haus einziehen möchten. Sie möchten sorgenfrei bauen. Sich um (fast) nichts kümmern müssen, weil Job und Familie keine Freiheiten für Eigenleistungen lassen, die handwerklichen Möglichkeiten keinen Handlungsspielraum bieten - oder ganz einfach: weil es viel mehr Spaß macht, den Spezialisten in allen Phasen des Hausbaus einfach nur zuzuschauen, wie Stufe für Stufe ein modernes, qualitativ hochwertiges und nachhaltiges Haus entsteht. Wir von Bien-Zenker kümmern uns bei der Ausbaustufe "Schlüsselfertig" um alles. Heißt: Unsere Bauherren erhalten die Hausschlüssel und ziehen in ihren neuen Lebensraum ein.
Zusammenfassend beschreiten Sie mit Ihrer Entscheidung für die Ausbaustufe "Schlüsselfertig" den bequemsten und einfachsten Pfad in Ihr neues Fertighaus. Bei einem schlüsselfertigen Bien-Zenker Haus bauen und montieren wir nicht nur das Haus - schnell und präzise werden in meist nur zwei Tagen die vorgefertigten Hauselemente auf Ihrem Grundstück montiert -, sondern erledigen Gewerk für Gewerk den gesamten Innenausbau. So können Sie sich entspannt auf Ihren Einzug in Ihr fertiges Haus freuen und die gesparte Zeit in Planungen unter anderem für die Zeit nach dem Einzug nutzen. Selbstverständlich haben Sie auf sämtliche Leistungen die übliche Bien-Zenker Gewährleistung.
Dieses Angebot wurde in der Ausbaustufe "Schlüsselfertig" berechnet. Ohne Keller und Sonderausstattung (wie Erker, Balkone oder Garagen). Die Grundrisse können teilweise nach Wunsch angepasst werden.
Lage
Reinbek zählt zu den beliebtesten Wohngebieten östlich von
Hamburg. Unmittelbar am Stadtrand von Hamburg gelegen,
umgeben vom Fluss Bille und dem Sachsenwald, genießt die
Kleinstadt eine attraktive Verkehrsanbindung. Mit dem Pkw
oder der S-Bahn gelangt man in 30 Min. in die Hamburger
City. Die Autobahnen A1 und A24 sind schnell erreicht.
Reinbek hat eine hervorragende Infrastruktur und bietet
sämtliche Schularten, Kindertagesstätten, Seniorenheime,
Ärzte, Apotheken, Krankenhaus, Supermärkte, Restaurants
sowie Dienstleistungsbetriebe aus vielen Branchen. Ein
Sportzentrum, ein öffentliches Freizeitbad und in der Nähe
drei schöne Golfplätze, bieten zahlreiche Freizeitgeschaltungsmöglichkeiten.
Ein sehr aktiver Sportverein bietet ein
breites Spektrum an Sportarten. Das Reinbeker Schloss ist als
Sehenswürdigkeit und Ort für kulturelle Veranstaltungen
über die Stadtgrenzen hinaus bekannt. Und ein Ausflug in
den Sachsenwald ist jederzeit lohnenswert.
Sonstige Angaben
Interesse geweckt?
Dann stehe ich Ihnen gerne bei eventuellen Fragen zur Seite, um mit Ihnen Ihr Wunschhaus zu bauen.
Ich freue mich auf Ihre Reaktionen.
Ina Wittmann
Bauberatung und Verkauf
Hamburg/ Schleswig - Holstein/ Niedersachsen
Freie Handelsvertretung
Der Bien-Zenker GmbH
Bien - Zenker
Info - Center Hamburg
Versmannstraße 22
20457 Hamburg
Mobil: +49 (0) 152 223 287 96
E-Mail: ina.wittmann@bien-zenker.de
www.bien-zenker.de
Folgen Sie uns auf Facebook:
https://www.facebook.com/bienzenker.hamburg/
Folgen Sie uns auf Instagram:
https://www.instagram.com/bienzenkerhamburg/
Grundriss
18176-1095-1-g
>
>
18177-1095-2-g
>
>
Adresse
21465 Reinbek
Interessante Orte
Preis- und Lageinformationen
Preistrend für Bestandsimmobilien in Reinbek