Ausreichend Platz für eine große Familie bietet dieses Traumhaus
Dieses Haus überzeugt durch seine tollen Raumgrößen und der exklusiven Ausstattung
Angefangen mit den hohen Decken 2,75m und viel Platz zum unterbringen von Highlights.
Der üppige Haustechnikraum bietet sehr viel Platz für jede Menge Stauraum.
Jetzt kommen wir zum absolutem Highlight im Erdgeschoss...Der offene Wohn- Essbereich mit großer Küche. Hier ist reichlich Platz mit der Familie und Freunden zu kochen, zum entspannen und zum gemütlichen beieinander sein.
Ihre schönste Wohlfühloase ist Ihr neues Traumhaus!!!
89426 Mödingen
Die vollständige Adresse der Immobilie erhalten Sie vom Anbieter.
Auf Karte anzeigen
Die vollständige Adresse der Immobilie erhalten Sie vom Anbieter.
Finanzierungszertifikat
In nur zwei Minuten zu Ihrem persönlichen Finanzierungszertifkat.
Infos
| Haustyp | Einfamilienhaus |
|---|---|
| Etagenzahl | 2 |
| Wohnfläche ca. | 182 m2 |
| Grundstücksfläche | 620 m2 |
| Zimmer | 5 |
| Schlafzimmer | 3 |
| Badezimmer | 3 |
Kosten
| Kaufpreis |
408.000 € |
|---|---|
| Provision | Nein |
Finanzierungsrechner:
Kaufpreis:
600.000 €
Eigenkapital:
600.000 €
Monatliche Rate
0 €
Effektiver Jahreszins
0 %
Sollzinsbindung
10 Jahre
Bausubstanz & Energieausweis
| Heizungsart | Fußbodenheizung |
|---|
Beschreibung des Objekts
Ausstattung
Im Preis enthalten:
- Dein Energieeffizienzhaus mit GRUNDSTÜCK
- inkl. Bodenplatte
- inkl. Technik-Paket ECO
- inkl. Deckenhöhe mit unglaublichen 2,75m
- inkl. Mineralischer Strukturputz in weiß
- inkl. Fassadenanstrich in weiß
- inkl. 3-fach Wärmeschutzverglasung
- inkl. Haustüre (verschiede Modelle zur Auswahl)
- inkl. Aluminium Rollläden
- inkl. Fußbodenheizung und Montage
- inkl. Luft-Wasser-Wärmepumpe mit kontrollierter Be- und Entlüftung mit
Wärmerückgewinnung
- inkl. Sanitärrohinstallation und Montage
- inkl. Elektropaket
- inkl. Fensterbänke (außen Aluminium)
- inkl. Treppe mit Montage
- inkl. Architektenleistung
- inkl. Baugrunduntersuchung
- inkl. Bauleistungsversicherung
- inkl. Bauherren-Haftpflichtversicherung
- inkl. Wohngebäudeversicherung
- inkl. Feuer-Rohbauversicherung
Selbstverständlich bieten wir Ihnen das Haus in verschiedenen Ausbaustufen an.
Vom AUSBAUHAUS bis hin zum fast fertigen Objekt, stehen alle Möglichkeiten zur Verfügung.
Ansprechpartner: Baris Dinc
0160-7769764
Instagram:
baris.dinc_hausbau
facebook:
Lage
Sie wünschen eine andere Lage?
Kein Thema!
Ich unterstütze sie bei der Suche nach einem geeigneten Bauplatz. Dabei berücksichtige ich den finanziellen Rahmen und die gewünschte Lage.
Sonstige Angaben
Wir erstellen gemeinsam Ihr Traum-Haus-Konzept!
Der Termin findet in Rain/Lech, Poing oder auf Wunsch bei Ihnen Zuhause statt.
Bei einer Tasse Kaffee, besprechen wir alle Ihre Wünsche, um Ihnen anschließend ein individuelles Konzept, dass perfekt auf Ihre Situation zugeschnitten ist zu erstellen.
Sie dürfen gespannt sein.
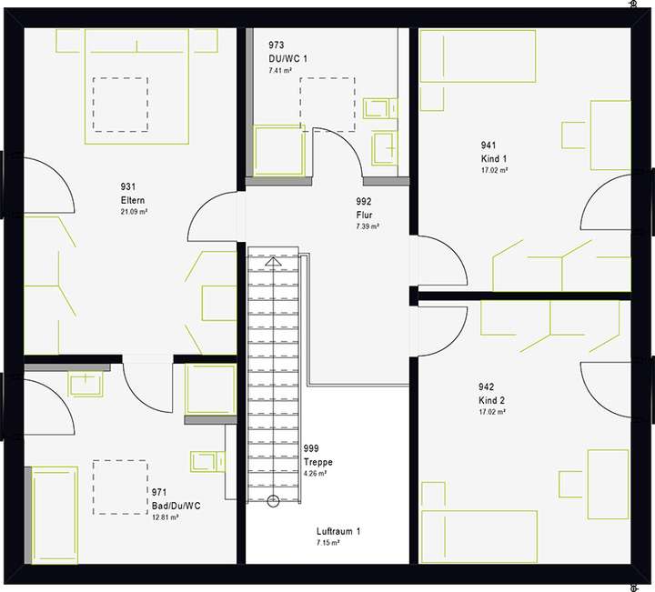
Grundriss
Erdgeschoss
>
>
Dachgeschoss
>
>
Kellergeschoss
>
>
Adresse
89426 Mödingen
Interessante Orte
Preis- und Lageinformationen
Preistrend für Bestandsimmobilien in Mödingen