Wir verkaufen ein Einfamilienhaus in ruhiger und zentraler Lage im Seebad Ueckermünde.
Der Bau der Immobilie kann zeitnah beginnen. Sonderwünsche und Ideen der Käufer können bis zur Fertigstellung berücksichtigt werden.
Den Bau realisiert die Firma Baugeschäft Bade GmbH & Co. KG aus Mönkebude.
Das Baugeschäft Bade ist ein Familienunternehmen welches seit 33 Jahren als klassisches Bauunternehmen auf dem Markt tätig ist und schon zahlreiche Bauvorhaben in der Region realisieren konnte. Es wird jedes Haus individuell geplant und “Stein auf Stein” errichtet, ganz nach den Vorstellungen der Bauherren.
Finanzierungszertifikat
In nur zwei Minuten zu Ihrem persönlichen Finanzierungszertifkat.
Infos
| Haustyp | Einfamilienhaus |
|---|---|
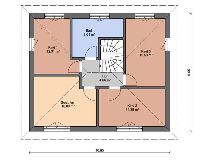
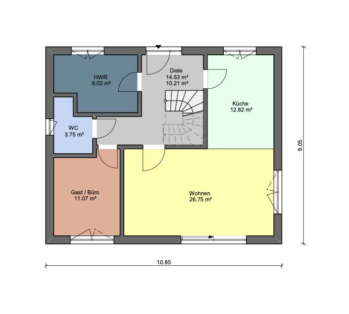
| Wohnfläche ca. | 146 m2 |
| Grundstücksfläche | 959 m2 |
| Zimmer | 6 |
Kosten
| Kaufpreis |
497.227 € |
|---|---|
| Provision | Nein |
Finanzierungsrechner:
Kaufpreis:
600.000 €
Eigenkapital:
600.000 €
Monatliche Rate
0 €
Effektiver Jahreszins
0 %
Sollzinsbindung
10 Jahre
Bausubstanz & Energieausweis
| Baujahr | 2024 |
|---|---|
| Bauphase | Haus in Planung (projektiert) |
| Objektzustand | Erstbezug |
| Qualität der Austattung | Normal |
| Heizungsart | Wärmepumpe |
| Wesentliche Energieträger | Umweltwärme |
| Energieausweis | laut Gesetz nicht erforderlich |
Beschreibung des Objekts
Ausstattung
Bodenplatte mit Abdichtungen
massives Porenbeton-Aussenmauerwerk
massive Stahlbetondeckenplatte über dem Erdgeschoss
schwarz engobierte Tondachziegel
3-Scheiben-Wärmeschutz-Verglasung für energiebewusstes Wohnen
elektrisch bedienbare Rollläden aus Aluminium
moderne Haustür in massiver Ausführung mit Edelstahlgriff und Mehrfach-Sicherheitsverriegelung
elegante Geschosstreppe aus Buchenholz
hochwertige Bodenbeläge
Luft-Wärme-Pumpe und Fußbodenheizung (in allen Räumen einzeln regulierbar)
Haustechnik von Markenherstellern
alle Architektenleistungen inklusive
Lage
Ueckermünde liegt an der Mündung der Uecker in das Stettiner Haff. Die Umgebung Ueckermündes ist – von einigen kaum
20 Meter Höhe erreichenden Erhebungen abgesehen – fast eben. Der Naturraum wird durch den Naturpark am Stettiner Haff geschützt. Südöstlich der Stadt erstreckt sich mit der Ueckermünder Heide das größte Waldgebiet Vorpommerns.
Die Wirtschaft in Ueckermünde ist heute überwiegend durch den Tourismus geprägt. Die Beherbergungsstätten reichen von kleinen Zimmern in privater Vermietung über 3- bis 4-Sterne-Hotels bis hin zu Ferienwohnungen mit eigenen Bootsliegeplätzen. Seit den späten 1990er Jahren wird neben dem Wassersporttourismus zunehmend der Natur- und Radtourismus ausgebaut. Durch die Stadt verlaufen mehrere europäische Radfernwege.
Neben dem Stadt- und Yachthafen besitzt Ueckermünde einen Industriehafen.
Am Rand der Stadt befindet sich das Diakonie-Klinikum Ueckermünde, das Mitte der 1990er Jahre zu einem modernen Krankenhaus ausgebaut wurde.
Nächstgelegene größere Städte sind: Stettin (ca. 58 km entfernt), Neubrandenburg (ca. 60 km entfernt) und Berlin (ca. 170 km entfernt).
Landeshauptstadt:
Schwerin (ca. 245 km entfernt) Bundesstraße:
B 109 (ca. 3,5 km entfernt) Autobahnzufahrt:
BAB 20 (ca. 20 km entfernt) ÖPNV: Regionale Bus- und Bahnlinien in Ueckermünde und im Landkreis Vorpommern-Greifswald, sowie Bahnstrecke, Fahrgastschiffe und Radfernweg.
Weitere Dokumente
SchnittAdresse
Rosenmühler Weg 4, 17373 Ueckermünde
Interessante Orte
Preis- und Lageinformationen
Preistrend für Bestandsimmobilien in Ueckermünde
>
>