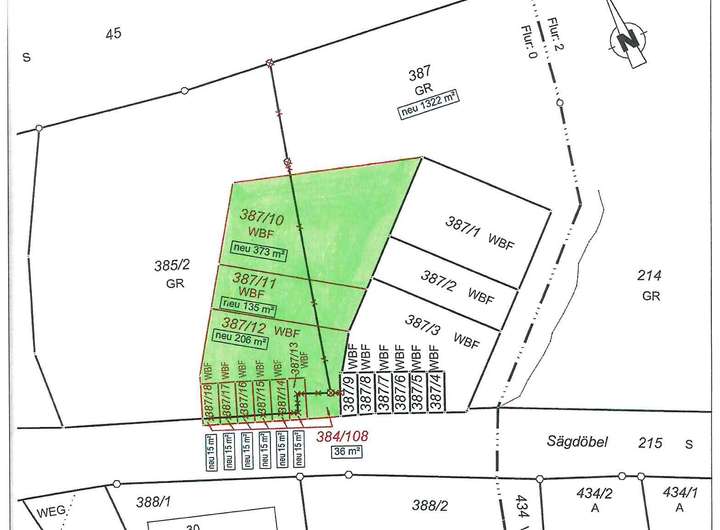
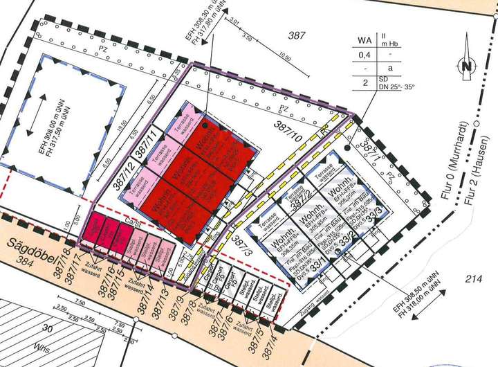
Attraktives Baugrundstück mit ca. 804 m² und genehmigtem Projekt - für 3 moderne Reihenhäuser in Murrhardt!
SOFORT bebaubares Grundstück - Naturnah leben - angrenzend zu Wald und Wiesen!
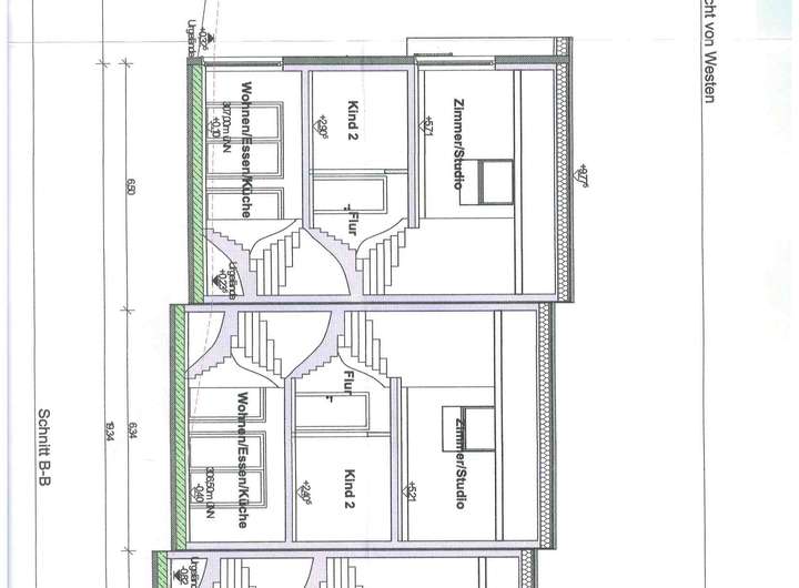
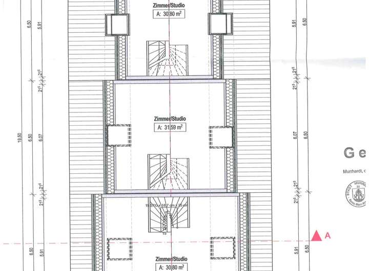
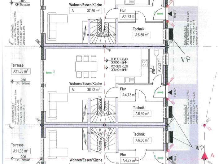
Zum Verkauf steht ein äußerst interessantes Baugrundstück inklusive rechtskräftiger Baugenehmigung für die Errichtung von drei hochwertigen und großen Reihenhäuser, mit viel Wohnfläche (ca. 150 m²).
Das Projekt ist vollständig vorbereitet und bietet Investoren, Bauträgern sowie privaten Projektentwicklern eine hervorragende Gelegenheit, ohne zeitliche Verzögerung in die Umsetzung zu starten.
Die Hauptvorteile auf einen Blick.
• Baugenehmigung bereits erteilt – kein Planungsrisiko, sofortiger Baustart möglich
• Projekt für 3 Reihenhäuser – ideal für Verkauf an Eigennutzer, Kapitalanleger oder Vermietung
• Attraktive Grundrisse geplant – moderne Architektur, familienfreundliche Wohnflächen
• Hohe Nachfrage nach Reihenhäusern – starke Verkaufs- bzw. Vermietbarkeit
• Effiziente Grundstücksausnutzung durch genehmigtes Konzept
• Investitionssicherheit durch vollständig vorbereitete Unterlagen
Projektbeschreibung
Die geplanten Reihenhäuser überzeugen durch zeitgemäße Architektur, klare Formen und eine effiziente Raumaufteilung. Große Fensterfronten sorgen für helle Wohnbereiche, privat nutzbare Gärten erhöhen die Wohnqualität. Je nach gewünschtem Konzept sind hochwertige Ausstattungslinien realisierbar, die zusätzlich die Vermarktung stärken.
Attraktives Baugrundstück mit genehmigtem Projekt für 3 modere Reihenhäuser - Sofort bebaubar!
Sägdöbel ,
71540 Murrhardt
Auf Karte anzeigen
Finanzierungszertifikat
In nur zwei Minuten zu Ihrem persönlichen Finanzierungszertifkat.
Infos
| Vermarktungsart | Kaufen |
|---|---|
| Grundstücksfläche | 804 m2 |
| Erschließung | Teilerschlossen |
| Empfohlene Nutzung | Reihenhaus |
| Bebaubar nach | Bebauungsplan |
| Verfügbar ab | SOFORT! |
Kosten
| Miete pro Jahr |
225.000 € |
|---|---|
| Provision | Nein |
Finanzierungsrechner:
Kaufpreis:
600.000 €
Eigenkapital:
600.000 €
Monatliche Rate
0 €
Effektiver Jahreszins
0 %
Sollzinsbindung
10 Jahre
Beschreibung des Objekts
Lage
In Murrhardt im Stadtteil-Wohngebiet Sägdöbel, in einer kaum befahrenen Seiten- und Anlieger-Straße gelegen, Stadtrand-Lage, direkt neben Wald und Wiesen - gleich im Anschluss "Natur Pur"!