Bei dieser Immobilie mit 5.500 m² handelt es sich um eine ehemalige Textilfabrik, Baujahr 1976. Die drei Stockwerke sind durchgehend und können beliebig
aufgeteilt werden. Die Raumhöhen von 3,10 m und 2,70 m ermöglichen
exquisite Wohn-Lofts. Es sind Wohnungen, Home-Office-Flächen und Büros
geplant. Bei den ca. 30 - 40 Einheiten auf ca. 2.750 m² kann der Bauherr den
Anteil an Wohnungen oder Büros, sowie die Anzahl der Einheiten frei entscheiden.
Die Aussenanlagen umfassen 30 Carports und Stellplätze, sowie Fahrradstellplätze und
Hochbeete im Selbstversorgergarten. Zusätzlich gibt es im UG noch 18 Tiefgaragenplätze,
Fahrradraum und Abstellräume ect.
Bei der Revitalisierung handelt es sich um ein baureifes Projekt. Der genehmigte
Bauvorbescheid liegt vor. Beim Bau des Gebäudes wurde die Statik schon so ausgelegt,
dass die Aufstockung um ein Penthaus jederzeit möglich ist. Die Planung für ein Penthaus-Geschoss liegt ebenfalls fertig vor.
Die Stadt Albstadt liegt zwischen Stuttgart und dem Bodensee. Sie ist ein Technologie- und
Hochschulzentrum mit einem Einzugsgebiet von ca. 60.000 Einwohnern. Sie ist
wirtschaftlicher und kultureller Mittelpunkt der Südwestalb und verfügt über
aussergewöhnliche landschaftliche Reize, eine hohe Lebensqualität und ausgeprägten
Freizeitwert.Das durchschnittliche Bevölkerungswachstum beträgt +0,46% pro Jahr.
Mit Baugenehmigung Gewerbeimmobilie zur Umnutzung in Wohnungen
72461 Albstadt
Die vollständige Adresse der Immobilie erhalten Sie vom Anbieter.
Auf Karte anzeigen
Die vollständige Adresse der Immobilie erhalten Sie vom Anbieter.
Finanzierungszertifikat
In nur zwei Minuten zu Ihrem persönlichen Finanzierungszertifkat.
Infos
| Vermarktungsart | Kaufen |
|---|---|
| Grundstücksfläche | 4.593 m2 |
| Erschließung | Erschlossen |
| Empfohlene Nutzung | Mehrfamilienhaus |
| Grundflächenzahl (GRZ) | 0.82 |
| Geschossflächenzahl (GFZ) | 3 |
| Bebaubar nach | Bebauungsplan |
| Verfügbar ab | sofort |
Kosten
| Miete pro Jahr |
0 € |
|---|---|
| Provision | Nein |
Finanzierungsrechner:
Kaufpreis:
600.000 €
Eigenkapital:
600.000 €
Monatliche Rate
0 €
Effektiver Jahreszins
0 %
Sollzinsbindung
10 Jahre
Beschreibung des Objekts
Lage
Die Immobilie mit der Grundstücksfläche von 4.593 m² liegt am Rande eines Wohngebiets
mit Einfamilienhäusern. Sie ist perfekt nach Süden ausgerichtet mit unverbaubarer
Aussichtslage zum Naherholungsgebiet Lerchenfeld mit Fahrradwegen,
Premiumwanderwegen, Langlaufloipen und Ausflugslokalen. Der Waldkinderspielpatz
liegt genau gegenüber. Das Schulzentrum mit Grundschule, Schwimmbad, Kinderkrippe
und Kindergarten befindet sich in der Nähe wie auch eine Haltestelles des ÖPNV, sowie
Bäcker, Metzger Apotheke, Bankautomat, Friseur ect.
Sonstige Angaben
Durch die perfekte, unverbaubare Südlage eignet sich das Flachdach mit 1.852 m² ganz
ideal für eine ertragreiche Photovoltaikanlage. Mit rund 1.861 Sonnenstunden im
9-Jahresdurchschnitt ist Albstadt einer der sonnigsten Flecken in ganz Deutschland.
Die Gewerbemieter im Gebäude haben Mietverträge mit dreimonatiger Kündigungsfrist.
Der Verkauf erfolgt provisionsfrei direkt vom Eigentümer.
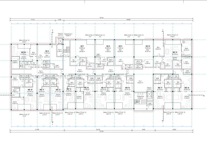
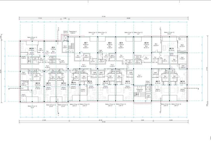
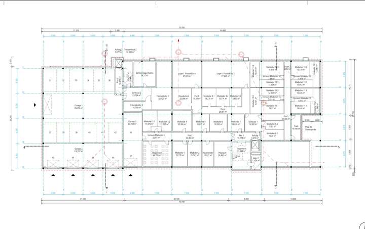
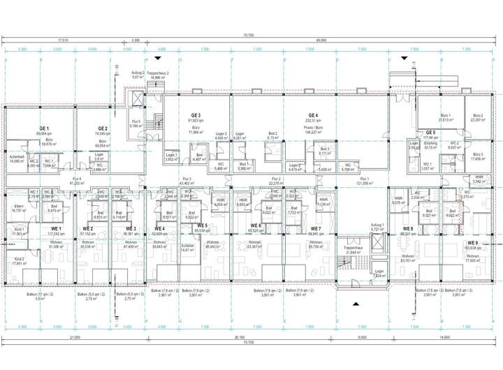
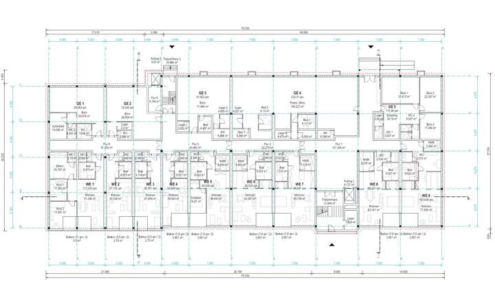
Grundriss
UntergeschossUmnutzung
>
>
ErdgeschossUmnutzung
>
>
ObergeschossUmnutzung
>
>