Beschreibung möglicher Neubau:
Grundstück mit Bestand und Baugenehmigung für Neubau von zwei Wohngebäuden mit je 2 Wohnungen und Errichtung von vier Pkw-Stellplätzen.
3 x Wohnung und 1x Dauerwohnung - Gesamtfläche Sylter Maß von beiden Häusern beträgt 518qm .
( In den beigefügten Dateien und Grundrissen ist jeweils nur ein Haus mit 2 Wohneinheiten dargestellt. Die Gesamtplanung mit dem weiteren Baukörper mit 2 Wohneinheiten übersenden wir gern in einem ausführlichem Expose .)
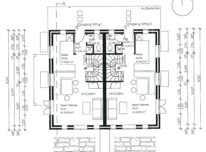
Alle 4 Einheiten sind ähnlich aufgeteilt und bestechen durch eine helle und großzügige Planung. Sie betreten die Haushälften durch den Eingang von der Nordseite und gelangen in den Flur mit Gäste-WC und Geraderobe. Von dort aus betreten Sie den hellen Wohnraum mit offener Küche und gemütlicher Essecke. Über den Wohnbereich mit Anschlussmöglichkeit für einen Kamin gelangen Sie auf die nach Süden ausgerichtete Terrasse und den großen Garten.
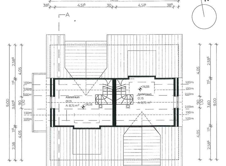
Das Dachgeschoss ist aufgeteilt in ein Masterbedroom mit begehbarem Kleiderschrank und ein Vollbad mit Dusche, Badewanne, Waschbecken und einem WC. Der Spitzboden bietet Ihnen zusätzlich ausreichend Platz zur freien Gestaltung.
Ein seitlich angesetzter Balkon wertet die Immobilie auf .
Im Untergeschoss steht Ihnen durch einen genehmigten Aussenkeller unterm Eingangsbereich der Häuser ungewöhnlich viel Platz zur Verfügung. Aufgeteilt ist diese Etage in einen Saunaraum mit eigener Dusche, ein Duschbad, einen großen Raum zur freien Entfaltung und diverse Nebenräume. Und zwar ein Hausanschluss- /Heizungsraum, ein kleiner Hauswirtschaftsraum für Waschmaschine und Trockner und ein kleiner weiterer Raum zur Individuellen Nutzung.
*Die ausgeschriebene Gesamtfläche für den Neubau ist nicht auf eine genormte Berechnung laut WoFlV oder II. BV zurückzuführen. Es handelt sich vielmehr um eine Berechnung nach dem sogenannten "Sylter Maß". Dieses gibt alle im Objekt enthaltenen Flächen wieder, gemessen an den Fußleisten (Erd-, Dach-, Untergeschoss & Spitzboden). Die Terrassen/Freisitze wurden mit 50% angerechnet. Die Flächen sind der Flächenberechnung des Architekten vom 31.01.2022 entnommen. Diese finden Sie weiter hinten im Exposé.
Beschreibung Bestand:
Auf dem Grundstück befindet sich aktuell ein Einfamilienhaus, aufgeteilt in zwei Wohneinheiten. Ein eigenständiger Bungalow sowie eine Doppelgarage und eine Gartenhütte auf einem schön eingewachsenen Grundstück.
Die gesamte Immobilie ist mit zwei Gewerbemietverträgen bis Ende 2025 vermietet. Somit kann die Immobilie derzeit zum 01.01.2026 mieterfrei übergeben werden. Die Mieteinnahmen übersenden wir Ihnen gerne auf Anfrage. Die Doppelgarage wird ebenfalls ohne Mieter und Verträge übergeben.
Großes Grundstück mit Baugenehmigung für 2 Häuser mit je 2 Hausteilen und Alt-Bestand
25980 Sylt (Gemeinde)
Die vollständige Adresse der Immobilie erhalten Sie vom Anbieter.
Auf Karte anzeigen
Die vollständige Adresse der Immobilie erhalten Sie vom Anbieter.
Finanzierungszertifikat
In nur zwei Minuten zu Ihrem persönlichen Finanzierungszertifkat.
Infos
| Vermarktungsart | Kaufen |
|---|---|
| Grundstücksfläche | 1.038 m2 |
Kosten
| Miete pro Jahr |
1.385.000 € |
|---|---|
| Provision |
keine Courtage für den Käufer keine Courtage für den Käufer |
Finanzierungsrechner:
Kaufpreis:
600.000 €
Eigenkapital:
600.000 €
Monatliche Rate
0 €
Effektiver Jahreszins
0 %
Sollzinsbindung
10 Jahre
Beschreibung des Objekts
Lage
Tinnum ist mit etwa 2.500 Einwohnern das größte Dorf der Gemeinde Sylt-Ost. Mit seinem Industriegebiet und mehreren Discountern im westlichen Ortsteil übernimmt es eine wichtige Versorgungsfunktion für die Bewohner und Gäste der Insel, hat sich andererseits aber durchaus den dörflichen Charakter erhalten.
Durch die zentrale Insellage sind die Wege nach Westerland und ins benachbarte Friesendorf Keitum kurz, überhaupt lässt sich von hier aus Sylt gut in alle Richtungen erkunden.
Die Tinnumer Wiesen bis hin zum Rantumbecken sind ein Eldorado für Radfahrer, Nordic-Walker, Spaziergänger und Reiter. Der charmante Tierpark in Tinnum ist ein kleines Paradies mit vielen einheimischen und exotischen Tieren, die man hier nah erleben kann.
Sonstige Angaben
Sie wünschen weitere Informationen zu diesem Angebot – wir freuen uns auf Ihre Anfrage! Wir übersenden Ihnen gern das gewünschte Exposé und beantworten Ihre Fragen in einem persönlichen Gespräch. Bitte haben Sie Verständnis dafür, dass wir vorab Ihren vollständigen Namen, Ihre Adresse sowie Telefonnummer und E-Mail-Adresse benötigen um Sie Ihrem Ziel näher bringen zu dürfen. Wir freuen uns auf Sie!