Ein eigenes Haus zu bauen, ist eine ganz besondere Herausforderung: ein echter Lebenstraum eben! Bei der Verwirklichung dieses Traumes stehen wir von massahaus als starker Partner an Ihrer Seite. Und das mit erstklassiger Qualität, energieeffizienter und zukunftsweisender Bauweise und einem Preis-Leistungsverhältnis, das seinesgleichen sucht. Dieses Angebot wurde so konzipiert, dass Sie es flexibel und individuell kosteneinsparend in Eigenleistung ausbauen können. Oder Sie organisieren den Ausbau günstig selbst oder mit einem Fachmann Ihrer Wahl und gestalten Ihr Traumhaus ganz nach Ihren Bedürfnissen! Leben Sie Ihren Individualismus! Bestimmen Sie über Auswahl und Preis. Egal wie Sie sich entscheiden, wir begleiten Sie als Partner und schaffen so gemeinsam bleibende Werte - ein Leben lang. Kostenreduzierung durch zusätzliche Eigenleistungen möglich! Errichtung und Fertigstellung nach Absprache!
******* Ich freue mich auf Sie. *******
Wer hier einzieht, mietet Kinderlachen.
73486 Adelmannsfelden
Die vollständige Adresse der Immobilie erhalten Sie vom Anbieter.
Auf Karte anzeigen
Die vollständige Adresse der Immobilie erhalten Sie vom Anbieter.
Finanzierungszertifikat
In nur zwei Minuten zu Ihrem persönlichen Finanzierungszertifkat.
Infos
| Haustyp | Einfamilienhaus |
|---|---|
| Etagenzahl | 2 |
| Wohnfläche ca. | 178 m2 |
| Grundstücksfläche | 600 m2 |
| Bezugsfrei ab | 2024 |
| Zimmer | 6 |
| Schlafzimmer | 5 |
| Badezimmer | 2 |
Kosten
| Kaufpreis |
359.000 € |
|---|---|
| Provision | Nein |
Finanzierungsrechner:
Kaufpreis:
600.000 €
Eigenkapital:
600.000 €
Monatliche Rate
0 €
Effektiver Jahreszins
0 %
Sollzinsbindung
10 Jahre
Bausubstanz & Energieausweis
| Baujahr | 2024 |
|---|---|
| Bauphase | Haus in Planung (projektiert) |
| Objektzustand | Erstbezug |
| Qualität der Austattung | Gehoben |
Beschreibung des Objekts
Ausstattung
Das Angebot beinhaltet bereits:
- Baugrundstück
- das Ausbau-Haus auf Bodenplatte,
- inkl. Dacheindeckung
- inkl. Regenrinne aus Zink
- inkl. hochwertigen Außenputz
- inklusive Klima-Plus Außenwand,
- inklusive 3-fach- Wärmeschutzfenster
- inkl. Rollläden im EG und DG
- inkl. Architektenleistung (komplette Genehmigungs- und Bauantragsplanung)
- inkl. Bodengutachten
-15 Monate Festpreisgarantie und 5 Jahre Gesamtgarantie nach BGB.
-Außerdem TÜV-Siegel Toxproof für behagliches, gesundes Wohnen.
Das Objekt beinhaltet das Ausbauhaus mit Bodenplatte und den Bauplatz. Natürlich können wir Ihnen auch individuelle, perfekt auf Ihre Wünsche und Möglichkeiten abgestimmte Ausbaupakete anbieten.
Projektiertes Ausbauhaus mit Bodenplatte! Real wird Ihr Traum erst nach Absprache! Der Aufbau des Hauses dauert nur 2-4 Tage.
Sonstige Angaben
Das Haus ist auf einem realen Grundstück geplant. Wir bitten jedoch um Verständnis, dass wir ohne ein persönliches Gespräch über das Haus keine Grundstücksdaten weiterleiten. Wir können Ihren Haustraum auch gerne auf einem anderen Grundstück realisieren.
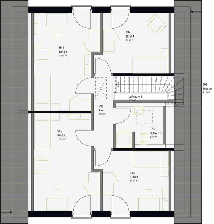
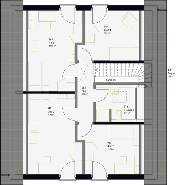
Grundriss
EG
>
>
DG
>
>
EG
>
>
DG
>
>
Adresse
73486 Adelmannsfelden
Interessante Orte
Preis- und Lageinformationen
Preistrend für Bestandsimmobilien in Adelmannsfelden