Die Immobilie, erbaut im Jahr 2006, bietet vielseitige Möglichkeiten für Wohnen und Investition. Das Anwesen befindet sich auf einem Grundstück von ca. 485 m² und erstreckt sich über insgesamt vier Etagen mit einer Wohnfläche von ca. 185 m². In den letzten Jahren wurde das Haus zimmerweise vermietet. Sowohl das Erdgeschoss als auch das Obergeschoss verfügt über eine praktische Einbauküche und ein Badezimmer zur gemeinschaftlichen Nutzung, jeweils ausgestattet mit zwei Toiletten und zwei Duschen. Auch ein Waschmaschinenanschluss ist in den Badezimmern vorhanden, was den Komfort für die Bewohner erhöht. Dank dieser flexiblen Gestaltung kann das Haus entweder weiterhin als Boardinghaus genutzt werden oder in ein großzügiges Zweifamilienhaus umgebaut werden.
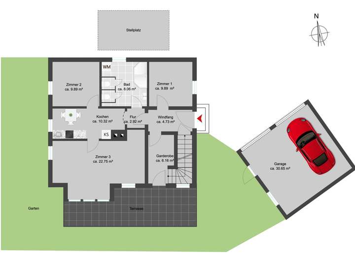
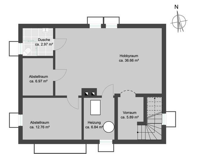
Bei einer möglichen Umwandlung des Hauses könnte der Grundriss wie folgt gestaltet werden: Im Erdgeschoss ist genügend Platz für einen großzügigen Eingangsbereich. Ein besonderes Highlight wäre der Wohn- und Essbereich, der durch seine direkte Verbindung zur Terrasse und dem nach Südost ausgerichteten Garten besticht. Hier besteht die Möglichkeit, eine offene Küche mit einer einladenden Kücheninsel einzubauen. Zudem bietet das Erdgeschoss zwei Zimmer, die flexibel als Schlaf-, Arbeits- oder Gästezimmer genutzt werden können, sowie ein Badezimmer. Im Obergeschoss besteht die Option entweder einen offenen Wohn-, Ess- und Kochbereich zu planen oder alternativ eine abgetrennte Küche und einen separaten Wohnzimmer einzurichten. Zwei gut geschnittene Zimmer bieten hier flexible Nutzungsmöglichkeiten. Das ausgebaute Dachgeschoss bietet Raum für zwei weitere Zimmer, die prädestiniert dafür sind ein Gästezimmer oder ein Büro einzurichten. Im vollständig ausgebauten Keller präsentiert sich ein Hobbyraum, Abstellräume, ein Heizungsraum sowie ein Duschbadezimmer. Außerdem gehören zum Anwesen zwei Garagenstellplätze sowie ein Außenstellplatz, die ausreichende Parkmöglichkeiten für die Bewohner bieten.
Kapitalanlage oder Selbstbezug - Ein- oder Zweifamilienhaus mit viel Potenzial
85656 Buch am Buchrain
Die vollständige Adresse der Immobilie erhalten Sie vom Anbieter.
Auf Karte anzeigen
Die vollständige Adresse der Immobilie erhalten Sie vom Anbieter.
Finanzierungszertifikat
In nur zwei Minuten zu Ihrem persönlichen Finanzierungszertifkat.
Infos
| Haustyp | Mehrfamilienhaus |
|---|---|
| Etagenzahl | 3 |
| Wohnfläche ca. | 185 m2 |
| Grundstücksfläche | 485 m2 |
| Bezugsfrei ab | 16.05.2024 |
| Zimmer | 9 |
| Anzahl Garage/Stellplatz | 3 |
Kosten
| Kaufpreis |
890.000 € |
|---|---|
| Provision |
3,57 % inkl. ges. MwSt. |
| Mieteinnahmen | 3.600 € |
Finanzierungsrechner:
Kaufpreis:
600.000 €
Eigenkapital:
600.000 €
Monatliche Rate
0 €
Effektiver Jahreszins
0 %
Sollzinsbindung
10 Jahre
Bausubstanz & Energieausweis
| Baujahr | 2006 |
|---|---|
| Letzte Sanierung | 2019 |
| Bauphase | Haus fertig gestellt |
| Objektzustand | Gepflegt |
| Qualität der Austattung | Normal |
| Heizungsart | Zentralheizung |
| Wesentliche Energieträger | Strom |
| Energieausweis | liegt vor |
| Energieausweistyp | Verbrauchsausweis |
| Energieverbrauchskennwert | 12,3 kWh/(m²*a) |
| Energieeffizienzklasse | A+ |
12,3
kWh/(m²*a)
Energieeffizienzklasse A+
- A+
- A
- B
- C
- D
- E
- F
- G
- H
- 0
- 25
- 50
- 75
- 100
- 125
- 150
- 175
- 200
- 225
- >250
Beschreibung des Objekts
Ausstattung
Individuelle Ausstattungsmerkmale:
- Küche mit Fenster
- ruhige Wohnlage
- Hobbyraum
Lage
Diese Immobilie bietet Ihnen eine ruhige und grüne Umgebung, die perfekt für Familien, Paare oder jeden ist, der das ländliche Leben in vollen Zügen genießen möchte. Die Gemeinde Buch am Buchrain liegt strategisch günstig in der Region München, etwa 14 km südlich der Kreisstadt Erding. Die Nähe zum Flughafen München, nur ca. 28 km entfernt, macht diese Lage besonders attraktiv für Vielreisende. Ebenso sind es nur ca. 16 km nach Dorfen, ca. 18 km nach Ebersberg und ca. 38 km zur pulsierenden Landeshauptstadt München. Zusätzlich profitiert man von der hervorragenden Anbindung durch die Buslinie 505, die Markt Schwaben mit Isen und Mittelbach verbindet. Diese Busverbindung schafft eine bequeme und zuverlässige Möglichkeit, die Umgebung zu erkunden oder sich bequem zu anderen Zielen zu begeben. Die ruhige Atmosphäre der Gemeinde und die grünen Umgebungen schaffen eine ideale Wohnlage, die Raum für Entspannung und Erholung bietet. Hier kann man das ländliche Leben in vollen Zügen genießen und gleichzeitig von den Annehmlichkeiten der nahegelegenen Städte profitieren.
Sonstige Angaben
Sämtliche Bilder in diesem Exposé sind urheberrechtlich geschützt und dürfen nicht durch Dritte verwendet bzw. weitergegeben werden. Dieses Exposé wurde mit Sorgfalt zusammengestellt. Alle darin enthaltenen Angaben über das Objekt beruhen auf Informationen des Verkäufers. Eine Haftung für deren Richtigkeit und Vollständigkeit können wir nicht übernehmen.
Grundriss
Erdgeschoss- aktueller Stand
>
>
Obergeschoss-aktueller Stand
>
>
Dachgeschoss-aktueller Stand
>
>
Kellergeschoss-aktueller Stand
>
>
Erdgeschoss- alternativ
>
>
Obergeschoss- alternativ
>
>
Dachgeschoss- alternativ
>
>
Kellergeschoss- alternativ
>
>
Adresse
85656 Buch am Buchrain
Interessante Orte
Preis- und Lageinformationen
Preistrend für Bestandsimmobilien in Buch am Buchrain