Streifhaus FAMILY in der Größe L mit "Premium Line "- Ausstattung
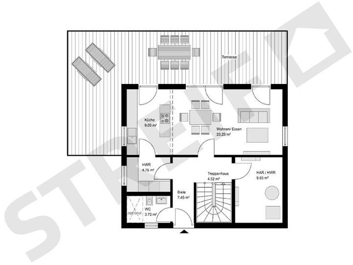
Das behagliche Family-Haus mit Satteldach punktet mit einem gut durchdachten Grundriss. Der offen gestaltete Wohn-/Ess- und Kochbereich ist lichtdurchflutet. Ein praktischer Hauswirtschaftsraum ist direkt neben der Küche platziert.
Komplettiert wird das Raumangebot im Erdgeschoss mit einem Gäste-WC, das optional auch als Duschbad ausgeführt werden kann, einer Diele und einem Haustechnikraum.
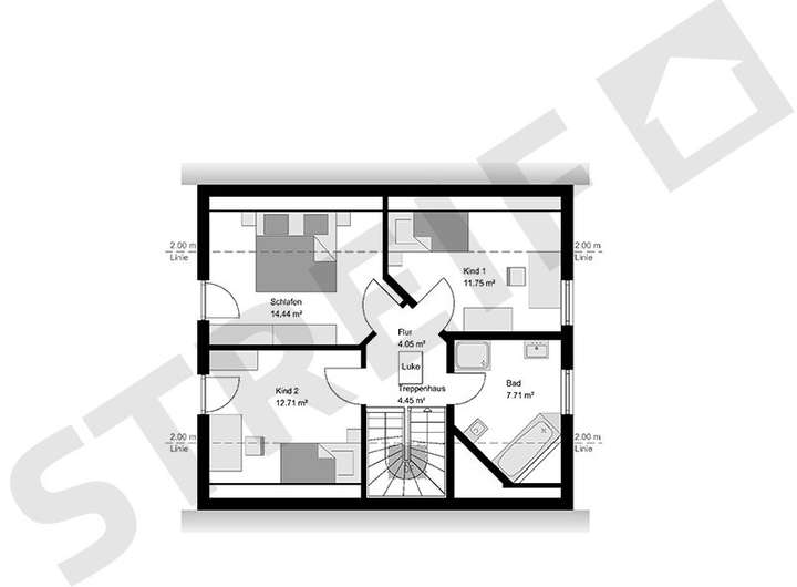
Im Dachgeschoss des Hauses sind zwei schöne Kinderzimmer, ein Elternschlafzimmer, ein
Flur und ein Familienbad untergebracht.
Die Netto-Raumfläche beträgt 117,65 m².
Objektart: Einfamilienhaus, 1,5-geschossig
Dachform: Satteldach
Kniestock: 0,75 m
Hausmaße: 9,33 x 8,08 m
Netto-Raumfläche: 117,65 m²
Streifhaus Family in Größe L
Einfamilienhaus Family L mit "Kümmer-mich-um-Alles-Service"!
26736 Krummhörn
Die vollständige Adresse der Immobilie erhalten Sie vom Anbieter.
Auf Karte anzeigen
Die vollständige Adresse der Immobilie erhalten Sie vom Anbieter.
Finanzierungszertifikat
In nur zwei Minuten zu Ihrem persönlichen Finanzierungszertifkat.
Infos
| Haustyp | Einfamilienhaus |
|---|---|
| Etagenzahl | 1 |
| Wohnfläche ca. | 117 m2 |
| Grundstücksfläche | 626 m2 |
| Zimmer | 4 |
| Schlafzimmer | 3 |
| Badezimmer | 1 |
Kosten
| Kaufpreis |
372.559 € |
|---|
Finanzierungsrechner:
Kaufpreis:
600.000 €
Eigenkapital:
600.000 €
Monatliche Rate
0 €
Effektiver Jahreszins
0 %
Sollzinsbindung
10 Jahre
Bausubstanz & Energieausweis
| Baujahr | 2025 |
|---|---|
| Bauphase | Haus in Planung (projektiert) |
| Qualität der Austattung | Gehoben |
| Heizungsart | Wärmepumpe |
Beschreibung des Objekts
Ausstattung
STREIF-Energiespar-Häuser sind für die Effizienzhaus-Klasse 40 ausgestattet. Gegen Aufpreis kann eine Ökobilanz erstellt werden, die bescheinigt, dass Ihr STREIF-Haus den neuen KfW-Förderrichtlinien in der Stufe KFWG für den Klimafreundlichen Neubau (KFN) entspricht. Für das Erfüllen der Voraussetzungen zur KfW-Förderung ist eine Photovoltaikanlage mit Batteriespeicher erforderlich.
Folgende STREIF-Leistungen sind schon im Festpreis enthalten - bei Ausbaustufe "fastfertig+:
20-monatige Fair- und Festpreisgarantie
Inklusive gedämmter Fundamentplatte
Inklusive STREIF-Luft-Luft-Wärmepumpen-Technologie, mit integrierter Lüftungsanlage mit Wärmerückgewinnung
Inklusive hochwertiger Holzhaustür von KERA
Inklusive Fenster von Porta/Kömmerling, Fenster innen und außen in Weiß
inklusive elektrische Rollladen
Inklusive Massivholz-Geschosstreppe aus eigener Produktion (außer Bungalow)
Inklusive Sanitärobjekten von Markenherstellern in Bad/WC
Inklusive Elektroinstallation u.v.m.
Inklusive Vorbereitung zur Installation einer Photovoltaik-Anlage
Inklusive individueller Grundrissgestaltung und Raumaufteilung
Die STREIF-Passiv-Außenwand und eine sparsame Heiztechnik mit integrierter Wohnraumlüftung und Wärmerückgewinnung garantieren einen geringen Energieverbrauch und ein fantastisches Raumklima, das insbesondere Allergiker aufatmen lässt.
Die hohe Wertigkeit und Langlebigkeit eines STREIF-Energiespar-Hauses werden durch zahlreiche Auszeichnungen, Qualitäts- und Gütesiegel unabhängiger Institute und Verbände dokumentiert.
Der Angebotspreis ist inklusive Grundstück und bezieht sich auf die Standard-Ausbaustufe Fast-Fertig-Plus. Ihre Eigenleistungen: Spachtel-, Tapezier- und Malerarbeiten, Bodenbeläge, Innentüren. Selbstverständlich erstellen wir Ihr Haus gegen Mehrpreis auch schlüsselfertig, gerne auch mit Einbauküche.
Baunebenkosten fallen zuzüglich an.
Das im Hauspreis enthaltene Grundstück muss separat vom Anbieter erworben werden.
Bilder können evtl. Anbauteile, Carports, Balkone, Gauben usw. zeigen, die nicht im Angebotspreis enthalten sind. Änderungen und Irrtümer vorbehalten. Fragen Sie Ihre persönliche STREIF-Bauberatung.
Werner Fett +49 1520 4950520
Lage
Das Baugebiet "Alte Brauerei" liegt im Ortsteil Pilsum der Gemeinde Krummhörn. Die Anbindung zum Baugebiet erfolgt über die Straße "Gulfpadd".
Durch die günstige Verkehrslage sind die umliegenden, größeren Orte wie Emden, Norden und Aurich bequem und schnell zu erreichen. Die Nordseeküste und der berühmte Pilsumer Leuchtturm, ein Wahrzeichen Ostfrieslands, sowie der idyllische, vielbesuchter Ferienort Greetsiel sind unweit entfernt. Die Autobahnanschlussstelle (A 31) befindet sich in ca. 30 km Entfernung. Einkaufsmöglichkeiten, Schule und Kindergarten sind in den Nachbarorten Greetsiel und Pewsum vorhanden. Die landwirtschaftlich geprägte Umgebung gewährleistet ein ruhiges Wohnen und bietet vielfältige Freizeitmöglichkeiten.
Wohnen, wo andere Urlaub machen: Die Nähe zum Küstenbadeort Norddeich bietet Ihnen mit den dort vorhandenen Fähren den Besuch der Inseln Juist und Norderney.
Rad-Wanderwege: Die Region Krummhörn ist ideal für Radfahrer und Wanderer. Es gibt ein gut ausgebautes Netz von Radwegen, die durch malerische Landschaften
führen, darunter entlang der Küste, durch idyllische Dörfer und entlang von Deichen.
Sonstige Angaben
Was heißt "Kümmer-mich-um-Alles-Service"?
Wenn Sie in Erwägung ziehen, sich in einer der beliebtesten Küstenregionen Ostfrieslands einen Dauerwohnsitz, Altersruhesitz oder eine Immobilie als nahezu inflationssichere Wertanlage zur Vermietung anzuschaffen, können Sie auch aus der Ferne auf unseren Service bauen.
Dieser umfasst: Koordination mit Grundstücksanbieter, Architekt, Vermesser, Finanzierer, Bauamt, Bauleiter u.v.m.
Auf Wunsch kümmern wir uns um Erstellung der Außenanlagen, Terrassen, Zuwegungen, Garagen, Carports, Erdarbeiten usw.
Grundriss
52296-5004-23-g
>
>
52297-5004-24-g
>
>
Adresse
26736 Krummhörn
Interessante Orte
Preis- und Lageinformationen
Preistrend für Bestandsimmobilien in Krummhörn